465 Greenhalghs Road, Smythes Creek, VIC 3351

Acreage/Semi-Rural 4 2 3
Sold Price Not Disclosed (18 Sep 2014)
Lifestyle Acreage - Close To Town
This quality built home situated only 5 mins from Ballarat CBD at the start of Smythes Creek, sits on approx 2.79 acres and ticks all the boxes.

The property features fully fenced flat land, 6 x 12 high roof shed, office/games room off the shed, as well as a work shed & storage area attached to the rear of the main shed.

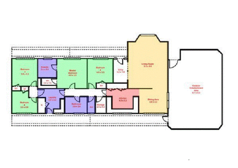
The home itself offers 4 large bedrooms, master with full en-suite; modern kitchen with quality s/s appliances, dining with fan forced wood fire and spacious living room. There is plenty of storage room throughout the home, and a huge enclosed outdoor entertaining area. Formal entry, neutral colours, wide skirtings and high ceilings with ornate cornices complete the package.

With future sub-division potential (due to residential growth in the area), you can enjoy the best of both worlds - Enjoy the lifestyle now and capitalize later.

The property is currently tenanted at $500 per week until end December 2014. Excellent tenant happy to extend lease.

Highly motivated owner this home is priced to sell. Arrange your inspection today!

Disclaimer:

Whilst every care has been taken to verify the accuracy of the details in this advertisement, For Sale By Owner (forsalebyowner.com.au Pty Ltd) cannot guarantee its correctness. Prospective buyers or tenants need to take such action as is necessary, to satisfy themselves of any pertinent matters.
Features

Bath, Heating, Modern Bathroom, Modern Kitchen, Entertainment Area, Garden, Garden Shed, Level Lawn, Pet Friendly, Rainwater Tank, Shower Facilities, Spa Bath/Jacuzzi, Storage Area, Alarm System, Security Windows, Close to Schools, Close to Shops, Close to Transport, Quiet Location, Nature Property, Air Conditioning, Built-ins, Ensuite, Internal Laundry, Pay TV Enabled, Remote Garage, Dishwasher, Workshop, Secure Parking

Due Diligence Checklist

Before you buy a home or vacant residential land, you should be aware of a range of issues that may affect that property and impose restrictions or obligations on you, if you buy it. Click Here to read more.

    Need a Home Loan?

    Get pre-approved for a home loan within 48 hours. Click Here or more information.

    Views
  • Last 24 Hours1
  • Last 7 Days2
  • Last 30 Days4
Contact the Owner
Phone or Text: 0488 847 018
Enter Phone Code:

"*" indicates required fields