49 Ross Street, Lismore, NSW 2480
Sold Price: 420,000 (28 Oct 2013)
Country-style living with the convenience of town
From the moment you walk through the front gate, this lovely Edwardian Queenslander (circa 1920) will capture your heart. This north facing property consists of the original house and a detached fully self-contained studio.
Built for the local farmer’s son, the main house has been lovingly renovated to highlight the original features – high ornate plaster ceilings, polished timber floors, and stunning Oregon timber and glass doors with original brass fixtures. The addition of a fully covered veranda, complete with drop-down café blinds and new Jarrah decking overlooking the pool provides the perfect spot to watch the sunsets and appreciate the stunning views this property offers.
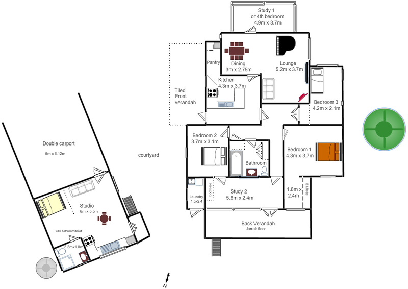
Upon walking in the front door of this lovely property you will find a beautiful country style kitchen with gas cooker, stainless dishdrawer, and timber bench tops. From here you will enter the open plan dining room and cosy lounge with ducted wood heater and air conditioner, ensuring that this property is warm in winter and cool in summer.
There are three bedrooms, two are large doubles and one is a single, the main featuring a walk in robe. There are also two studies, one of which could easily be used as a fourth bedroom. The combined bathroom and toilet is spacious and centrally located making easy access from all bedrooms.
The detached self-contained studio started life as a banana packing shed, before the main house was built. Finished to a high standard with private access away from the main house, it is suitable for open plan accommodation or a home based business (STCA) and features cathedral ceilings, exposed timber beams, polished Baltic pine floors, ensuite, and kitchenette. galley kitchen.
Surrounded by beautiful gardens there is always the perfect spot to sit and relax - whether it's by the pond, beside the pool, or nestled by the brazier in the courtyard enjoying the stars at night.
With solar panels and integrated rainwater system utility bills are almost a thing of the past. Enjoy the money in your pocket, not theirs.
This unique property offers many extras including:
• Fantastic, private location – northerly ridge overlooking Lismore in no through road
• Large block – over 1000 sqm
• Detached self-contained studio
• Close to university, Lismore Square, CBD, on bus route
• Very friendly neighbourhood
• Close to schools and hospitals
• 2.1 kw solar power system
• Solar hot water with off-peak booster
• 10,000L integrated rainwater tank
• Stainless steel guttermesh on all guttering
• Ionised, chemical-free freshwater swimming pool
• Extensively landscaped gardens and chook run
• Vegetable gardens, fruit trees, coffee trees – grow your own cuppa!
• Off Street Parking for four cars
There is nothing to do; just walk in and start enjoying the good life and the great location of this unique home.
Be warned, properties in this street rarely come onto the market – the last house for sale sold in less than a week, so don’t delay or you could miss out.
Open for inspection by arrangement.
Disclaimer:
Whilst every care has been taken to verify the accuracy of the details in this advertisement, For Sale By Owner (forsalebyowner.com.au Pty Ltd) cannot guarantee its correctness. Prospective buyers or tenants need to take such action as is necessary, to satisfy themselves of any pertinent matters.
Built for the local farmer’s son, the main house has been lovingly renovated to highlight the original features – high ornate plaster ceilings, polished timber floors, and stunning Oregon timber and glass doors with original brass fixtures. The addition of a fully covered veranda, complete with drop-down café blinds and new Jarrah decking overlooking the pool provides the perfect spot to watch the sunsets and appreciate the stunning views this property offers.
Upon walking in the front door of this lovely property you will find a beautiful country style kitchen with gas cooker, stainless dishdrawer, and timber bench tops. From here you will enter the open plan dining room and cosy lounge with ducted wood heater and air conditioner, ensuring that this property is warm in winter and cool in summer.
There are three bedrooms, two are large doubles and one is a single, the main featuring a walk in robe. There are also two studies, one of which could easily be used as a fourth bedroom. The combined bathroom and toilet is spacious and centrally located making easy access from all bedrooms.
The detached self-contained studio started life as a banana packing shed, before the main house was built. Finished to a high standard with private access away from the main house, it is suitable for open plan accommodation or a home based business (STCA) and features cathedral ceilings, exposed timber beams, polished Baltic pine floors, ensuite, and kitchenette. galley kitchen.
Surrounded by beautiful gardens there is always the perfect spot to sit and relax - whether it's by the pond, beside the pool, or nestled by the brazier in the courtyard enjoying the stars at night.
With solar panels and integrated rainwater system utility bills are almost a thing of the past. Enjoy the money in your pocket, not theirs.
This unique property offers many extras including:
• Fantastic, private location – northerly ridge overlooking Lismore in no through road
• Large block – over 1000 sqm
• Detached self-contained studio
• Close to university, Lismore Square, CBD, on bus route
• Very friendly neighbourhood
• Close to schools and hospitals
• 2.1 kw solar power system
• Solar hot water with off-peak booster
• 10,000L integrated rainwater tank
• Stainless steel guttermesh on all guttering
• Ionised, chemical-free freshwater swimming pool
• Extensively landscaped gardens and chook run
• Vegetable gardens, fruit trees, coffee trees – grow your own cuppa!
• Off Street Parking for four cars
There is nothing to do; just walk in and start enjoying the good life and the great location of this unique home.
Be warned, properties in this street rarely come onto the market – the last house for sale sold in less than a week, so don’t delay or you could miss out.
Open for inspection by arrangement.
Disclaimer:
Whilst every care has been taken to verify the accuracy of the details in this advertisement, For Sale By Owner (forsalebyowner.com.au Pty Ltd) cannot guarantee its correctness. Prospective buyers or tenants need to take such action as is necessary, to satisfy themselves of any pertinent matters.
Features
Bath, Fireplace(s), Formal Lounge, Heating, Renovated, Renovated Bathroom, Renovated Kitchen, Separate Dining Room, Garden, Garden Shed, Level Lawn, Rainwater Tank, Close to Schools, Close to Shops, Close to Transport, Quiet Location, Views, Nature Property, Mortgagee Property, Non Smoking, Air Conditioning, Built-ins, Gas Enabled, Polished Timber Floors, Study, Broadband, Dishwasher, Balcony, Courtyard, Workshop, Grey Water System, Solar Panels, Solar Hot Water, Ensuite
Need a Home Loan?
Get pre-approved for a home loan within 48 hours. Click Here or more information.
- Last 24 Hours0
- Last 7 Days0
- Last 30 Days3
Views
Contact the Owner
Phone or Text: 0488 847 018
Enter Phone Code:
Enter Phone Code:
"*" indicates required fields