4 Rose Drive, Roseworthy, SA 5371
Entertain Or Holiday At Home All Year In This Resort Style Home
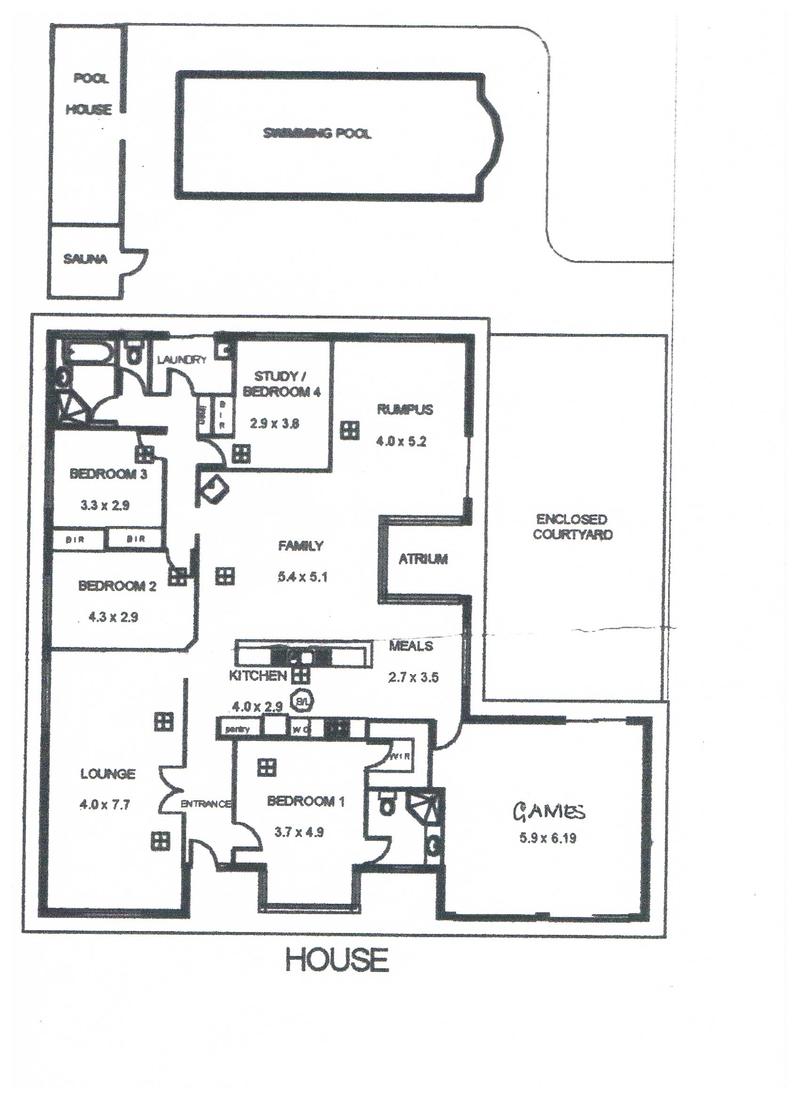
Glossy kitchen with ample large drawers and cupboards, roll top utility all topped off with stunning granite bench tops. 3 separate large living areas all tiled for easy living whilst the bedrooms have the warmth of polished wooden floors. An Atrium to family living allows the outside to flow indoors whilst for winter the slow combustion heater adds a cosy feel.
Master bedroom has WIR with great storage drawers and the ensuite has heating light. Bedrooms 2,3 and 4 have BIR , laundry and main bathroom have access to the pool area.
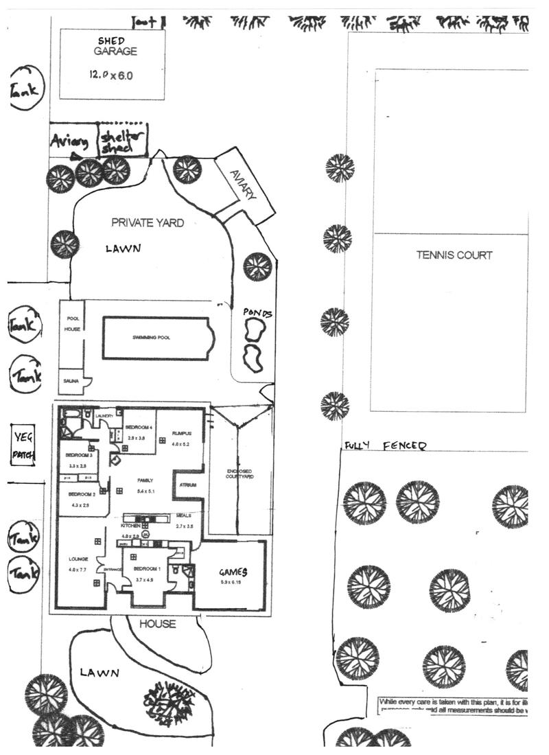
Added extras for ease of living are a 4 car garage, 2 aviaries, 5 rainwater tanks plumbed to the house with 80000 litres storage as an option to mains water, ducted evaporative airconditioing, solar hot water.
All this in a quiet culdesac on 1 acre of privacy.
Disclaimer:
Whilst every care has been taken to verify the accuracy of the details in this advertisement, For Sale By Owner (forsalebyowner.com.au Pty Ltd) cannot guarantee its correctness. Prospective buyers or tenants need to take such action as is necessary, to satisfy themselves of any pertinent matters.
Features
Bath, Formal Lounge, Heating, Modern Bathroom, Modern Kitchen, Entertainment Area, Garden, Garden Shed, Level Lawn, Pet Friendly, Rainwater Tank, Sauna, Storage Area, Tennis Court, Close to Schools, Close to Transport, Resort Property, Air Conditioning, Built-ins, Ensuite, Internal Laundry, Polished Timber Floors, Swimming/Lap Pool, Remote Garage, Workshop, Solar Hot Water
Contact Karen on 0438 838 018 at First Paige Property Settlement Services for help with your Real Estate paperwork (Form 1 & Contracts) or email if you have questions. admin@firstpaigeform1.com
Visit WebsiteNeed a Home Loan?
Get pre-approved for a home loan within 48 hours. Click Here or more information.
- Last 24 Hours0
- Last 7 Days0
- Last 30 Days0
Views
Contact the Owner
Enter Phone Code:
"*" indicates required fields
