49 Wilsons Road, Kettering, TAS 7155
Sold Price Not Disclosed (04 Oct 2013)
Designed for comfort and privacy
This solid-brick home sits comfortably on an elevated two-hectare bush block with superb water views across the D'Entrecasteaux Channel to Fluted Cape. It is within three minutes of the Bruny Island ferry terminal, Kettering marina and shops, and a commutable 30 minutes from Hobart. The home site provides level access, tranquillity, beauty, access to nature and privacy - the closest dwelling is 150 metres away.
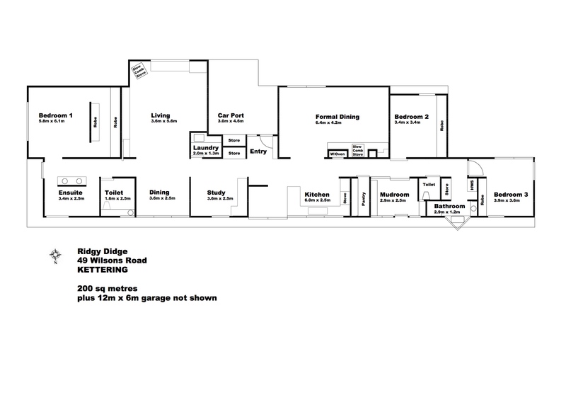
The design of the 200 square metre house is based around a 30-metre east-west spine, allowing all-day winter sun to spill into the many windows on the northern side, while limiting direct sunlight in the summer. The solar-passive, reverse brick-veneer design also includes double-glazed and clerestory windows and extensive insulation. The concrete bricks on the inside and Western Red Cedar cladding keep the interior cosy in winter and cool in summer.
Entry to the house is via a generously sized car-parking bay. The sense of openness and space is evident from the moment you walk through the handcrafted timber entrance door (by Hobart craftsman Rolf Shankley). Large double-glazed windows in the living areas take in the expansive views. The home comprises three double bedrooms, two bathrooms, two separate toilets, study and separate formal and casual dining areas, each with a slow combustion wood heater for extra warmth. High-quality built-ins provide ample storage throughout. Floors are a combination of slate and quality wool carpets.
The parents' retreat features a walk-through robe and en-suite containing a large double-shower with underfloor heating and a separate toilet. A spacious cook's kitchen with warm timber surfaces provides plentiful bench space, two electric ovens, gas hob, an externally-ducted range hood and substantial separate pantry. A 'mud-room' provides the perfect place to leave your soggy boots and raincoat, with a heavy plastic curtained doggy door for large dogs that can be securely closed.
Enjoy the outdoors with two excellent outdoor entertaining areas -- deck and courtyard - with wonderful bush and water views. The courtyard is espaliered with fruit-producing cherry and pear trees. The front garden is a mix of native plants, shrubs, bulbs, conifers and perennials -- plants that the native animals don't like to eat! The rear garden, which is entirely fenced to keep kids and pets in and the native animals out, is styled as a cottage garden with a mixture of exotic and native shrubs, trees and flowers including a variety of roses. It also contains a fully-enclosed vegetable garden.
Undercover parking is available for three cars, one in the carport and two in the double garage (12m x 6m), which features interior and exterior workspaces. External wood storage off the carport enables easy access to firewood. Tanks provide water storage of 60,000 litres.
Commence your new life with this opportunity to purchase a quality, established home that requires no effort -- just move in and enjoy!
Disclaimer:
Whilst every care has been taken to verify the accuracy of the details in this advertisement, For Sale By Owner (forsalebyowner.com.au Pty Ltd) cannot guarantee its correctness. Prospective buyers or tenants need to take such action as is necessary, to satisfy themselves of any pertinent matters.
The design of the 200 square metre house is based around a 30-metre east-west spine, allowing all-day winter sun to spill into the many windows on the northern side, while limiting direct sunlight in the summer. The solar-passive, reverse brick-veneer design also includes double-glazed and clerestory windows and extensive insulation. The concrete bricks on the inside and Western Red Cedar cladding keep the interior cosy in winter and cool in summer.
Entry to the house is via a generously sized car-parking bay. The sense of openness and space is evident from the moment you walk through the handcrafted timber entrance door (by Hobart craftsman Rolf Shankley). Large double-glazed windows in the living areas take in the expansive views. The home comprises three double bedrooms, two bathrooms, two separate toilets, study and separate formal and casual dining areas, each with a slow combustion wood heater for extra warmth. High-quality built-ins provide ample storage throughout. Floors are a combination of slate and quality wool carpets.
The parents' retreat features a walk-through robe and en-suite containing a large double-shower with underfloor heating and a separate toilet. A spacious cook's kitchen with warm timber surfaces provides plentiful bench space, two electric ovens, gas hob, an externally-ducted range hood and substantial separate pantry. A 'mud-room' provides the perfect place to leave your soggy boots and raincoat, with a heavy plastic curtained doggy door for large dogs that can be securely closed.
Enjoy the outdoors with two excellent outdoor entertaining areas -- deck and courtyard - with wonderful bush and water views. The courtyard is espaliered with fruit-producing cherry and pear trees. The front garden is a mix of native plants, shrubs, bulbs, conifers and perennials -- plants that the native animals don't like to eat! The rear garden, which is entirely fenced to keep kids and pets in and the native animals out, is styled as a cottage garden with a mixture of exotic and native shrubs, trees and flowers including a variety of roses. It also contains a fully-enclosed vegetable garden.
Undercover parking is available for three cars, one in the carport and two in the double garage (12m x 6m), which features interior and exterior workspaces. External wood storage off the carport enables easy access to firewood. Tanks provide water storage of 60,000 litres.
Commence your new life with this opportunity to purchase a quality, established home that requires no effort -- just move in and enjoy!
Disclaimer:
Whilst every care has been taken to verify the accuracy of the details in this advertisement, For Sale By Owner (forsalebyowner.com.au Pty Ltd) cannot guarantee its correctness. Prospective buyers or tenants need to take such action as is necessary, to satisfy themselves of any pertinent matters.
Features
Balcony/Patio/Terrace, Bath, Fireplace(s), Formal Lounge, Heating, Modern Bathroom, Modern Kitchen, Separate Dining Room, Entertainment Area, Garden, Garden Shed, Pet Friendly, Rainwater Tank, Storage Area, Unlevel Lawn, Quiet Location, Views, Nature Property, Retirement Property, Built-ins, Ensuite, Internal Laundry, Study, Broadband, Dishwasher, Courtyard, Workshop, Secure Parking
Need a Home Loan?
Get pre-approved for a home loan within 48 hours. Click Here or more information.
- Last 24 Hours0
- Last 7 Days0
- Last 30 Days1
Views
Contact the Owner
Phone or Text: 0488 847 018
Enter Phone Code:
Enter Phone Code:
"*" indicates required fields