13 Comongin Ave, Warburton, VIC 3799
Sold Price Not Disclosed (05 May 2024)
360 Degree Mountain Views 400 Metres From The Yarra Freshwater Rapids - Your Future Mountain Retreat Awaits.
The Phone Code for this property is: 53448. Please quote this number when phoning or texting.
Welcome to Australia's most picturesque town. The freshwater Yarra River rapids and rainforests capture every visitor immediately without fail. Think Twilight movie - and you won't be too far from imagining what awaits.
It is very rare to find rectangular, 1/4 acre, cleared, elevated, LDRZ-zoned Warburton blocks with all available services to the boundary. The site is within easy reach of Melbourne CBD and is also within walking distance of Warburton town. Take a short walk across the Brisbane bridge at the famous bakery and head up Brisbane Hill Road to find the private and hidden Comongin Ave. The building block is right at the top meaning the views can never be taken.
3 Phase power, town water, sewage and 'Natural Gas' have already been located to the boundary ready for connection. The land is zoned LDRZ - (It is zoned residential)
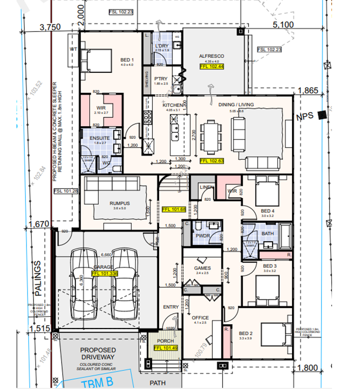
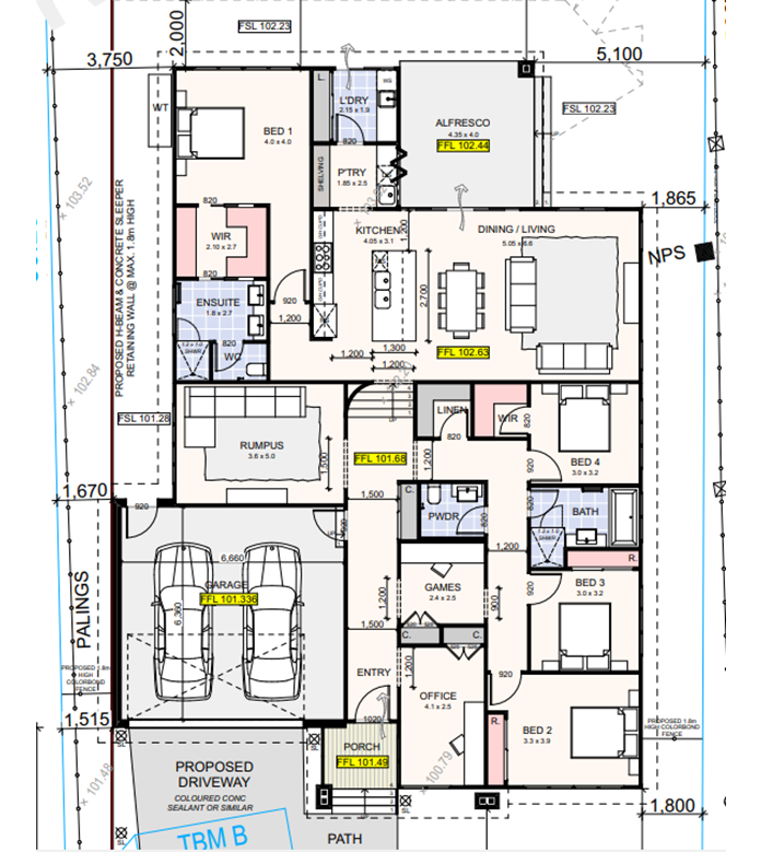
A 4 bedroom / 2 living area plus office and games room home design permit has recently been approved. Site survey and soil tests are done. (See floorplan) Furthermore, a local builder is pricing the build so that the buyer can move quickly. (This builder would consider full build, build to lock-up or, just the foundations for the cash-savvy owner builder.) Changes to the approved plan-set are possible if the buyer would like to do so. See dig test photo showing good building site conditions. Additionally, the gentle slope is also super rare.
If you are a nature lover or mountain bike rider (note Warburton's recently approved international mountain bike track development), then this is the perfect luxury home destination for the construction of your mountain hideaway! Float on an air mattress down the Yarra, or in winter, wind your way up to Mount Donna snow fields only 15 minutes away.
Given severe accommodation shortages in Warburton, when you are not using your maintain hideaway, this property could also serve as an AirBnb high-return site. As an example (to be verified by approved valuers/advisers), if this was rented as an AirBnB for just 3 nights a week (weekends) at $350 per night, this would be an income of $54,600 PA. Don't wait to enquire as this is a one-of-a-kind opportunity.
Disclaimer:
Whilst every care has been taken to verify the accuracy of the details in this advertisement, For Sale By Owner (forsalebyowner.com.au Pty Ltd) cannot guarantee its correctness. Prospective buyers or tenants need to take such action as is necessary, to satisfy themselves of any pertinent matters.
Welcome to Australia's most picturesque town. The freshwater Yarra River rapids and rainforests capture every visitor immediately without fail. Think Twilight movie - and you won't be too far from imagining what awaits.
It is very rare to find rectangular, 1/4 acre, cleared, elevated, LDRZ-zoned Warburton blocks with all available services to the boundary. The site is within easy reach of Melbourne CBD and is also within walking distance of Warburton town. Take a short walk across the Brisbane bridge at the famous bakery and head up Brisbane Hill Road to find the private and hidden Comongin Ave. The building block is right at the top meaning the views can never be taken.
3 Phase power, town water, sewage and 'Natural Gas' have already been located to the boundary ready for connection. The land is zoned LDRZ - (It is zoned residential)
A 4 bedroom / 2 living area plus office and games room home design permit has recently been approved. Site survey and soil tests are done. (See floorplan) Furthermore, a local builder is pricing the build so that the buyer can move quickly. (This builder would consider full build, build to lock-up or, just the foundations for the cash-savvy owner builder.) Changes to the approved plan-set are possible if the buyer would like to do so. See dig test photo showing good building site conditions. Additionally, the gentle slope is also super rare.
If you are a nature lover or mountain bike rider (note Warburton's recently approved international mountain bike track development), then this is the perfect luxury home destination for the construction of your mountain hideaway! Float on an air mattress down the Yarra, or in winter, wind your way up to Mount Donna snow fields only 15 minutes away.
Given severe accommodation shortages in Warburton, when you are not using your maintain hideaway, this property could also serve as an AirBnb high-return site. As an example (to be verified by approved valuers/advisers), if this was rented as an AirBnB for just 3 nights a week (weekends) at $350 per night, this would be an income of $54,600 PA. Don't wait to enquire as this is a one-of-a-kind opportunity.
Disclaimer:
Whilst every care has been taken to verify the accuracy of the details in this advertisement, For Sale By Owner (forsalebyowner.com.au Pty Ltd) cannot guarantee its correctness. Prospective buyers or tenants need to take such action as is necessary, to satisfy themselves of any pertinent matters.
Due Diligence Checklist
Before you buy a home or vacant residential land, you should be aware of a range of issues that may affect that property and impose restrictions or obligations on you, if you buy it. Click Here to read more.
Statement of information
Need a Home Loan?
Get pre-approved for a home loan within 48 hours. Click Here or more information.
- Last 24 Hours0
- Last 7 Days0
- Last 30 Days10
Views
Contact the Owner
Phone or Text: 0488 847 018
Enter Phone Code: 53448
Enter Phone Code: 53448
"*" indicates required fields