Viewbank, VIC 3084
Sold Price: 1,000,000 (15 Jul 2018)
Central Premium Location with Beautiful City Views in Viewbank *Private Inspection Only*
Within a 5 mins walking distance to both View bank College and View bank Primary School, located at the beloved central location of View bank in the middle of View bank Reserve and Price Park with the stunning view's to the City, Box Hill and Heidelberg direction.
Keep a way from the potential North East Link tunnel in the western area of Viewbank but still enjoy the convenience.
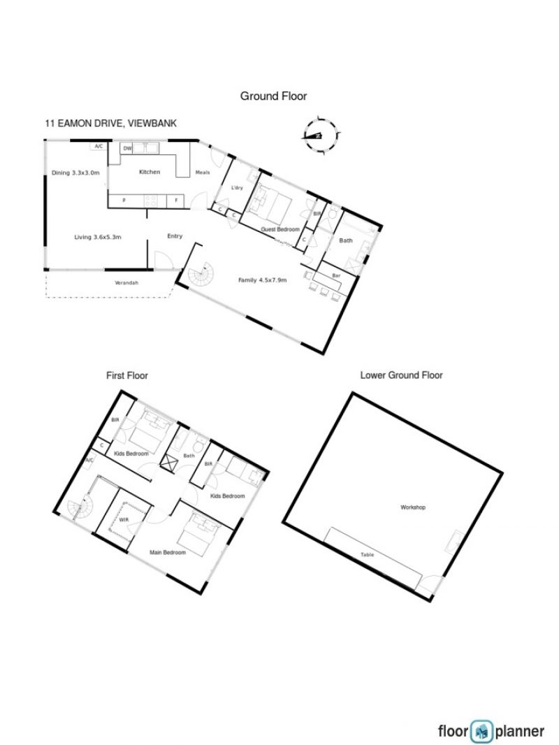
This 4 bedroom, with 2 large living room's and 2 newly renovated bath room's residence brings a superior life style to your family. The bright and spacious residence delivers desirable low maintenance and surrounded by quiet and stunning contemporary homes and meticulously kept gardens.
It boasts instant curb appeal with an equally impressive interior to match, enjoying peaceful front garden and rear courtyard aspects. Open living is effortlessly executed in the spacious family and meals area incorporating a fully equipped kitchen with abundant cabinetry and stainless-steel appliances. It provides easy access to a private, paved courtyard with outdoor covered deck - where you can spend more time reading, relaxing or entertaining with minimal maintenance required in the garden.
The main bedroom contains a big walk-in wardrobe enriched with all the comforts, you'll have the opportunity to watch the New Year Fireworks in city just from your bedroom.
517 Bus stop is only 50 metres away.
Ducted Heating
2 x Air Conditioners
Hardwood Polished Floors
Workshop/Storage
Double Brick Walls
4 x cars garage and convenient drive way(approx. 46 sqm)
Remote control garage door & Automatic security lights
Located between Viewbank Primary and College
Nearby Tennis courts and Winston Hill preschool
City, Boxhill and Heidelberg Views
Keep a way from the potential North East Link tunnel in the western area of Viewbank but still enjoy the convenience.
This 4 bedroom, with 2 large living room's and 2 newly renovated bath room's residence brings a superior life style to your family. The bright and spacious residence delivers desirable low maintenance and surrounded by quiet and stunning contemporary homes and meticulously kept gardens.
It boasts instant curb appeal with an equally impressive interior to match, enjoying peaceful front garden and rear courtyard aspects. Open living is effortlessly executed in the spacious family and meals area incorporating a fully equipped kitchen with abundant cabinetry and stainless-steel appliances. It provides easy access to a private, paved courtyard with outdoor covered deck - where you can spend more time reading, relaxing or entertaining with minimal maintenance required in the garden.
The main bedroom contains a big walk-in wardrobe enriched with all the comforts, you'll have the opportunity to watch the New Year Fireworks in city just from your bedroom.
517 Bus stop is only 50 metres away.
Ducted Heating
2 x Air Conditioners
Hardwood Polished Floors
Workshop/Storage
Double Brick Walls
4 x cars garage and convenient drive way(approx. 46 sqm)
Remote control garage door & Automatic security lights
Located between Viewbank Primary and College
Nearby Tennis courts and Winston Hill preschool
City, Boxhill and Heidelberg Views
Due Diligence Checklist
Before you buy a home or vacant residential land, you should be aware of a range of issues that may affect that property and impose restrictions or obligations on you, if you buy it. Click Here to read more.
Need a Home Loan?
Get pre-approved for a home loan within 48 hours. Click Here or more information.
- Last 24 Hours0
- Last 7 Days0
- Last 30 Days5
Views
Contact the Owner
Phone or Text: 0488 847 018
Enter Phone Code:
Enter Phone Code:
"*" indicates required fields