237 Upper York St, West Launceston, TAS 7250
Sold Price Not Disclosed (08 Apr 2021)
Large Sunny Warm Home
The Phone Code for this property is: 61415. Please quote this number when phoning or texting.
Located in a quiet street in West Launceston with some excellent views of the Basin this home presents attractive features sure to be appreciated by many buyers! The main living space is open and flows effortlessly from the kitchen and dining space to the outdoor area where you will feel relaxed in a quiet garden and entertaining area.
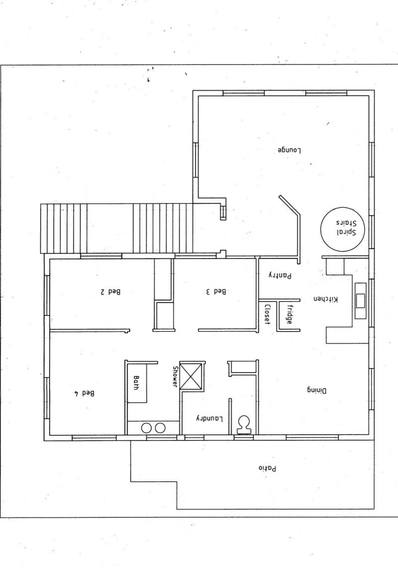
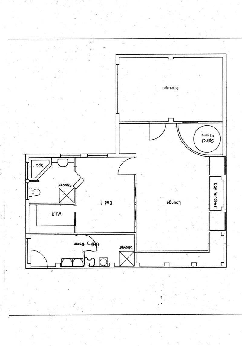
The main residence includes four bedrooms; the very large master is downstairs with a walk in wardrobe and en suite.
The second, third and fourth bedrooms are upstairs adjacent to the main Bathroom and separate toilet.
The sunny upstairs lounge has views down towards the Basin Reserve.
Downstairs there is a further lounge, en suite and utility area with access to the back yard and main garage.
The home has two lock up Garages with remote operated Roller Doors, also additional off street parking for two vehicles.
The home has Solar Hot water heating with reverse cycle boost, 7Kw of Solar Panels with 9.8 Kw Battery; wood fired Domestic Hot Water and Hydronic heating downstairs; a reverse cycle Air Conditioner and 3.5Kw Electric Heater upstairs. Security System, key-less entry downstairs and NBN Fibre to the Node.
West Launceston is a very sought after suburb. Upper York Street is 5 minutes walk from the popular Cataract Gorge, 5 minutes walk to West Launceston Primary School, 10 minutes walk to the CBD and 15 minutes walk to the LGH.
Other schools, shops and public transport are also within close proximity.
VIEWING BY APPOINTMENT OR OPEN HOMES ONLY
Disclaimer:
Whilst every care has been taken to verify the accuracy of the details in this advertisement, For Sale By Owner (forsalebyowner.com.au Pty Ltd) cannot guarantee its correctness. Prospective buyers or tenants need to take such action as is necessary, to satisfy themselves of any pertinent matters.
Located in a quiet street in West Launceston with some excellent views of the Basin this home presents attractive features sure to be appreciated by many buyers! The main living space is open and flows effortlessly from the kitchen and dining space to the outdoor area where you will feel relaxed in a quiet garden and entertaining area.
The main residence includes four bedrooms; the very large master is downstairs with a walk in wardrobe and en suite.
The second, third and fourth bedrooms are upstairs adjacent to the main Bathroom and separate toilet.
The sunny upstairs lounge has views down towards the Basin Reserve.
Downstairs there is a further lounge, en suite and utility area with access to the back yard and main garage.
The home has two lock up Garages with remote operated Roller Doors, also additional off street parking for two vehicles.
The home has Solar Hot water heating with reverse cycle boost, 7Kw of Solar Panels with 9.8 Kw Battery; wood fired Domestic Hot Water and Hydronic heating downstairs; a reverse cycle Air Conditioner and 3.5Kw Electric Heater upstairs. Security System, key-less entry downstairs and NBN Fibre to the Node.
West Launceston is a very sought after suburb. Upper York Street is 5 minutes walk from the popular Cataract Gorge, 5 minutes walk to West Launceston Primary School, 10 minutes walk to the CBD and 15 minutes walk to the LGH.
Other schools, shops and public transport are also within close proximity.
VIEWING BY APPOINTMENT OR OPEN HOMES ONLY
Disclaimer:
Whilst every care has been taken to verify the accuracy of the details in this advertisement, For Sale By Owner (forsalebyowner.com.au Pty Ltd) cannot guarantee its correctness. Prospective buyers or tenants need to take such action as is necessary, to satisfy themselves of any pertinent matters.
Features
Air Conditioning, Balcony/Patio/Terrace, Broadband, Built-ins, Dishwasher, Ensuite, Fireplace(s), Gas Enabled, Heating, Inside Spa, Internal Laundry, Polished Timber Floors, Remote Garage, Courtyard, Entertainment Area, Garden, Secure Parking, Solar Hot Water, Solar Panels, Spa Bath/Jacuzzi, Storage Area, Alarm System, Safe, Security Lights, Swipe Card, Close to Parklands, Close to Schools, Close to Shops, Close to Transport
Need a Home Loan?
Get pre-approved for a home loan within 48 hours. Click Here or more information.
- Last 24 Hours0
- Last 7 Days0
- Last 30 Days0
Views
Contact the Owner
Phone or Text: 0488 847 018
Enter Phone Code: 61415
Enter Phone Code: 61415
"*" indicates required fields