1583 Nubeena Road, Nubeena, TAS 7184
Sold Price Not Disclosed (10 Mar 2021)
A Very Special Find By The Sea
A commercial property with so many possibilities in a seaside town just over an hour from Hobart, is a very special find.
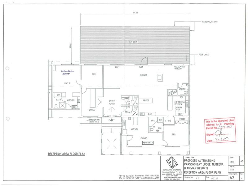
Overlooking picturesque Parsons Bay, it features a restaurant/bar, fully equipped commercial kitchen, apartment, reception/office areas, plenty of storage, and a large deck with stunning views.
Offered with all plant and equipment, it would ideally suit owner/operator/occupiers.
Part of a larger village complex with onsite accommodation, 10 mins walk from the regional centre of Nubeena, a stone's throw from Three Capes Walk and all the highlights of the Tasman Peninsula, this is a property for people of vision.
Highlights:
- licensed restaurant can seat 40+ indoors and 35+ outdoors
- fully equipped bar
- commercial kitchen equipped with six-burner gas stove and gas oven, electric oven, griller, dishwasher, fridges and freezers, etc. and a large pantry
- big deck with stunning water views and established grape-vine
- attached studio/1bdr apartment ("manager's residence" on floor plan) with kitchenette, polished wood floors, water views and connecting door to main part of the building
- sun room ("new unit one" on
- spare room (for office or bedroom for the apartment)
- foyer and reception area
- new hydronic heating system through the whole building
- recently re-roofed and insulated
- recently re-painted throughout
- laundry with commercial washer and dryer
- two large rooms underneath (for storage, workshop etc)
- large dry/cool area under building (more storage, root cellar, wine cellar etc)
The Phone Code for this property is: 85408. Please quote this number when phoning or texting.
Disclaimer:
Whilst every care has been taken to verify the accuracy of the details in this advertisement, For Sale By Owner (forsalebyowner.com.au Pty Ltd) cannot guarantee its correctness. Prospective buyers or tenants need to take such action as is necessary, to satisfy themselves of any pertinent matters.
Overlooking picturesque Parsons Bay, it features a restaurant/bar, fully equipped commercial kitchen, apartment, reception/office areas, plenty of storage, and a large deck with stunning views.
Offered with all plant and equipment, it would ideally suit owner/operator/occupiers.
Part of a larger village complex with onsite accommodation, 10 mins walk from the regional centre of Nubeena, a stone's throw from Three Capes Walk and all the highlights of the Tasman Peninsula, this is a property for people of vision.
Highlights:
- licensed restaurant can seat 40+ indoors and 35+ outdoors
- fully equipped bar
- commercial kitchen equipped with six-burner gas stove and gas oven, electric oven, griller, dishwasher, fridges and freezers, etc. and a large pantry
- big deck with stunning water views and established grape-vine
- attached studio/1bdr apartment ("manager's residence" on floor plan) with kitchenette, polished wood floors, water views and connecting door to main part of the building
- sun room ("new unit one" on
- spare room (for office or bedroom for the apartment)
- foyer and reception area
- new hydronic heating system through the whole building
- recently re-roofed and insulated
- recently re-painted throughout
- laundry with commercial washer and dryer
- two large rooms underneath (for storage, workshop etc)
- large dry/cool area under building (more storage, root cellar, wine cellar etc)
The Phone Code for this property is: 85408. Please quote this number when phoning or texting.
Disclaimer:
Whilst every care has been taken to verify the accuracy of the details in this advertisement, For Sale By Owner (forsalebyowner.com.au Pty Ltd) cannot guarantee its correctness. Prospective buyers or tenants need to take such action as is necessary, to satisfy themselves of any pertinent matters.
- Last 24 Hours0
- Last 7 Days0
- Last 30 Days0
Views
Contact the Owner
Phone or Text: 0488 847 018
Enter Phone Code: 85408
Enter Phone Code: 85408
"*" indicates required fields