174 Lord Street, Richmond, VIC 3121
Sold Price Not Disclosed (15 Feb 2021)
Virtual Tour
SUPERBLY SPACIOUS HOME IN UNBEATABLE LOCATION
Located in one of Melbourne's most highly sought after areas, this house's proportions have to be seen to be believed!
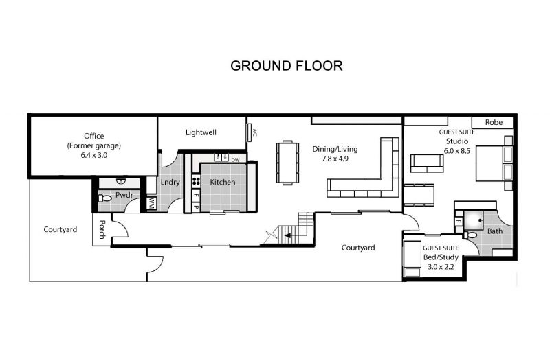
This freestanding brick residence consists of an expansive 5 bedroom house spread over 2 levels and an adjoining 1 bedroom self-contained guest suite.
The main house contains:
- 5 bedrooms: 2 king-size bedrooms and 3 other bedrooms (all with BIRs)
- 2.5 bathrooms (main bathroom, ensuite and powder room)
- Open plan living/dining room downstairs
- Second living room and sitting room upstairs
- Separate laundry
- Kitchen with stainless steel Smeg gas cooktop/oven and dishwasher
- Study nook
- Front and side low maintenance courtyards
- Office/storage area which can easily be converted back to a garage for off-site parking
The guest suite contains:
- Open plan studio with living/dining area
- King-size bedroom area with wardrobe
- Separate small bedroom or study
- 2-way bathroom
- Kitchenette
Just imagine yourself living in this prime location within walking distance to the MCG, Rod Laver Arena, AAMI Stadium, the Yarra river and the Tan. Not to mention Richmond's best bars and eateries almost at your doorstep!
Positioned on one of Richmond's few wide streets with ample street parking for residents and visitors. Public transport also easily accessible with the #70 tram to the city and Burnley train station just a short walk away. Plus, conveniently located within the Melbourne Girls College zone.
The versatile layout presents the opportunity to earn a second income by living in the house and renting out the guest suite. The house was formerly rented on AirBnB for $800 per night and the guest suite for $125 per night (financial statements available). The entire property is currently rented on a periodic lease at $1,150 per week (vacant possession available).
Richmond residents usually have to sacrifice space for the privilege of living in this fabulous location. However this unique property provides the best of both worlds!
The Phone Code for this property is: 75124. Please quote this number when phoning or texting.
This freestanding brick residence consists of an expansive 5 bedroom house spread over 2 levels and an adjoining 1 bedroom self-contained guest suite.
The main house contains:
- 5 bedrooms: 2 king-size bedrooms and 3 other bedrooms (all with BIRs)
- 2.5 bathrooms (main bathroom, ensuite and powder room)
- Open plan living/dining room downstairs
- Second living room and sitting room upstairs
- Separate laundry
- Kitchen with stainless steel Smeg gas cooktop/oven and dishwasher
- Study nook
- Front and side low maintenance courtyards
- Office/storage area which can easily be converted back to a garage for off-site parking
The guest suite contains:
- Open plan studio with living/dining area
- King-size bedroom area with wardrobe
- Separate small bedroom or study
- 2-way bathroom
- Kitchenette
Just imagine yourself living in this prime location within walking distance to the MCG, Rod Laver Arena, AAMI Stadium, the Yarra river and the Tan. Not to mention Richmond's best bars and eateries almost at your doorstep!
Positioned on one of Richmond's few wide streets with ample street parking for residents and visitors. Public transport also easily accessible with the #70 tram to the city and Burnley train station just a short walk away. Plus, conveniently located within the Melbourne Girls College zone.
The versatile layout presents the opportunity to earn a second income by living in the house and renting out the guest suite. The house was formerly rented on AirBnB for $800 per night and the guest suite for $125 per night (financial statements available). The entire property is currently rented on a periodic lease at $1,150 per week (vacant possession available).
Richmond residents usually have to sacrifice space for the privilege of living in this fabulous location. However this unique property provides the best of both worlds!
The Phone Code for this property is: 75124. Please quote this number when phoning or texting.
Due Diligence Checklist
Before you buy a home or vacant residential land, you should be aware of a range of issues that may affect that property and impose restrictions or obligations on you, if you buy it. Click Here to read more.
Need a Home Loan?
Get pre-approved for a home loan within 48 hours. Click Here or more information.
- Last 24 Hours1
- Last 7 Days1
- Last 30 Days12
Views
Contact the Owner
Phone or Text: 0488 847 018
Enter Phone Code: 75124
Enter Phone Code: 75124
"*" indicates required fields