6/9-13 Luttrell Avenue, Bellerive, TAS 7018
Sold Price: 420,000 (28 Dec 2020)
Perfect location only short stroll to Bellerive Beach
This attractive brick and tile two bedroom unit is in a perfect location. Situated only a short stroll from beautiful Bellerive Beach it has direct access to the Clarence Foreshore Trail. The property has a sunny aspect with views from the garden to kunanyi/Mt Wellington.
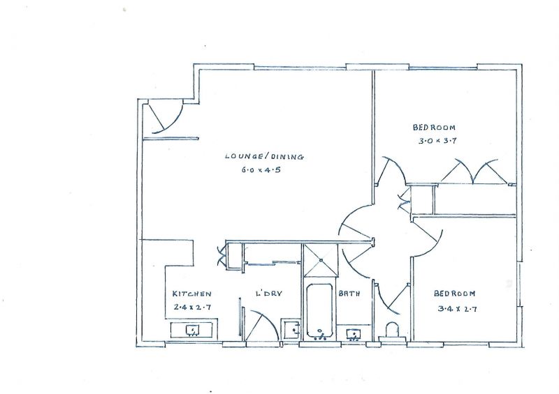
The home comprises open plan kitchen, dining and lounge, a good size double bedroom with built ins and a second bedroom or study, a tidy bathroom with separate shower, separate laundry with full height linen cupboard and separate toilet.
There is a near new Daiken heat pump and the windows frames have recently been replaced with low maintenance aluminium frames.
Timber venetians are fitted to living areas and bedrooms and floor coverings are in good condition.
The back garden is immaculate and private, there is an attached carport, extra car parking space and storage locker.
The unit is situated at the rear and is therefore quiet and peaceful with no passing traffic or road noise.
The property is close to services, well maintained and ready to move straight in!
This property would also make an excellent rental property (approx rental income $400-425pw)
No Body Corp
Rates $1400 approx
Tas Water $900 approx (inc usage)
The Phone Code for this property is: 28300. Please quote this number when phoning or texting.
Disclaimer:
Whilst every care has been taken to verify the accuracy of the details in this advertisement, For Sale By Owner (forsalebyowner.com.au Pty Ltd) cannot guarantee its correctness. Prospective buyers or tenants need to take such action as is necessary, to satisfy themselves of any pertinent matters.
The home comprises open plan kitchen, dining and lounge, a good size double bedroom with built ins and a second bedroom or study, a tidy bathroom with separate shower, separate laundry with full height linen cupboard and separate toilet.
There is a near new Daiken heat pump and the windows frames have recently been replaced with low maintenance aluminium frames.
Timber venetians are fitted to living areas and bedrooms and floor coverings are in good condition.
The back garden is immaculate and private, there is an attached carport, extra car parking space and storage locker.
The unit is situated at the rear and is therefore quiet and peaceful with no passing traffic or road noise.
The property is close to services, well maintained and ready to move straight in!
This property would also make an excellent rental property (approx rental income $400-425pw)
No Body Corp
Rates $1400 approx
Tas Water $900 approx (inc usage)
The Phone Code for this property is: 28300. Please quote this number when phoning or texting.
Disclaimer:
Whilst every care has been taken to verify the accuracy of the details in this advertisement, For Sale By Owner (forsalebyowner.com.au Pty Ltd) cannot guarantee its correctness. Prospective buyers or tenants need to take such action as is necessary, to satisfy themselves of any pertinent matters.
Need a Home Loan?
Get pre-approved for a home loan within 48 hours. Click Here or more information.
- Last 24 Hours1
- Last 7 Days2
- Last 30 Days3
Views
Contact the Owner
Phone or Text: 0488 847 018
Enter Phone Code 28300 when prompted.
Enter Phone Code 28300 when prompted.
"*" indicates required fields