487 Old Telegraph Rd East, Crossover, VIC 3821
Sold Price: 975,000 (02 Sep 2020)
Crossover Rural lifestyle property
The Phone Code for this property is: 20893. Please quote this number when phoning or texting.
Located in Crossover within 10 minutes from Warragul, and 5 minutes from the picturesque village of Neerim South, with uninterrupted views of the Baw Baw ranges, you'll find this an exceptional property of approximately 7.4 hectares.
The property has fully renovated bathrooms, kitchen, extensive shedding, games room, workshop. The property is divided into 3 main paddocks, laneway access, and dam or water trough to each.
At the top of the road (500m) access to school bus into Warragul, also bus to local schools in Neerim South.
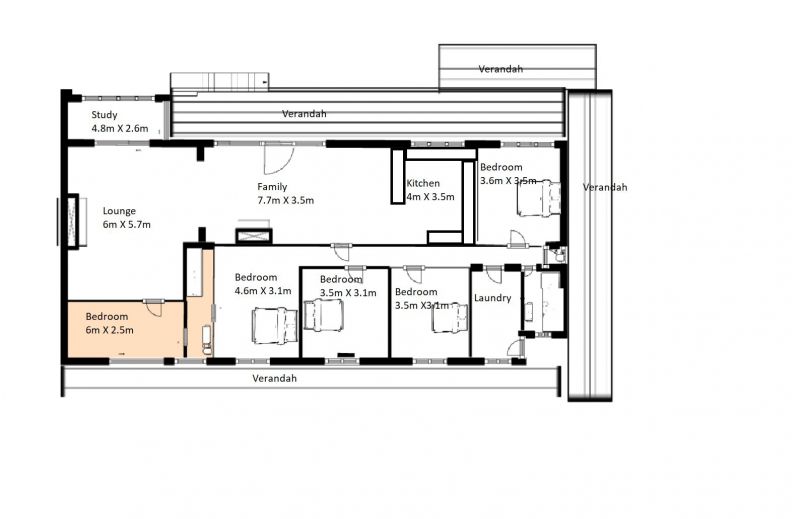
The main residence comprises of main a bedroom with ensuite, 4 other bedrooms, one with access to ensuite, study and full bathroom, to cater for your extended family.
In the living / family room is a large bakers convection oven wood heater, split system, and in the lounge a large open fire. Ceiling fans in some of the bedrooms, and in the living area.
The custom-built kitchen comprises Italian appliances, solid stone bench tops and pantry.
On the deck, there is an outside shower bath, with the views across the paddocks, through to the mountains.
One hour drive to Mt Baw Baw, and walking distance to the Crossover / Rokeby rail trail.
The games room is fully lined, with wood heater, the main workshop has extensive benches, with mezzanine floor for any extra storage required.
There is a large open shed for machinery, and then sundry shedding, chook shed, etc.
Double carport, plus enough under cover space for another 8 cars or machinery
Water tank, approximately 55,000 litres, plus additional 22,000
"The floor plan is not to scale; measurements are indicative and in metres. All features included this plan are for inspiration purposes only. This is not an exact replica of the property or the property or the position of exterior elements. Plans should not be relied on. Interested parties should make and rely on their own enquiries." The areal overview map is not to scale, and its purpose is to depict the general layout of the property boundaries.
Disclaimer:
Whilst every care has been taken to verify the accuracy of the details in this advertisement, For Sale By Owner (forsalebyowner.com.au Pty Ltd) cannot guarantee its correctness. Prospective buyers or tenants need to take such action as is necessary, to satisfy themselves of any pertinent matters.
Located in Crossover within 10 minutes from Warragul, and 5 minutes from the picturesque village of Neerim South, with uninterrupted views of the Baw Baw ranges, you'll find this an exceptional property of approximately 7.4 hectares.
The property has fully renovated bathrooms, kitchen, extensive shedding, games room, workshop. The property is divided into 3 main paddocks, laneway access, and dam or water trough to each.
At the top of the road (500m) access to school bus into Warragul, also bus to local schools in Neerim South.
The main residence comprises of main a bedroom with ensuite, 4 other bedrooms, one with access to ensuite, study and full bathroom, to cater for your extended family.
In the living / family room is a large bakers convection oven wood heater, split system, and in the lounge a large open fire. Ceiling fans in some of the bedrooms, and in the living area.
The custom-built kitchen comprises Italian appliances, solid stone bench tops and pantry.
On the deck, there is an outside shower bath, with the views across the paddocks, through to the mountains.
One hour drive to Mt Baw Baw, and walking distance to the Crossover / Rokeby rail trail.
The games room is fully lined, with wood heater, the main workshop has extensive benches, with mezzanine floor for any extra storage required.
There is a large open shed for machinery, and then sundry shedding, chook shed, etc.
Double carport, plus enough under cover space for another 8 cars or machinery
Water tank, approximately 55,000 litres, plus additional 22,000
"The floor plan is not to scale; measurements are indicative and in metres. All features included this plan are for inspiration purposes only. This is not an exact replica of the property or the property or the position of exterior elements. Plans should not be relied on. Interested parties should make and rely on their own enquiries." The areal overview map is not to scale, and its purpose is to depict the general layout of the property boundaries.
Disclaimer:
Whilst every care has been taken to verify the accuracy of the details in this advertisement, For Sale By Owner (forsalebyowner.com.au Pty Ltd) cannot guarantee its correctness. Prospective buyers or tenants need to take such action as is necessary, to satisfy themselves of any pertinent matters.
Due Diligence Checklist
Before you buy a home or vacant residential land, you should be aware of a range of issues that may affect that property and impose restrictions or obligations on you, if you buy it. Click Here to read more.
Need a Home Loan?
Get pre-approved for a home loan within 48 hours. Click Here or more information.
- Last 24 Hours0
- Last 7 Days0
- Last 30 Days1
Views
Contact the Owner
Phone or Text: 0488 847 018
Enter Phone Code: 20893
Enter Phone Code: 20893
"*" indicates required fields