25 Radcliff Crescent, Rosetta, TAS 7010
Sold Price Not Disclosed (22 Jul 2020)
Stately home with large grounds in great location.
The Phone Code for this property is: 16547. Please quote this number when phoning or texting.
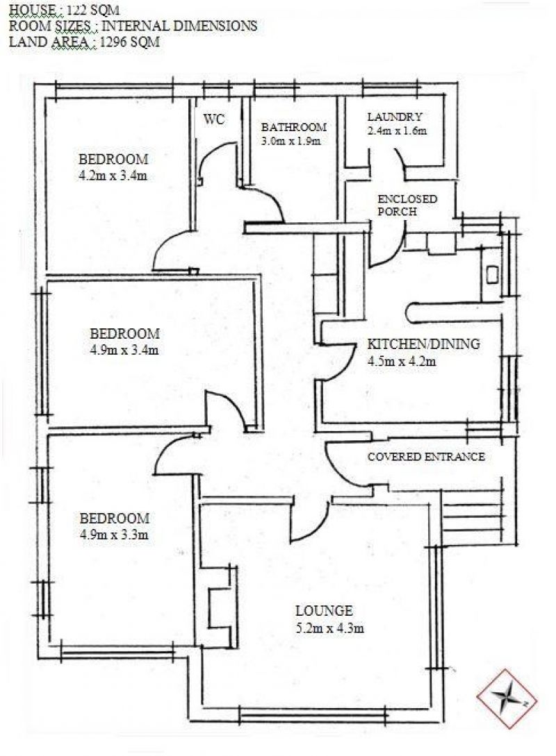
A stately home in a delightful location high on the hill affording views of the river to the mountains. The double brick house is very original, with all of the distinguishing features of the era intact and unchanged, a very sound base on which to redecorate or refresh.
There are 3 large bedrooms accessed by a generously wide hallway, the sunny living room is at the front of the house off the entrance foyer. The Kitchen/Dining room has ample storage and also a sunny northerly aspect, there is a bathroom and separate WC and also a separate laundry conveniently located by the rear sheltered entrance where a concrete path leads to a large Hills clothesline.
Underhouse storage is vast, the areas under all bedrooms and the living room are useable but undeveloped. The garden shed (2.4m x 1.6m) is somewhat lost in the huge backyard of 780sqm where there are fruit trees and space for virtually anything from caravans to boats and cars, the concrete driveway alone can park 4 or 5 vehicles.
The property enjoys "Fibre to the home" NBN connection, is close to schools and shopping and is on a regular bus route.
The large block of 1296sqm lends itself to a multitude of uses be that further enhancement of the already extensive well established gardens, addition of sheds/garages etc. or even building of additional accommodation.
So whether you just want a house in a quiet neighbourhood with space or you are looking to develop an investment property this could be your answer.
Can be purchased partially furnished if desired.
Disclaimer:
Whilst every care has been taken to verify the accuracy of the details in this advertisement, For Sale By Owner (forsalebyowner.com.au Pty Ltd) cannot guarantee its correctness. Prospective buyers or tenants need to take such action as is necessary, to satisfy themselves of any pertinent matters.
A stately home in a delightful location high on the hill affording views of the river to the mountains. The double brick house is very original, with all of the distinguishing features of the era intact and unchanged, a very sound base on which to redecorate or refresh.
There are 3 large bedrooms accessed by a generously wide hallway, the sunny living room is at the front of the house off the entrance foyer. The Kitchen/Dining room has ample storage and also a sunny northerly aspect, there is a bathroom and separate WC and also a separate laundry conveniently located by the rear sheltered entrance where a concrete path leads to a large Hills clothesline.
Underhouse storage is vast, the areas under all bedrooms and the living room are useable but undeveloped. The garden shed (2.4m x 1.6m) is somewhat lost in the huge backyard of 780sqm where there are fruit trees and space for virtually anything from caravans to boats and cars, the concrete driveway alone can park 4 or 5 vehicles.
The property enjoys "Fibre to the home" NBN connection, is close to schools and shopping and is on a regular bus route.
The large block of 1296sqm lends itself to a multitude of uses be that further enhancement of the already extensive well established gardens, addition of sheds/garages etc. or even building of additional accommodation.
So whether you just want a house in a quiet neighbourhood with space or you are looking to develop an investment property this could be your answer.
Can be purchased partially furnished if desired.
Disclaimer:
Whilst every care has been taken to verify the accuracy of the details in this advertisement, For Sale By Owner (forsalebyowner.com.au Pty Ltd) cannot guarantee its correctness. Prospective buyers or tenants need to take such action as is necessary, to satisfy themselves of any pertinent matters.
Features
Fully Fenced, Pay TV Enabled, Garden Shed, Secure Parking, Close to Schools, Close to Shops, Close to Transport, Quiet Location, Views, Non Smoking
Need a Home Loan?
Get pre-approved for a home loan within 48 hours. Click Here or more information.
- Last 24 Hours0
- Last 7 Days0
- Last 30 Days0
Views
Contact the Owner
Phone or Text: 0488 847 018
Enter Phone Code: 16547
Enter Phone Code: 16547
"*" indicates required fields