17 Old Melbourne Rd, Marysville, VIC 3779
Sold Price: 990,000 (14 Apr 2021)
A beautiful 4-bedroom home and adjoining property situated above Marysville, surrounded by mature gardens and stunning views.
Wanting to move out of the city to a rural residence which allows you the facilities to work from home and provide plenty of space for a family? There are now very few residences in the area for sale which provide such a setup.
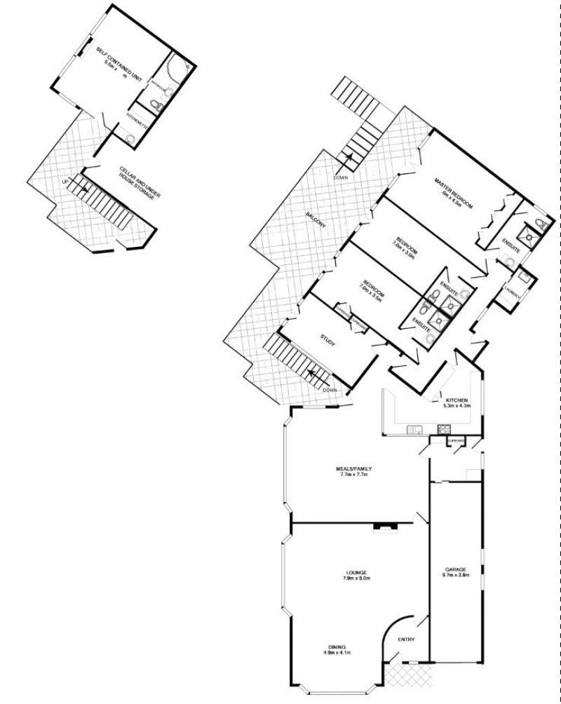
Nestled into a hillside overlooking Marysville, this stunning dual-level residence showcases large formal lounge and dining rooms, and spacious informal family and meals areas adjoining the thoughtfully designed kitchen. On the top level are three ensuite bedrooms and a study/office, with an expansive balcony accessible from each of these rooms. And of course there is the office with a separate entrance.
There is a self-contained downstairs unit with spa bath, separate entrance and verandah - perfect for buyers who may also consider adding a boutique B&B element to their lifestyle. It's a great setup for buyers who want that tree change while still having the opportunity for potential income in a popular tourist area.
This energy efficient home with a security alarm system is also surrounded by stunning views and beautiful mature terraced gardens. The irrigation system of three water tanks with a holding capacity of approx. 42,000 litres is attached to fuel and electric pumps. This independent tank system is connected to garden sprinklers as well as a comprehensive fire-fighting system.
Extensive under-house storage consists of an archive room, a wine cellar, a general maintenance area, and extra cupboards and shelves including a ski equipment cupboard for your visits to the winter snow at nearby Lake Mountain.
The adjoining property with separate title provides an opportunity for extra B&B accommodation or perhaps an underground home facing north. Priced at $325,000 it can be sold as a separate entity.
INSPECTION BY APPOINTMENT
The Phone Code for this property is: 86437. Please quote this number when phoning or texting.
Disclaimer:
Whilst every care has been taken to verify the accuracy of the details in this advertisement, For Sale By Owner (forsalebyowner.com.au Pty Ltd) cannot guarantee its correctness. Prospective buyers or tenants need to take such action as is necessary, to satisfy themselves of any pertinent matters.
Nestled into a hillside overlooking Marysville, this stunning dual-level residence showcases large formal lounge and dining rooms, and spacious informal family and meals areas adjoining the thoughtfully designed kitchen. On the top level are three ensuite bedrooms and a study/office, with an expansive balcony accessible from each of these rooms. And of course there is the office with a separate entrance.
There is a self-contained downstairs unit with spa bath, separate entrance and verandah - perfect for buyers who may also consider adding a boutique B&B element to their lifestyle. It's a great setup for buyers who want that tree change while still having the opportunity for potential income in a popular tourist area.
This energy efficient home with a security alarm system is also surrounded by stunning views and beautiful mature terraced gardens. The irrigation system of three water tanks with a holding capacity of approx. 42,000 litres is attached to fuel and electric pumps. This independent tank system is connected to garden sprinklers as well as a comprehensive fire-fighting system.
Extensive under-house storage consists of an archive room, a wine cellar, a general maintenance area, and extra cupboards and shelves including a ski equipment cupboard for your visits to the winter snow at nearby Lake Mountain.
The adjoining property with separate title provides an opportunity for extra B&B accommodation or perhaps an underground home facing north. Priced at $325,000 it can be sold as a separate entity.
INSPECTION BY APPOINTMENT
The Phone Code for this property is: 86437. Please quote this number when phoning or texting.
Disclaimer:
Whilst every care has been taken to verify the accuracy of the details in this advertisement, For Sale By Owner (forsalebyowner.com.au Pty Ltd) cannot guarantee its correctness. Prospective buyers or tenants need to take such action as is necessary, to satisfy themselves of any pertinent matters.
Due Diligence Checklist
Before you buy a home or vacant residential land, you should be aware of a range of issues that may affect that property and impose restrictions or obligations on you, if you buy it. Click Here to read more.
Need a Home Loan?
Get pre-approved for a home loan within 48 hours. Click Here or more information.
- Last 24 Hours0
- Last 7 Days1
- Last 30 Days4
Views
Contact the Owner
Phone or Text: 0488 847 018
Enter Phone Code: 86437
Enter Phone Code: 86437
"*" indicates required fields