38 Kallista Rd, Maydena, TAS 7140
Sold Price Not Disclosed (20 Feb 2021)
Tasmania's South West Wilderness Awaits! 3BR House And Seperate Cafe
The Phone Code for this property is: 75999. Please quote this number when phoning or texting.
Work for yourself, set your own hours and explore Australia's stunning wilderness and adventure experiences. Bushwalking in Mt Field and Southwest National Park, Caving in Junee Caves, kayaking Lake Pedder, or mountain biking at Maydena Bike Park - so many choices just waiting for you.
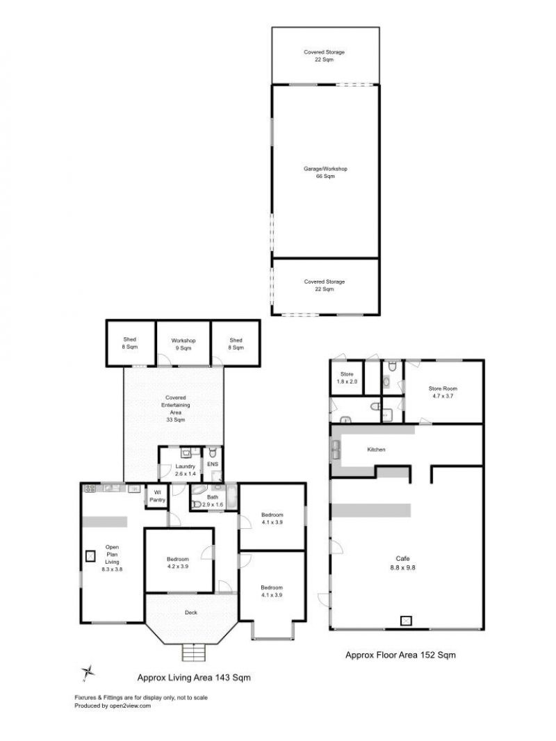
This rare find features a renovated 3 bedroom home, cafe and lifestyle to
enjoy. Your residence is nestled just behind the cafe for privacy and stunning views of Tyenna Peak and Mt Field National Park. As well as the 3 large bedrooms it also feature two bathrooms. Cook up a storm utilising the butler's pantry, or BBQ with the view on the front deck.
Why not diversify and use the huge back shed as a bike workshop. The mountain bike right next door boasting 820 metres of vertical elevation! You will still have plenty of storage in the two lock up sheds and third large woodshed to keep your fireplaces in the house and cafe stocked.
I know you want this already but I haven't told you about the Cafe yet!
Mountain Cafe is the first business you will see as you drive into the beautiful town of Maydena. As you walk through the door you will be wowed by the stunning myrtle timber floorboards and huge picture windows looking up to the (often snow capped) mountains. Current seating capacity is 20, but could easily hold around 35 people inside and plenty of alfresco dining area outside too.
Due to other priorities the cafe is currently closed. The current owners are passionate tourism advocates and are willing to work with the new owners to show them the ropes - they know what it's like, they had never owned a cafe before moving to Tasmania either!
Commercial kitchen, heated and refrigerated storage and displays, full training and stock available by negotiation.
Mountain Cafe also boasts the only petrol pumps in town, and the last before the stunning Southwest National Park. Closest petrol west is about 80kms to Strathgordon and Lake Pedder or 20kms back east to Westerway. Pumps are fully automated with computer system and required monitoring systems in place. Mountain Cafe offers Diesel, Unleaded and Premium Unleaded (95).
This investment is ready for you to take over, put your own processes into place and see it fly, along with the visitation to Mt Field National Park (currently in excess of 200,000 and fastest growth in Tasmanian Parks). The Maydena Bike Park has also led to an increased demand for services in the Maydena township.
Tasmania is truly the land of opportunity, and this opportunity is just waiting for you.
Disclaimer:
Whilst every care has been taken to verify the accuracy of the details in this advertisement, For Sale By Owner (forsalebyowner.com.au Pty Ltd) cannot guarantee its correctness. Prospective buyers or tenants need to take such action as is necessary, to satisfy themselves of any pertinent matters.
Work for yourself, set your own hours and explore Australia's stunning wilderness and adventure experiences. Bushwalking in Mt Field and Southwest National Park, Caving in Junee Caves, kayaking Lake Pedder, or mountain biking at Maydena Bike Park - so many choices just waiting for you.
This rare find features a renovated 3 bedroom home, cafe and lifestyle to
enjoy. Your residence is nestled just behind the cafe for privacy and stunning views of Tyenna Peak and Mt Field National Park. As well as the 3 large bedrooms it also feature two bathrooms. Cook up a storm utilising the butler's pantry, or BBQ with the view on the front deck.
Why not diversify and use the huge back shed as a bike workshop. The mountain bike right next door boasting 820 metres of vertical elevation! You will still have plenty of storage in the two lock up sheds and third large woodshed to keep your fireplaces in the house and cafe stocked.
I know you want this already but I haven't told you about the Cafe yet!
Mountain Cafe is the first business you will see as you drive into the beautiful town of Maydena. As you walk through the door you will be wowed by the stunning myrtle timber floorboards and huge picture windows looking up to the (often snow capped) mountains. Current seating capacity is 20, but could easily hold around 35 people inside and plenty of alfresco dining area outside too.
Due to other priorities the cafe is currently closed. The current owners are passionate tourism advocates and are willing to work with the new owners to show them the ropes - they know what it's like, they had never owned a cafe before moving to Tasmania either!
Commercial kitchen, heated and refrigerated storage and displays, full training and stock available by negotiation.
Mountain Cafe also boasts the only petrol pumps in town, and the last before the stunning Southwest National Park. Closest petrol west is about 80kms to Strathgordon and Lake Pedder or 20kms back east to Westerway. Pumps are fully automated with computer system and required monitoring systems in place. Mountain Cafe offers Diesel, Unleaded and Premium Unleaded (95).
This investment is ready for you to take over, put your own processes into place and see it fly, along with the visitation to Mt Field National Park (currently in excess of 200,000 and fastest growth in Tasmanian Parks). The Maydena Bike Park has also led to an increased demand for services in the Maydena township.
Tasmania is truly the land of opportunity, and this opportunity is just waiting for you.
Disclaimer:
Whilst every care has been taken to verify the accuracy of the details in this advertisement, For Sale By Owner (forsalebyowner.com.au Pty Ltd) cannot guarantee its correctness. Prospective buyers or tenants need to take such action as is necessary, to satisfy themselves of any pertinent matters.
Need a Home Loan?
Get pre-approved for a home loan within 48 hours. Click Here or more information.
- Last 24 Hours1
- Last 7 Days1
- Last 30 Days3
Views
Contact the Owner
Phone or Text: 0488 847 018
Enter Phone Code: 75999
Enter Phone Code: 75999
"*" indicates required fields