23 Warburton Road, George Town, TAS 7253
Sold Price: 350,000 (11 Sep 2015)
Luxury Living in Pipe Clay Bay!!
This immaculate modern home is located at the end of a quiet cul de sac in the desirable exclusive Pipe Clay Bay subdivision.
Only 3 minutes drive to the town centre, 7 minutes to the beautiful beaches at Low Head and 35 minutes to Launceston, this house is perfectly located to provide a relaxed, rewarding lifestyle in a safe and friendly community.
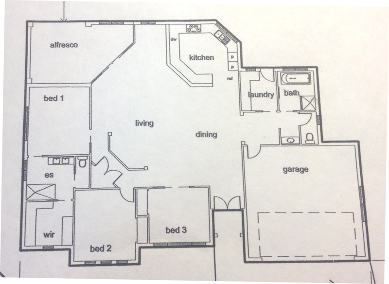
This house includes solar hot water, double glazed tinted windows, floor heating, five star installation and a large carousel heat pump which makes heating a breeze. The fully fenced landscaped property has a double garage with internal access within the roof line of the home. There is also drive through access to an additional 6x8 meter shed in the backyard, which is perfect for storing a boat / caravan or could be used as a workshop / rumpus.
The living areas are opened planned with a huge modern kitchen being the centre point. The kitchen is filled with quality appliances including an Ariston self cleaning oven, induction cook top, soft close cupboards/draws and sprawling granite bench tops. All appliances have six years extended warranty. Bi fold doors open up from the main hub to the alfresco area; this area features easy opening Ziptrak PVC blinds allowing you to entertain and enjoy this space all year round.
This spacious home has 3 generous size bedrooms, two with built in robes and main with a large walk in robe and en suite. The main bathroom features an oversized spa bath.
No expense was spared when completing this home; it's filled with unique high quality fixtures/ fittings throughout. Completed in 2011 this near new home is low maintenance inside and out allowing you to just move in and relax.
The price has been reduced to sell and offers are encouraged.
Book your private inspection today.
Disclaimer:
Whilst every care has been taken to verify the accuracy of the details in this advertisement, For Sale By Owner (forsalebyowner.com.au Pty Ltd) cannot guarantee its correctness. Prospective buyers or tenants need to take such action as is necessary, to satisfy themselves of any pertinent matters.
Only 3 minutes drive to the town centre, 7 minutes to the beautiful beaches at Low Head and 35 minutes to Launceston, this house is perfectly located to provide a relaxed, rewarding lifestyle in a safe and friendly community.
This house includes solar hot water, double glazed tinted windows, floor heating, five star installation and a large carousel heat pump which makes heating a breeze. The fully fenced landscaped property has a double garage with internal access within the roof line of the home. There is also drive through access to an additional 6x8 meter shed in the backyard, which is perfect for storing a boat / caravan or could be used as a workshop / rumpus.
The living areas are opened planned with a huge modern kitchen being the centre point. The kitchen is filled with quality appliances including an Ariston self cleaning oven, induction cook top, soft close cupboards/draws and sprawling granite bench tops. All appliances have six years extended warranty. Bi fold doors open up from the main hub to the alfresco area; this area features easy opening Ziptrak PVC blinds allowing you to entertain and enjoy this space all year round.
This spacious home has 3 generous size bedrooms, two with built in robes and main with a large walk in robe and en suite. The main bathroom features an oversized spa bath.
No expense was spared when completing this home; it's filled with unique high quality fixtures/ fittings throughout. Completed in 2011 this near new home is low maintenance inside and out allowing you to just move in and relax.
The price has been reduced to sell and offers are encouraged.
Book your private inspection today.
Disclaimer:
Whilst every care has been taken to verify the accuracy of the details in this advertisement, For Sale By Owner (forsalebyowner.com.au Pty Ltd) cannot guarantee its correctness. Prospective buyers or tenants need to take such action as is necessary, to satisfy themselves of any pertinent matters.
Features
Bath, Heating, Modern Bathroom, Modern Kitchen, Entertainment Area, Garden, Level Lawn, Pet Friendly, Security Lights, Close to Parklands, Close to Schools, Close to Shops, Close to Transport, Near Waterfront, Quiet Location, Air Conditioning, Built-ins, Internal Laundry, Pay TV Enabled, Polished Timber Floors, Remote Garage, Dishwasher, Workshop, Secure Parking
Need a Home Loan?
Get pre-approved for a home loan within 48 hours. Click Here or more information.
- Last 24 Hours0
- Last 7 Days0
- Last 30 Days2
Views
Contact the Owner
Phone or Text: 0488 847 018
Enter Phone Code:
Enter Phone Code:
"*" indicates required fields