14 Calverton Place, South Arm, TAS 7022
Sold Price Not Disclosed (22 Sep 2019)
South Arm Beauty
Situated in a quiet cul-de-sac and only a few minutes walk from the beach sits this very neat and low maintenance 3 bedroom home designed for the summer lifestyle and entertaining.
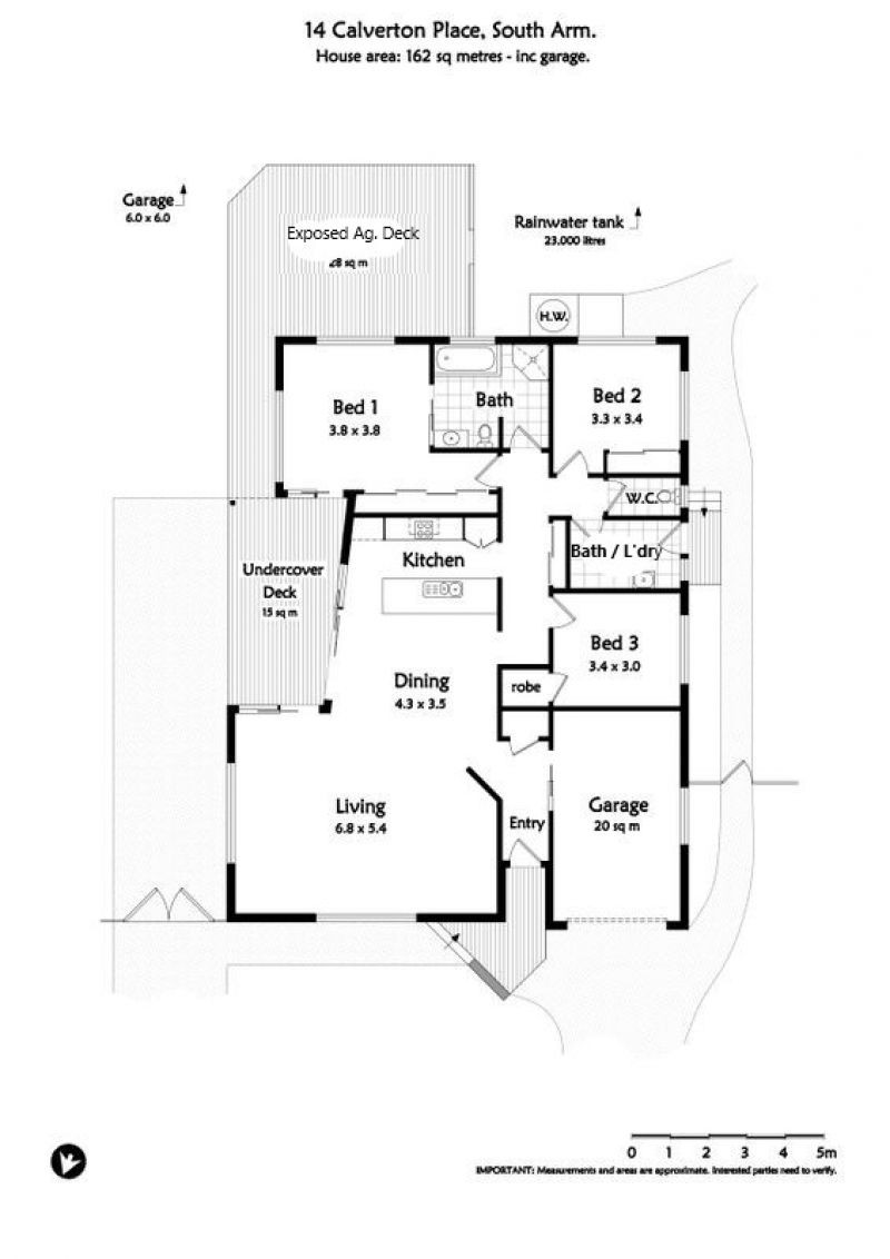
A spacious living area boasting large windows, polished floor boards and wood heater for those cool winter nights. Enjoy entertaining in your open plan dining and modern kitchen with island bench, built-in wine rack and large bi-fold glass doors opening out to a covered external deck area of exposed aggregate concrete.
Main bedroom with BIR and sliding door to deck area also has access to the main bathroom. The second and third bedrooms both feature built-in wardrobes and the garage has been made into an office / play room area to provide extra room for the kids and plenty of storage.
A second exposed aggregate deck area to the rear of the house and the shed has been fully fitted out with power, wood heater and bar. Large fully fenced low maintenance backyard allowing flexibility for new owners to design their perfect backyard setting that also offers a separate fenced area for your furry friends.
Situated in all day sun and only minutes from the beach, local cafe, Iron Pot Golf Course and the many other attractions that South Arm has to offer.
Inspection by appointment only.
Disclaimer:
Whilst every care has been taken to verify the accuracy of the details in this advertisement, For Sale By Owner (forsalebyowner.com.au Pty Ltd) cannot guarantee its correctness. Prospective buyers or tenants need to take such action as is necessary, to satisfy themselves of any pertinent matters.
The Phone Code for this property is: 21577. Please quote this number when phoning or texting.
A spacious living area boasting large windows, polished floor boards and wood heater for those cool winter nights. Enjoy entertaining in your open plan dining and modern kitchen with island bench, built-in wine rack and large bi-fold glass doors opening out to a covered external deck area of exposed aggregate concrete.
Main bedroom with BIR and sliding door to deck area also has access to the main bathroom. The second and third bedrooms both feature built-in wardrobes and the garage has been made into an office / play room area to provide extra room for the kids and plenty of storage.
A second exposed aggregate deck area to the rear of the house and the shed has been fully fitted out with power, wood heater and bar. Large fully fenced low maintenance backyard allowing flexibility for new owners to design their perfect backyard setting that also offers a separate fenced area for your furry friends.
Situated in all day sun and only minutes from the beach, local cafe, Iron Pot Golf Course and the many other attractions that South Arm has to offer.
Inspection by appointment only.
Disclaimer:
Whilst every care has been taken to verify the accuracy of the details in this advertisement, For Sale By Owner (forsalebyowner.com.au Pty Ltd) cannot guarantee its correctness. Prospective buyers or tenants need to take such action as is necessary, to satisfy themselves of any pertinent matters.
The Phone Code for this property is: 21577. Please quote this number when phoning or texting.
Need a Home Loan?
Get pre-approved for a home loan within 48 hours. Click Here or more information.
- Last 24 Hours0
- Last 7 Days0
- Last 30 Days0
Views
Contact the Owner
Phone or Text: 0488 847 018
Enter Phone Code: 21577
Enter Phone Code: 21577
"*" indicates required fields