1 Seven Mile Beach Rd, Seven Mile Beach, TAS 7170
Sold Price: 575,000 (09 Apr 2019)
Private Beachside Haven, Close To Hobart
Just a mere 50 paces to the expansive Seven Mile Beach and scenic walking /mountain bike tracks and a few minutes walk to the local store and public transport, this property truly has everything for a relaxed coastal, family lifestyle .
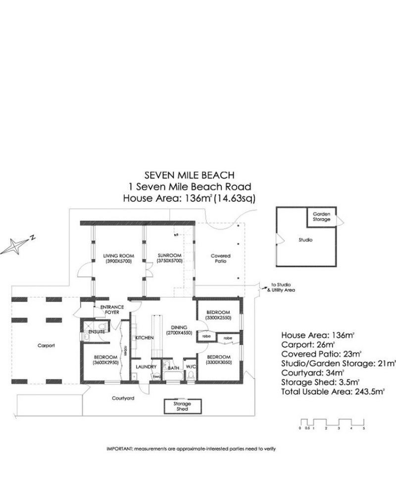
The large, fully fenced block is completely private after you drive into the double carport and close the rolling gate behind you.
There is also ample secure car space for two more vehicles in the front yard which also includes a 3m x 3m workshop for the handyman with solid, outside work bench and wood shed .
Adjacent to the fully covered front door area is a newly landscaped, private courtyard haven to relax in.
Upon entering the home there is the main bedroom with ensuite and full wall of built in robes. There are an additional two more good sized bedrooms, both with built in robes .
A separate expansive lounge room with reverse cycle heat pump leads through into a north facing sundrenched atrium-like formal dining and living area. Here there is also a centrally located wood heater to warm the whole home on a cold winters night.
The open, family styled kitchen with sky light has ample bench space and counter for casual dining. It has a recently added stainless steel electric oven with gas cook top. This leads through to the laundry with plenty of built in storage space and side door. Also in this area is the second bathroom and toilet.
The backyard greets you via large glass siding doors with a generous undercover deck ideal for all year entertaining, surrounded on one side by large manferns and the other with a colourful cottage garden . Also here, in close proximity to the home is a handy, fully carpeted studio/teenagers retreat providing extra living space or visitor accommodation. There is also a useful 3m x 3m storage shed off to one side . As you venture further out in to the backyard , you will find a gardener's paradise ! There is a herb garden, fully enclosed and extensive vegetable garden with raised beds and citrus trees. To top it off, there is a quirky and unique 4m x 3m hothouse .
Seven Mile Beach is a highly sought after and unique location. With Hobart International Airport ,several golf courses , Cambridge Park retail precinct in close proximity and Hobart CBD only a 15 minute commute away, a fantastic property with this location and lifestyle on offer will definitely attract plenty of attention - don't miss out !
Disclaimer:
Whilst every care has been taken to verify the accuracy of the details in this advertisement, For Sale By Owner (forsalebyowner.com.au Pty Ltd) cannot guarantee its correctness. Prospective buyers or tenants need to take such action as is necessary, to satisfy themselves of any pertinent matters.
The large, fully fenced block is completely private after you drive into the double carport and close the rolling gate behind you.
There is also ample secure car space for two more vehicles in the front yard which also includes a 3m x 3m workshop for the handyman with solid, outside work bench and wood shed .
Adjacent to the fully covered front door area is a newly landscaped, private courtyard haven to relax in.
Upon entering the home there is the main bedroom with ensuite and full wall of built in robes. There are an additional two more good sized bedrooms, both with built in robes .
A separate expansive lounge room with reverse cycle heat pump leads through into a north facing sundrenched atrium-like formal dining and living area. Here there is also a centrally located wood heater to warm the whole home on a cold winters night.
The open, family styled kitchen with sky light has ample bench space and counter for casual dining. It has a recently added stainless steel electric oven with gas cook top. This leads through to the laundry with plenty of built in storage space and side door. Also in this area is the second bathroom and toilet.
The backyard greets you via large glass siding doors with a generous undercover deck ideal for all year entertaining, surrounded on one side by large manferns and the other with a colourful cottage garden . Also here, in close proximity to the home is a handy, fully carpeted studio/teenagers retreat providing extra living space or visitor accommodation. There is also a useful 3m x 3m storage shed off to one side . As you venture further out in to the backyard , you will find a gardener's paradise ! There is a herb garden, fully enclosed and extensive vegetable garden with raised beds and citrus trees. To top it off, there is a quirky and unique 4m x 3m hothouse .
Seven Mile Beach is a highly sought after and unique location. With Hobart International Airport ,several golf courses , Cambridge Park retail precinct in close proximity and Hobart CBD only a 15 minute commute away, a fantastic property with this location and lifestyle on offer will definitely attract plenty of attention - don't miss out !
Disclaimer:
Whilst every care has been taken to verify the accuracy of the details in this advertisement, For Sale By Owner (forsalebyowner.com.au Pty Ltd) cannot guarantee its correctness. Prospective buyers or tenants need to take such action as is necessary, to satisfy themselves of any pertinent matters.
Features
Air Conditioning, Balcony/Patio/Terrace, Bath, Built-ins, Deck, Ensuite, Fireplace(s), Formal Lounge, Fully Fenced, Heating, Internal Laundry, Pay TV Enabled, Courtyard, Entertainment Area, Garden, Garden Shed, Level Lawn, Pet Friendly, Workshop, Close to Shops, Close to Transport, Near Waterfront, Quiet Location, Beach/Coastal Property
Need a Home Loan?
Get pre-approved for a home loan within 48 hours. Click Here or more information.
- Last 24 Hours0
- Last 7 Days0
- Last 30 Days7
Views
Contact the Owner
Phone or Text: 0488 847 018
Enter Phone Code:
Enter Phone Code:
"*" indicates required fields