13 Church Street, Ross, TAS 7209
Sold Price Not Disclosed (05 Oct 2021)
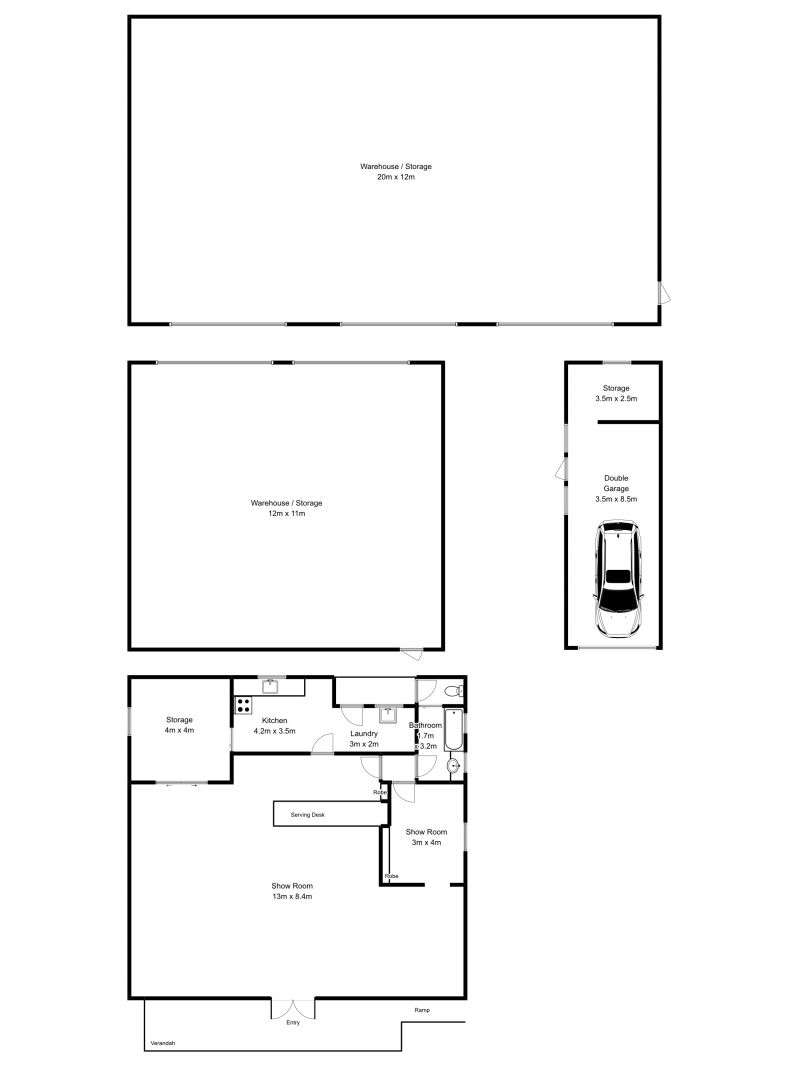
Large retail space with 2 excellent warehouses in picturesque heritage village of Ross, Tasmania
The Phone Code for this property is: 50252. Please quote this number when phoning or texting.
Escape to the picturesque, tourist village of Ross, Tasmania. Unique opportunity to purchase a retail space in a busy location with endless possibilities, plus enough space to park 20+ cars.
Set on less than half an acre in the main street of Ross, this property includes a large retail space with 2 adjoining rooms which can be used as storage plus kitchen. There's also 2 very large freestanding lockable garages at the rear of the property with vehicle access, plus 2 car tandem garage. An astute owner could easily transform the property into a large shop, restaurant, museum or private garage (STCA). The garages previously housed a classic car collection and shopfront presently runs as an antique collector's shop.
Nestled in the Tasmanian Midlands is the historic town of Ross (population 400). Centrally located between the cities of Launceston (approx. 40 min drive) and Hobart (approx. 1-hour drive), it's also a ten-minute drive to Campbell Town. Ross consists of bakeries and cafes, general store, pub with restaurant, post office, service station, churches, community hall, recreation ground, caravan park, playground, picnic areas and many tourist attractions.
The property is right next to the world famous Ross Village Bakery, attracting thousands of tourists for its inclusion in the beloved Japanese Anime film Kikki's Delivery Service.
Other notable attractions in the popular tourist town include the Tasmanian Wool Centre, the historical Female Convict Factory and convict built Ross Bridge. With streets full of historical buildings, surrounded by rolling green hills, Ross is a time capsule to the beauty and drama of Tasmania's colonial history.
Expected shop rental is $1,000 - $1,300+ per month
Expected warehouse/storage rental is $1,000+ per month
Annual council rates $1,137
Annual water rates $1,580
Additionally, there's the opportunity to purchase fixtures, fittings and existing stock within the shop. Please note hoist in garage not included.
This is a once in a lifetime chance to create the idyllic and relaxed lifestyle you have always dreamed of. Phone calls and inspections are welcome any time, please provide as much notice as possible.
Disclaimer:
Whilst every care has been taken to verify the accuracy of the details in this advertisement, For Sale By Owner (forsalebyowner.com.au Pty Ltd) cannot guarantee its correctness. Prospective buyers or tenants need to take such action as is necessary, to satisfy themselves of any pertinent matters.
Escape to the picturesque, tourist village of Ross, Tasmania. Unique opportunity to purchase a retail space in a busy location with endless possibilities, plus enough space to park 20+ cars.
Set on less than half an acre in the main street of Ross, this property includes a large retail space with 2 adjoining rooms which can be used as storage plus kitchen. There's also 2 very large freestanding lockable garages at the rear of the property with vehicle access, plus 2 car tandem garage. An astute owner could easily transform the property into a large shop, restaurant, museum or private garage (STCA). The garages previously housed a classic car collection and shopfront presently runs as an antique collector's shop.
Nestled in the Tasmanian Midlands is the historic town of Ross (population 400). Centrally located between the cities of Launceston (approx. 40 min drive) and Hobart (approx. 1-hour drive), it's also a ten-minute drive to Campbell Town. Ross consists of bakeries and cafes, general store, pub with restaurant, post office, service station, churches, community hall, recreation ground, caravan park, playground, picnic areas and many tourist attractions.
The property is right next to the world famous Ross Village Bakery, attracting thousands of tourists for its inclusion in the beloved Japanese Anime film Kikki's Delivery Service.
Other notable attractions in the popular tourist town include the Tasmanian Wool Centre, the historical Female Convict Factory and convict built Ross Bridge. With streets full of historical buildings, surrounded by rolling green hills, Ross is a time capsule to the beauty and drama of Tasmania's colonial history.
Expected shop rental is $1,000 - $1,300+ per month
Expected warehouse/storage rental is $1,000+ per month
Annual council rates $1,137
Annual water rates $1,580
Additionally, there's the opportunity to purchase fixtures, fittings and existing stock within the shop. Please note hoist in garage not included.
This is a once in a lifetime chance to create the idyllic and relaxed lifestyle you have always dreamed of. Phone calls and inspections are welcome any time, please provide as much notice as possible.
Disclaimer:
Whilst every care has been taken to verify the accuracy of the details in this advertisement, For Sale By Owner (forsalebyowner.com.au Pty Ltd) cannot guarantee its correctness. Prospective buyers or tenants need to take such action as is necessary, to satisfy themselves of any pertinent matters.
Features
Balcony/Patio/Terrace, Internal Bathroom, Kitchen, Polished Timber Floors, Reception/Show Room, Storage, Secure Parking, Shower Facilities, Storage Area, Alarm System, Close to Shops, Public Parking, Quiet Location
- Last 24 Hours0
- Last 7 Days3
- Last 30 Days7
Views
Contact the Owner
Phone or Text: 0488 847 018
Enter Phone Code: 50252
Enter Phone Code: 50252
"*" indicates required fields