4 Bluewater Court, Kingston Beach, TAS 7050
Sold Price: 925,000 (29 Jan 2019)
Spacious Family Home
The Phone Code for this property is: 81436. Please quote this number when phoning or texting.
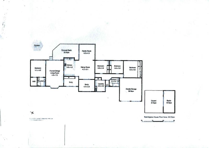
Situated in a quite cul de sac on 3/4 acre of land, this beautifull spacious family home has a sunny Northerly aspect towards Kingston Beach, the native landscaped garden attracts many birds and other wildlife and is a very tranquil area with a Gazebo and BBQ area.
A generous deck provides a sitting and dining area perfect for entertaining. Easy living continues inside the home with two generous living areas both with sliding doors to the deck. The open plan lounge dining room, and modern kitchen with Bosch induction cook top is the hub of the home with a large home office/ possible 5th bedroom leading off from the dining area. The second lounge leeds to the master bedroom which has a walk in wardrobe and modern en-suit and would be a perfect parents retreat if required.
Three other bedrooms include a large guest room with built in robe and en-suit bathroom and two double rooms with built in robes plus. A fully tiled modern family bathroom with both a bath and shower and a seperate toilet room. Also a good sized luandry fitted with lots of storage cupboards.
There is an attached double garage with internal access into the property and ample storage for tools also a large work bench. The double car port has a lock up storage /workshop/studio area.
The property benifits from NBN, Solar Hot Water, and intruder alarm, High quality carpets throughout, wood heater and 3 Daikin split cycle heat pumps, situated close to good private and public schools and only a few minutes drive to Kingston shopping centre and all local amenities with an easy walk to the beach. 15Min to Hobart CBD.
This property is available fully furnished by seperate negotiation
Disclaimer:
Whilst every care has been taken to verify the accuracy of the details in this advertisement, For Sale By Owner (forsalebyowner.com.au Pty Ltd) cannot guarantee its correctness. Prospective buyers or tenants need to take such action as is necessary, to satisfy themselves of any pertinent matters.
Situated in a quite cul de sac on 3/4 acre of land, this beautifull spacious family home has a sunny Northerly aspect towards Kingston Beach, the native landscaped garden attracts many birds and other wildlife and is a very tranquil area with a Gazebo and BBQ area.
A generous deck provides a sitting and dining area perfect for entertaining. Easy living continues inside the home with two generous living areas both with sliding doors to the deck. The open plan lounge dining room, and modern kitchen with Bosch induction cook top is the hub of the home with a large home office/ possible 5th bedroom leading off from the dining area. The second lounge leeds to the master bedroom which has a walk in wardrobe and modern en-suit and would be a perfect parents retreat if required.
Three other bedrooms include a large guest room with built in robe and en-suit bathroom and two double rooms with built in robes plus. A fully tiled modern family bathroom with both a bath and shower and a seperate toilet room. Also a good sized luandry fitted with lots of storage cupboards.
There is an attached double garage with internal access into the property and ample storage for tools also a large work bench. The double car port has a lock up storage /workshop/studio area.
The property benifits from NBN, Solar Hot Water, and intruder alarm, High quality carpets throughout, wood heater and 3 Daikin split cycle heat pumps, situated close to good private and public schools and only a few minutes drive to Kingston shopping centre and all local amenities with an easy walk to the beach. 15Min to Hobart CBD.
This property is available fully furnished by seperate negotiation
Disclaimer:
Whilst every care has been taken to verify the accuracy of the details in this advertisement, For Sale By Owner (forsalebyowner.com.au Pty Ltd) cannot guarantee its correctness. Prospective buyers or tenants need to take such action as is necessary, to satisfy themselves of any pertinent matters.
Need a Home Loan?
Get pre-approved for a home loan within 48 hours. Click Here or more information.
- Last 24 Hours0
- Last 7 Days0
- Last 30 Days10
Views
Contact the Owner
Phone or Text: 0488 847 018
Enter Phone Code: 81436
Enter Phone Code: 81436
"*" indicates required fields