3 Vittorio Rd, Mernda, VIC 3754
Sold Price: 720,000 (03 Jun 2019)
Brand New 4Bed 2Bath + Study 2LUG 600m2 block
The Phone Code for this property is: 30313. Please quote this number when phoning or texting.
'Mernda' Brand new 4 bedroom, 2 bathroom + Study home
Simply walk in and start enjoying the benefits of this well designed and energy efficient family home.
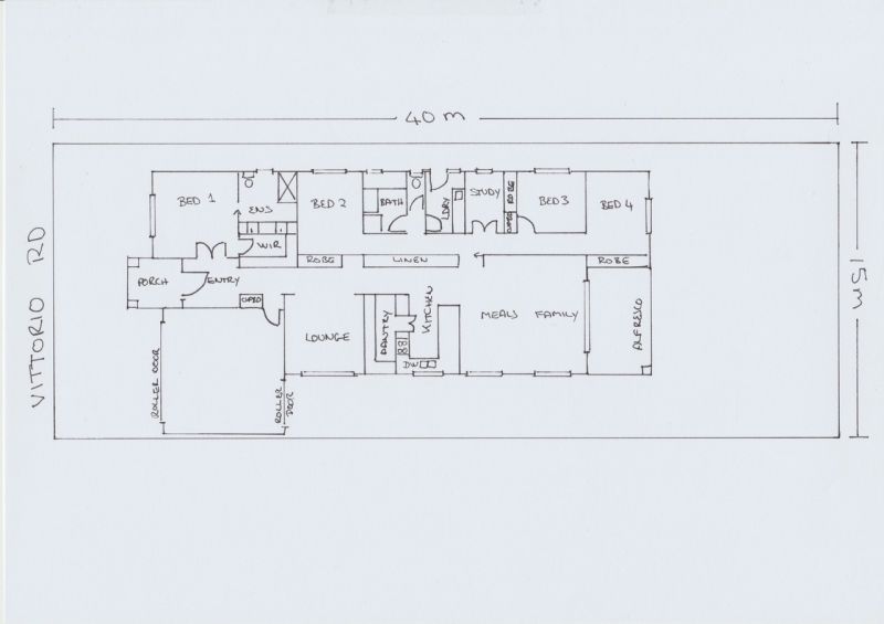
After entering via either the large front door or double lock up garage with internal access, you'll notice the high ceilings which enhance the sense of light and spaciousness.
The retreat style main bedroom includes a large en-suite featuring double vanities, large shower and a toilet. The spacious WIR provides ample hanging space.
A wide hallway leads you past the formal lounge/ movie room which then opens up into the expansive kitchen that features stone bench tops and all new appliances including 75cm electric under-bench oven, 75cm gas cooktop, double sink and dishwasher plus a huge walk in pantry that would inspire any budding chef.
The large family and dining area offers an abundance of space, natural light and sliding doors that open out onto an Alfresco area, and a fully enclosed, level and easy to maintain yard, perfect for entertaining and a summer BBQ.
In addition to the generous living spaces, 3 large sized bedrooms, all with BIR have been tucked away from the hustle and bustle and are accessed by the hallway adjoining the main living/dining area. The hallway also provides access to the family bathroom, with a convenient separate toilet and the laundry. There's also an expansive 4m wide linen press and separate study/computer nook.
Easy access to Mernda Village, the new train station, shopping hub, schools and 50m from bus stops at end of the street, makes this a great family location with access to all amenities.
Ceiling ducted heating and evaporative cooling through out the home.
Water tank plumbed for use with both toilets.
Quality flooring through out
High Ceilings
Fully fenced
Low maintenance yard
Side access to rear yard
Feature concrete driveway
6 Star energy rating
Double Glazed Windows
R 2.7 Wall Insulation
R 6.0 Ceiling Insulation
Everything you'll ever need
Don't miss out on this one
Disclaimer:
Whilst every care has been taken to verify the accuracy of the details in this advertisement, For Sale By Owner (forsalebyowner.com.au Pty Ltd) cannot guarantee its correctness. Prospective buyers or tenants need to take such action as is necessary, to satisfy themselves of any pertinent matters.
'Mernda' Brand new 4 bedroom, 2 bathroom + Study home
Simply walk in and start enjoying the benefits of this well designed and energy efficient family home.
After entering via either the large front door or double lock up garage with internal access, you'll notice the high ceilings which enhance the sense of light and spaciousness.
The retreat style main bedroom includes a large en-suite featuring double vanities, large shower and a toilet. The spacious WIR provides ample hanging space.
A wide hallway leads you past the formal lounge/ movie room which then opens up into the expansive kitchen that features stone bench tops and all new appliances including 75cm electric under-bench oven, 75cm gas cooktop, double sink and dishwasher plus a huge walk in pantry that would inspire any budding chef.
The large family and dining area offers an abundance of space, natural light and sliding doors that open out onto an Alfresco area, and a fully enclosed, level and easy to maintain yard, perfect for entertaining and a summer BBQ.
In addition to the generous living spaces, 3 large sized bedrooms, all with BIR have been tucked away from the hustle and bustle and are accessed by the hallway adjoining the main living/dining area. The hallway also provides access to the family bathroom, with a convenient separate toilet and the laundry. There's also an expansive 4m wide linen press and separate study/computer nook.
Easy access to Mernda Village, the new train station, shopping hub, schools and 50m from bus stops at end of the street, makes this a great family location with access to all amenities.
Ceiling ducted heating and evaporative cooling through out the home.
Water tank plumbed for use with both toilets.
Quality flooring through out
High Ceilings
Fully fenced
Low maintenance yard
Side access to rear yard
Feature concrete driveway
6 Star energy rating
Double Glazed Windows
R 2.7 Wall Insulation
R 6.0 Ceiling Insulation
Everything you'll ever need
Don't miss out on this one
Disclaimer:
Whilst every care has been taken to verify the accuracy of the details in this advertisement, For Sale By Owner (forsalebyowner.com.au Pty Ltd) cannot guarantee its correctness. Prospective buyers or tenants need to take such action as is necessary, to satisfy themselves of any pertinent matters.
Features
Air Conditioning, Bath, Built-ins, Dishwasher, Ensuite, Formal Lounge, Entertainment Area, Level Lawn, Pet Friendly, Close to Parklands, Close to Schools, Close to Shops
Due Diligence Checklist
Before you buy a home or vacant residential land, you should be aware of a range of issues that may affect that property and impose restrictions or obligations on you, if you buy it. Click Here to read more.
Need a Home Loan?
Get pre-approved for a home loan within 48 hours. Click Here or more information.
- Last 24 Hours0
- Last 7 Days0
- Last 30 Days2
Views
Contact the Owner
Phone or Text: 0488 847 018
Enter Phone Code: 30313
Enter Phone Code: 30313
"*" indicates required fields