225 Bevic Road, Clarence Point, TAS 7270
Sold Price: 780,000 (27 Jan 2018)
East Nor' Tamar Valley Country Lifestyle Property
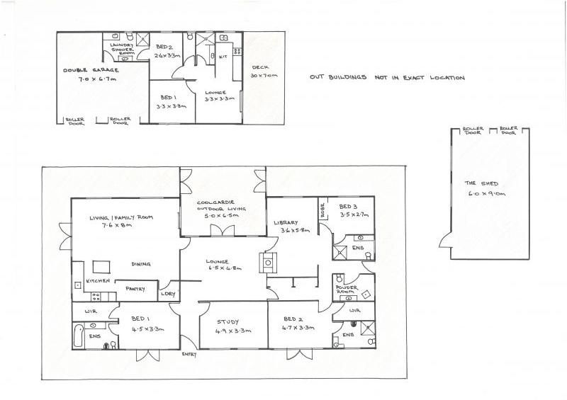
Built in 2009, this much admired property is set on 3-acres with landscaped gardens and panoramic views of the Tamar River. East Nor' is a reproduction Federation style 3-bedroom home with a 2-bedroom fully self contained guest residence.
Clarence Point has been home to yachting enthusiasts and competitors since 1880.
Located at the tip of the Tamar Wine region and 40-minutes from Launceston.
10-minute drive to Historic Beaconsfield shops, services, Doctors Medical Centre, restaurants and tourism attractions.
Period features and 10ft ceilings throughout the home.
Oversize solid cedar doors, timber window frames, plaster cornices and picture rails.
Solid polished timber floors and wool carpets.
Living Rooms - Open plan Kitchen, Living and Dining, Formal Lounge, Library and Study.
Each of the bedrooms has a beautifully appointed ensuite. Two with walk-in robes.
Hydronic heating system with radiators.
Double sided wood heater with option of raising the glass door for an open fireplace.
Separate shed / workshop / garage.
Garage parking for 4 cars with ample additional parking on the circular driveway.
Kitchen garden with raised produce beds.
Space near the dam for a fully self-sufficient produce garden.
In addition to the separate guest residence, the 2-bedroom wing of the main house includes the library, powder room and separate entrance, can be closed off allowing privacy to visitors, teenagers, elderly family members or Airbnb guests.
Disclaimer:
Whilst every care has been taken to verify the accuracy of the details in this advertisement, For Sale By Owner (forsalebyowner.com.au Pty Ltd) cannot guarantee its correctness. Prospective buyers or tenants need to take such action as is necessary, to satisfy themselves of any pertinent matters.
Clarence Point has been home to yachting enthusiasts and competitors since 1880.
Located at the tip of the Tamar Wine region and 40-minutes from Launceston.
10-minute drive to Historic Beaconsfield shops, services, Doctors Medical Centre, restaurants and tourism attractions.
Period features and 10ft ceilings throughout the home.
Oversize solid cedar doors, timber window frames, plaster cornices and picture rails.
Solid polished timber floors and wool carpets.
Living Rooms - Open plan Kitchen, Living and Dining, Formal Lounge, Library and Study.
Each of the bedrooms has a beautifully appointed ensuite. Two with walk-in robes.
Hydronic heating system with radiators.
Double sided wood heater with option of raising the glass door for an open fireplace.
Separate shed / workshop / garage.
Garage parking for 4 cars with ample additional parking on the circular driveway.
Kitchen garden with raised produce beds.
Space near the dam for a fully self-sufficient produce garden.
In addition to the separate guest residence, the 2-bedroom wing of the main house includes the library, powder room and separate entrance, can be closed off allowing privacy to visitors, teenagers, elderly family members or Airbnb guests.
Disclaimer:
Whilst every care has been taken to verify the accuracy of the details in this advertisement, For Sale By Owner (forsalebyowner.com.au Pty Ltd) cannot guarantee its correctness. Prospective buyers or tenants need to take such action as is necessary, to satisfy themselves of any pertinent matters.
Features
Deck, Dishwasher, Ensuite, Fireplace(s), Formal Lounge, Entertainment Area, Garden, Garden Shed, Grey Water System, Built-ins, Security Lights, Security Windows
Need a Home Loan?
Get pre-approved for a home loan within 48 hours. Click Here or more information.
- Last 24 Hours0
- Last 7 Days0
- Last 30 Days4
Views
Contact the Owner
Phone or Text: 0488 847 018
Enter Phone Code:
Enter Phone Code:
"*" indicates required fields