8 Beach Rd, Middleton, TAS 7163
Sold Price Not Disclosed (12 May 2018)
This 6-Star Energy rated cottage is just a two minute walk to the beach, boat ramp, General Store and Post Office.
With the essential northerly aspect for optimum solar passive energy gains and tiled concrete floor in the living area providing thermal mass, a cosy temperature is easy to maintain year round with a minimum of additional heating.
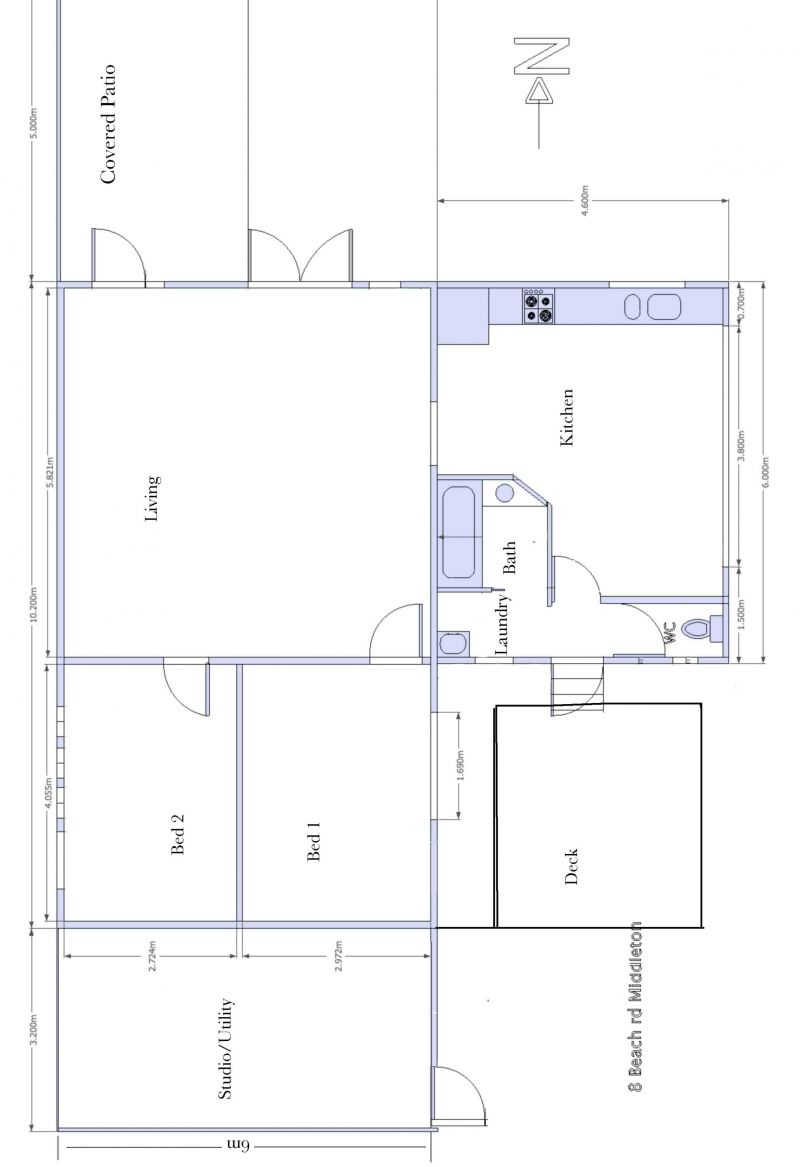
Watch the sun rise over Bruny Island and the D'entrecasteaux Channel from the East-facing feature window in the modern kitchen while cooking with the five burner gas top or electric wall oven.
There are two tidy bedrooms off the main living area, a clean and well appointed bathroom and separate toilet.
A 6 x 5 metre patio outside the north facing French Doors is semi covered and provides a private and sheltered space for morning coffee or evening BBQ's.
Step out the back door to access the 6 x 9 metre colour bond shed or the 6 x 3 metre office/studio/utility room on the south end of the house.
The 2688 square metre block has a selection of native plants towards the road/front boundary and the rear of the property has more than 20 established fruit and nut trees and a 3 x 3 garden shed.
While the local South Channel micro climate helps to minimise frosts, it also provides a 900mm plus annual rainfall that usually keeps the two water tanks of 23,000 and 10,000 litres well supplied.
The quiet village of Middleton is 40 min south of Hobart, 30 minutes to Kingston, and 8 minutes to the nearest school at Woodbridge. Bruny Island is about 10 minutes by tinnie.
The house has power underground from the road, telstra landline, LPG instant hot water with dual remote temperature controls , a slow combustion wood fueled heater and NBN.
Disclaimer:
Whilst every care has been taken to verify the accuracy of the details in this advertisement, For Sale By Owner (forsalebyowner.com.au Pty Ltd) cannot guarantee its correctness. Prospective buyers or tenants need to take such action as is necessary, to satisfy themselves of any pertinent matters.
Watch the sun rise over Bruny Island and the D'entrecasteaux Channel from the East-facing feature window in the modern kitchen while cooking with the five burner gas top or electric wall oven.
There are two tidy bedrooms off the main living area, a clean and well appointed bathroom and separate toilet.
A 6 x 5 metre patio outside the north facing French Doors is semi covered and provides a private and sheltered space for morning coffee or evening BBQ's.
Step out the back door to access the 6 x 9 metre colour bond shed or the 6 x 3 metre office/studio/utility room on the south end of the house.
The 2688 square metre block has a selection of native plants towards the road/front boundary and the rear of the property has more than 20 established fruit and nut trees and a 3 x 3 garden shed.
While the local South Channel micro climate helps to minimise frosts, it also provides a 900mm plus annual rainfall that usually keeps the two water tanks of 23,000 and 10,000 litres well supplied.
The quiet village of Middleton is 40 min south of Hobart, 30 minutes to Kingston, and 8 minutes to the nearest school at Woodbridge. Bruny Island is about 10 minutes by tinnie.
The house has power underground from the road, telstra landline, LPG instant hot water with dual remote temperature controls , a slow combustion wood fueled heater and NBN.
Disclaimer:
Whilst every care has been taken to verify the accuracy of the details in this advertisement, For Sale By Owner (forsalebyowner.com.au Pty Ltd) cannot guarantee its correctness. Prospective buyers or tenants need to take such action as is necessary, to satisfy themselves of any pertinent matters.
Need a Home Loan?
Get pre-approved for a home loan within 48 hours. Click Here or more information.
- Last 24 Hours0
- Last 7 Days2
- Last 30 Days8
Views
Contact the Owner
Phone or Text: 0488 847 018
Enter Phone Code:
Enter Phone Code:
"*" indicates required fields