189 Stuhrs Road, Darnum, VIC 3822

Acreage/Semi-Rural 5 4 2
Sold Price Not Disclosed (05 Mar 2018)
TJURINGA! Impressive Lifestyle or Farm on 40 acres offering sustainability and comfort.
Surrounded by wide open farmland and your own natural bush teeming with native flora, wildlife and bird song, 189 Stuhrs Road is a world away from big city stresses. Less than an hour from Melbourne's eastern suburbs and eight minutes from Warragul, this outstanding property offers a self sufficient lifestyle combined with all the comforts of a modern family home.

Key features:
- Lifestyle, comfort and indulgence
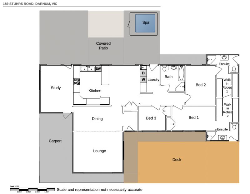
- Site area: 40 acres (approx)
- Superb four bedroom brick veneer family home and separate visitor accommodation
- Four gently sloping farm fenced paddocks and park like gardens
- Abundant water from tanks, bore and spring fed dam
- Kitchen garden, established orchard and varieties of citrus
- Minutes from Warragul CBD and one hour from Melbourne's eastern suburbs, Baw Baw's snowfields and Inverloch's beaches

A nod to mid century modernism, this impressive renovated and extended home, with its spacious interior, provides modern family accommodation. The welcoming front entry is via a large deck which overlooks park like gardens, farmland and the Strezslecki Ranges. A charming living room with beautiful garden views includes a homely wood burner as well as the convenience of efficient split system reverse cycle heating and cooling.

The north facing kitchen adjoins family/meals area opening to a large covered patio with a statement wood fired pizza oven, spa and kitchen garden overlooking verdant pastures and your very own bush-land. The four bedrooms include two masters each with walk in robes and full en-suites, one single bedroom with inbuilt robe and one that is currently used as a study. Each bedroom has split system reverse cycle heating and cooling. There is a large elegant family bathroom and substantial modern laundry.

A renovated studio provides additional accommodation with its own kitchen, meals area, bedroom/living, en-suite, split system reverse cycle heating and cooling and private under cover deck which overlooks an established orchard.

Also a relocatable building is ready for renovation and offers opportunity for a second studio already with existing water heater, power, plumbed kitchen sink and reverse cycle heating and cooling split system.

Livestock facilities include cattle ramp, four farm fenced paddocks over gently sloping flat land serviced by a central lane-way allowing for safe and easy movement of stock, with water to all. Agist or enjoy your own horses or your livestock of choice, or relax watching local farmers continue the daily rhythm of farm and rural life. One might also consider truffles, walnuts, olives, garlic or vines. There is an expansive, high roof farm shed with concrete slab floor, hot and cold water, plumbed sink and power. The shed could accommodate the largest motor home and caravan or both and a boat with room to spare as well

​Additional features include two large parking areas for multiple cars, two car ports, grid connected solar photo-voltaic system with ten panels, solar hot-water, tanks totaling 50kL (approx), spring fed dam, bore water, huge and ready supply of fire wood on site and wireless NBN.

Established orchard planting includes heritage apples, avocado, a citrus grove, olives, crab apple, quince, plums, cherries, apricots, nectarines, blueberries, raspberries, kiwi fruit as well as hazel nuts and fig. Potential self sufficiency with your own fire wood, vegetables and fruit and if you like, a range of poultry and meats.

This is your chance to enjoy the rural life with the convenience and facilities of nearby Warragul and Darnum. Regular commutable Met as well as Vline trains and the recently upgraded M1 Freeway connect Warragul with Melbourne and East Gippsland. The well serviced district has a major hospital, golf club, bowling club, major swimming and sports' stadium, netball park, tennis courts and skate board centre, art's centre, historic music village, art galleries, a museum, several private gyms, many restaurants and cafes.

Three independent schools including the high performing Saint Paul's Anglican Grammar, excellent state secondary colleges and three large primary schools as well as a choice of small 'rural' schools. School bus pick up and drop point at the front gate. The property is just an hour from Melbourne's eastern suburbs, Baw Baw's snowfields and Inverloch's beaches.

This superb property offers a country lifestyle many can only dream of in an excellent location and won't last long. Visits outside of openings will be accommodated.

Schools from five* minutes to 15 minutes away.
St Paul's Grammar
Warragul Secondary College
Marist Sion Secondary College
Chiaro Christian College
Warragul Primary School
St Paul's Grammar (Primary Classes)
Warragul North Primary School
Chiaro Christian School
St. Joseph's Catholic Primary School
Darnum Primary School*
Warragul Specialist School
Yarragon Primary School

Disclaimer:

Whilst every care has been taken to verify the accuracy of the details in this advertisement, For Sale By Owner (forsalebyowner.com.au Pty Ltd) cannot guarantee its correctness. Prospective buyers or tenants need to take such action as is necessary, to satisfy themselves of any pertinent matters.
Features

Air Conditioning, Balcony/Patio/Terrace, Bath, Broadband, Built-ins, Dishwasher, Ensuite, Fireplace(s), Balcony, Entertainment Area, Garden, Garden Shed, Level Lawn, Outside Spa, Fully Fenced, Gas Enabled, Heating, Internal Laundry, Living Area, Modern Bathroom, Modern Kitchen, Renovated, Renovated Bathroom, Renovated Kitchen, Separate Dining Room, Study, Rainwater Tank, Shower Facilities, Solar Hot Water, Solar Panels, Spa Bath/Jacuzzi, Storage Area, Close to Parklands, Close to Schools, Close to Shops, Close to Transport, Quiet Location, Views, Nature Property, Courtyard

Due Diligence Checklist

Before you buy a home or vacant residential land, you should be aware of a range of issues that may affect that property and impose restrictions or obligations on you, if you buy it. Click Here to read more.

    Need a Home Loan?

    Get pre-approved for a home loan within 48 hours. Click Here or more information.

    Views
  • Last 24 Hours1
  • Last 7 Days1
  • Last 30 Days1
Contact the Owner
Phone or Text: 0488 847 018
Enter Phone Code:

"*" indicates required fields