9 Harmsworth Road, Oakdowns, TAS 7019
Sold Price Not Disclosed (12 Jun 2017)
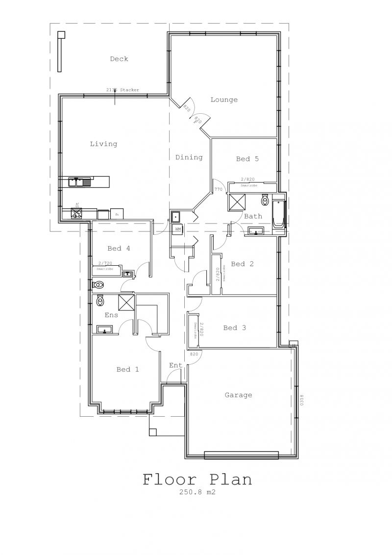
5 Bedroom Family Home
Individually designed and constructed by an H.I.A. multi award winning builder, this contemporary home is positioned in the popular new homes area of Oakdowns.
The home boasts 5 bedrooms of which 3 are double size, the master suite has access to an ensuite and walk in robe, the second bedroom has direct access to the main bathroom, with added conveniance of a powder room for guests. Both showers are fully tiled and provide for direct walk in access.
The kitchen and main living areas are set to the rear of the home with north facing windows and direct access to the large alfresco covered and tiled deck with commanding views to both
Mt. Wellington and Ralphs Bay.
In addition to the family living area there is a large private lounge room accessed via double doors for times when quiet relaxation is the order of the day.
The kitchen has been thoughtfully designed with the use of European appliances.
Your every compfort and security has been anticipated with this home from the security system, internet ports, NBN, external security sensors and lighting, double glazing to all windows and doors, 6.5 energy star rating, reverse cycle air conditioner, and quality carpets and floor tiles throughout.
Situated on an almost level 750m2 fenced and landscaped block. An astute purchaser will definitely appreciate this well-appointed 5 bedroom family home.
Disclaimer:
Whilst every care has been taken to verify the accuracy of the details in this advertisement, For Sale By Owner (forsalebyowner.com.au Pty Ltd) cannot guarantee its correctness. Prospective buyers or tenants need to take such action as is necessary, to satisfy themselves of any pertinent matters.
The home boasts 5 bedrooms of which 3 are double size, the master suite has access to an ensuite and walk in robe, the second bedroom has direct access to the main bathroom, with added conveniance of a powder room for guests. Both showers are fully tiled and provide for direct walk in access.
The kitchen and main living areas are set to the rear of the home with north facing windows and direct access to the large alfresco covered and tiled deck with commanding views to both
Mt. Wellington and Ralphs Bay.
In addition to the family living area there is a large private lounge room accessed via double doors for times when quiet relaxation is the order of the day.
The kitchen has been thoughtfully designed with the use of European appliances.
Your every compfort and security has been anticipated with this home from the security system, internet ports, NBN, external security sensors and lighting, double glazing to all windows and doors, 6.5 energy star rating, reverse cycle air conditioner, and quality carpets and floor tiles throughout.
Situated on an almost level 750m2 fenced and landscaped block. An astute purchaser will definitely appreciate this well-appointed 5 bedroom family home.
Disclaimer:
Whilst every care has been taken to verify the accuracy of the details in this advertisement, For Sale By Owner (forsalebyowner.com.au Pty Ltd) cannot guarantee its correctness. Prospective buyers or tenants need to take such action as is necessary, to satisfy themselves of any pertinent matters.
Need a Home Loan?
Get pre-approved for a home loan within 48 hours. Click Here or more information.
- Last 24 Hours0
- Last 7 Days1
- Last 30 Days2
Views
Contact the Owner
Phone or Text: 0488 847 018
Enter Phone Code:
Enter Phone Code:
"*" indicates required fields