199 Pelverata Road, Sandfly, TAS 7150
Sold Price: 482,000 (09 Mar 2017)
Outstanding Lifestyle, 20 Mins From Hobart
This beautiful and very private 1-acre property provides a wonderful rural lifestyle within easy reach of Hobart. The Southern Outlet, which leads swiftly to the city, is 2 km away from the front gate.
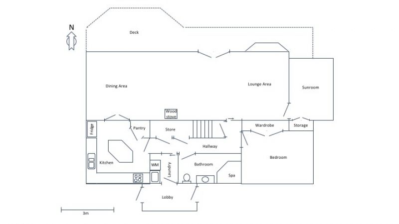
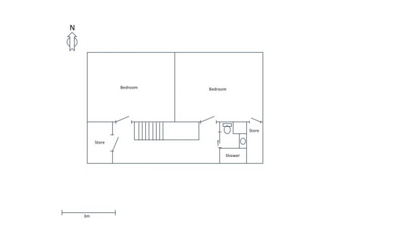
The home is beautifully constructed out of mud brick and timber, and has undergone substantial renovation and improvement since it was first built in 1995. Major features are -
• a northerly aspect
• fine views of Mt Wellington and Cathedral Rock
• a comfortable internal temperature in all seasons
• a modern kitchen with induction cooktop
• a spa bath
• a sheltered deck on the northern side of the house, suitable for outdoor eating and entertaining.
• good storage, including a large attic
The surrounds include -
• garage space for 2 cars
• a large bitumen forecourt
• a workshop and large adjacent covered area currently used for gardening tools and materials and for other storage
• a large, well-established and highly productive organic food garden, with a plastic tunnel house, multiple vegetable beds, a wide range of berries and an orchard
• a sizeable dam (in which platypus are often seen)
• a large chicken house and chicken yard.
• a creek which runs for 4 to 5 months of each year
The dam is shared with an adjacent property, but provides ample water for irrigating the garden, and also provides security in case of fire. Water for the house comes from two 20,000 litre rainwater tanks.
The well-regarded primary school at Margate is 7 km away, and is serviced by a school bus which passes the property. Regular bus services to and from Hobart, including bus services to Hobart schools and colleges, stop at Sandfly, 2 km away.
This is an exceptional property, very suitable for a family, and indeed for anyone who wishes to enjoy the benefits of living in the country whilst also having easy access to the city.
Disclaimer:
Whilst every care has been taken to verify the accuracy of the details in this advertisement, For Sale By Owner (forsalebyowner.com.au Pty Ltd) cannot guarantee its correctness. Prospective buyers or tenants need to take such action as is necessary, to satisfy themselves of any pertinent matters.
The home is beautifully constructed out of mud brick and timber, and has undergone substantial renovation and improvement since it was first built in 1995. Major features are -
• a northerly aspect
• fine views of Mt Wellington and Cathedral Rock
• a comfortable internal temperature in all seasons
• a modern kitchen with induction cooktop
• a spa bath
• a sheltered deck on the northern side of the house, suitable for outdoor eating and entertaining.
• good storage, including a large attic
The surrounds include -
• garage space for 2 cars
• a large bitumen forecourt
• a workshop and large adjacent covered area currently used for gardening tools and materials and for other storage
• a large, well-established and highly productive organic food garden, with a plastic tunnel house, multiple vegetable beds, a wide range of berries and an orchard
• a sizeable dam (in which platypus are often seen)
• a large chicken house and chicken yard.
• a creek which runs for 4 to 5 months of each year
The dam is shared with an adjacent property, but provides ample water for irrigating the garden, and also provides security in case of fire. Water for the house comes from two 20,000 litre rainwater tanks.
The well-regarded primary school at Margate is 7 km away, and is serviced by a school bus which passes the property. Regular bus services to and from Hobart, including bus services to Hobart schools and colleges, stop at Sandfly, 2 km away.
This is an exceptional property, very suitable for a family, and indeed for anyone who wishes to enjoy the benefits of living in the country whilst also having easy access to the city.
Disclaimer:
Whilst every care has been taken to verify the accuracy of the details in this advertisement, For Sale By Owner (forsalebyowner.com.au Pty Ltd) cannot guarantee its correctness. Prospective buyers or tenants need to take such action as is necessary, to satisfy themselves of any pertinent matters.
Need a Home Loan?
Get pre-approved for a home loan within 48 hours. Click Here or more information.
- Last 24 Hours0
- Last 7 Days1
- Last 30 Days7
Views
Contact the Owner
Phone or Text: 0488 847 018
Enter Phone Code:
Enter Phone Code:
"*" indicates required fields