18 Fairway Crescent, Riverside, TAS 7250
Sold Price: 350,000 (07 Dec 2017)
Renovated Home in Riverside
This clean and bright renovated home with a sunny northern aspect is positioned a "stone's throw" from all of Riverside's desired conveniences: the swimming pool, tennis courts, bowls club, golf course, post office and shopping centre.
It is only a few minutes' walk to all of the public and private schools in Riverside, and an easy short bike ride into town.
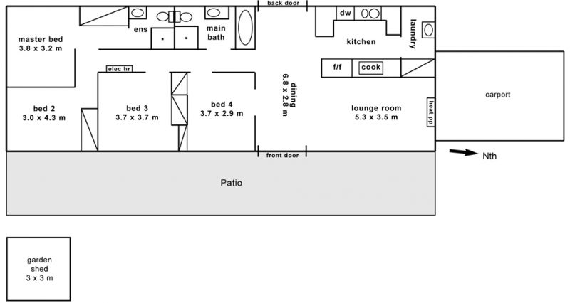
The modern renovations maximise the light and space of open-planned living, with wooden floorboards. The kitchen, dining and lounge room flow together and there are glimpses of the mountains and city lights.
The internal laundry adjoins the kitchen, which has a water filter on the sink, as well as a plumbed side-by-side fridge with icemaker. Both bathrooms have stunning stone-top vanities, the main with spa bath.
All four bedrooms have built-in wardrobes. There is a large heat pump as well as an electric wall heater, and energy-saving LED downlights inside and outside.
The rear gate accesses the large, secure backyard (block size over 1000 m2), which has pretty landscaped gardens, and plenty of flat grassed area. This private access is handy for towed vehicles. There is a 3 m x 3 m shed, but also potential to add further built storage easily.
At the front there is a single carport tall enough to fit a boat trailer, plus further concreted space available for other vehicles.
This convenient, stylish and low-maintenance property can be inspected via an enquiry through this webpage. The furniture shown is not included.
Disclaimer:
Whilst every care has been taken to verify the accuracy of the details in this advertisement, For Sale By Owner (forsalebyowner.com.au Pty Ltd) cannot guarantee its correctness. Prospective buyers or tenants need to take such action as is necessary, to satisfy themselves of any pertinent matters.
It is only a few minutes' walk to all of the public and private schools in Riverside, and an easy short bike ride into town.
The modern renovations maximise the light and space of open-planned living, with wooden floorboards. The kitchen, dining and lounge room flow together and there are glimpses of the mountains and city lights.
The internal laundry adjoins the kitchen, which has a water filter on the sink, as well as a plumbed side-by-side fridge with icemaker. Both bathrooms have stunning stone-top vanities, the main with spa bath.
All four bedrooms have built-in wardrobes. There is a large heat pump as well as an electric wall heater, and energy-saving LED downlights inside and outside.
The rear gate accesses the large, secure backyard (block size over 1000 m2), which has pretty landscaped gardens, and plenty of flat grassed area. This private access is handy for towed vehicles. There is a 3 m x 3 m shed, but also potential to add further built storage easily.
At the front there is a single carport tall enough to fit a boat trailer, plus further concreted space available for other vehicles.
This convenient, stylish and low-maintenance property can be inspected via an enquiry through this webpage. The furniture shown is not included.
Disclaimer:
Whilst every care has been taken to verify the accuracy of the details in this advertisement, For Sale By Owner (forsalebyowner.com.au Pty Ltd) cannot guarantee its correctness. Prospective buyers or tenants need to take such action as is necessary, to satisfy themselves of any pertinent matters.
Features
Air Conditioning, Balcony/Patio/Terrace, Bath, Broadband, Built-ins, Deck, Dishwasher, Ensuite, Fully Fenced, Heating, Inside Spa, Internal Laundry, Modern Bathroom, Polished Timber Floors, Renovated, Renovated Bathroom, Garden, Garden Shed, Level Lawn, Pet Friendly, Storage Area, Security Lights, Close to Schools, Close to Shops, Close to Transport, Quiet Location, Modern Kitchen, Renovated Kitchen
Need a Home Loan?
Get pre-approved for a home loan within 48 hours. Click Here or more information.
- Last 24 Hours0
- Last 7 Days0
- Last 30 Days8
Views
Contact the Owner
Phone or Text: 0488 847 018
Enter Phone Code:
Enter Phone Code:
"*" indicates required fields