4 Leader Street, Truganina, VIC 3029
Sold Price Not Disclosed (14 Mar 2020)
Link360 Industrial Park 4a or 4b Leader St Truganina VIC.
The Phone Code for this property is: 46004. Please quote this number when phoning or texting.
Link360 Industrial Park,
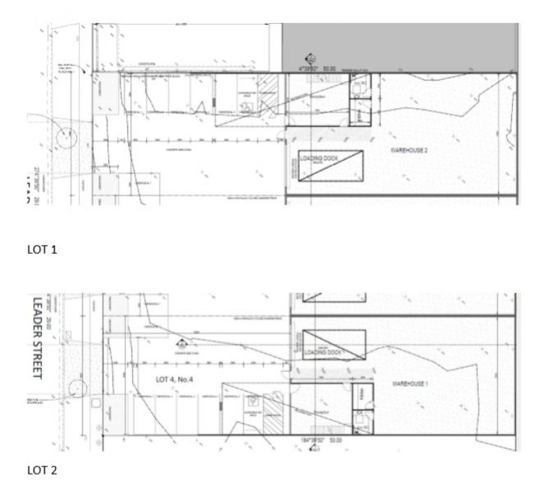
Two subdivided lot
4a and 4b Leader St, Truganina, Vic 3029.
Zoning - Industrial 3
4b Leader ST Truganina - LOT1
4a Leader ST Truganina - LOT2
Must note : Please specify LOT number when inquiring or STREET address. If Lot number is not specified , inquiry will not be attended.
Link360 is a well located industrial park situated on the corner of Palmers and Doherty's Roads in Truganina - in the heart of Melbourne's west, which is Australia's largest industrial precinct.
Located 25 minutes from Melbourne's CBD, Melbourne Airport and the Port of Melbourne, Link360 offers great access to the Deer Park Bypass, Western Ring Road and the Princes Highway. Offering businesses over 1 kilometer of road frontage, Link360 provides great exposure for branding and signage.
Added Project Phase completed as below - Ready to buid
1. Town Planning Permit approved to make two Warehouse/s side by side.- Warehouse size - 463.10m2 Area each appox.
2. Sub Division approved.
3. NBN connection to Main - Connected
4. Power Pit two lots - Connected
5. Sewer Line to both Lots - Completed
6. Stromwater Drainage connection to both Lots - Completed.
7 LTO registration completed for each lot.
1 Industrial Development Site.
2. One of the busiest Road.
3. Close to Freeway/s towards North and South of the Blocks.
4. Close to Railway Station.
5. 725M2 lot area each.
6. Do not wait for land title. Ready to go for development.
7. Faster Development - Development Partnership or Initial Investment can be organized.
Disclaimer:
Whilst every care has been taken to verify the accuracy of the details in this advertisement, For Sale By Owner (forsalebyowner.com.au Pty Ltd) cannot guarantee its correctness. Prospective buyers or tenants need to take such action as is necessary, to satisfy themselves of any pertinent matters.
Link360 Industrial Park,
Two subdivided lot
4a and 4b Leader St, Truganina, Vic 3029.
Zoning - Industrial 3
4b Leader ST Truganina - LOT1
4a Leader ST Truganina - LOT2
Must note : Please specify LOT number when inquiring or STREET address. If Lot number is not specified , inquiry will not be attended.
Link360 is a well located industrial park situated on the corner of Palmers and Doherty's Roads in Truganina - in the heart of Melbourne's west, which is Australia's largest industrial precinct.
Located 25 minutes from Melbourne's CBD, Melbourne Airport and the Port of Melbourne, Link360 offers great access to the Deer Park Bypass, Western Ring Road and the Princes Highway. Offering businesses over 1 kilometer of road frontage, Link360 provides great exposure for branding and signage.
Added Project Phase completed as below - Ready to buid
1. Town Planning Permit approved to make two Warehouse/s side by side.- Warehouse size - 463.10m2 Area each appox.
2. Sub Division approved.
3. NBN connection to Main - Connected
4. Power Pit two lots - Connected
5. Sewer Line to both Lots - Completed
6. Stromwater Drainage connection to both Lots - Completed.
7 LTO registration completed for each lot.
1 Industrial Development Site.
2. One of the busiest Road.
3. Close to Freeway/s towards North and South of the Blocks.
4. Close to Railway Station.
5. 725M2 lot area each.
6. Do not wait for land title. Ready to go for development.
7. Faster Development - Development Partnership or Initial Investment can be organized.
Disclaimer:
Whilst every care has been taken to verify the accuracy of the details in this advertisement, For Sale By Owner (forsalebyowner.com.au Pty Ltd) cannot guarantee its correctness. Prospective buyers or tenants need to take such action as is necessary, to satisfy themselves of any pertinent matters.
- Last 24 Hours0
- Last 7 Days0
- Last 30 Days1
Views
Contact the Owner
Phone or Text: 0488 847 018
Enter Phone Code: 46004
Enter Phone Code: 46004
"*" indicates required fields