1 Deborah Lane, Dodges Ferry, TAS 7173
Sold Price: 345,000 (21 Nov 2016)
Idyllic, peaceful and secluded home on 1 hectare
Our property sits on 2 hectares of native bushland and has expansive views of the river, the distant mountains and the bush.
Watching the wild life and the antics of the abundant bird population are time absorbing and rewarding.
The land slopes gently from the front to a significant level area of outside living space and easy to manage garden, including a glass house, vegetable and herb garden.
This secluded property home is set on one hectare of tranquil bush with superb views of the Derwent estuary and beyond.
Constructed 5 years ago, it offers a relaxing and contemporary feel throughout. Panoramic views of the sea and distant mountain ranges add to the sense of peace and quiet.
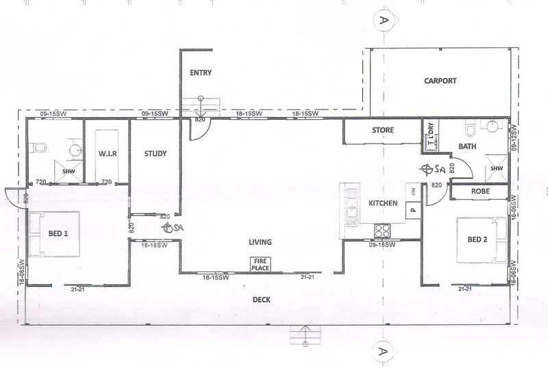
The home has a generous open plan living area with a Jetmaster open fire place and under floor heating.
The modern kitchen has a pantry and separate storage area, deep under bench drawers, gas cooktop and oven, dishwasher and extensive bench space.
There are two stylish double bedrooms with en-suites, a study or 3rd bedroom and laundry.
All floor coverings are grey; slate is featured in the living, kitchen and laundry areas while the bedrooms are carpeted.
The outside living areas consist of a large front covered deck from which to enjoy the extensive views and serenity of the bush setting while at the side of the home is a large picturesque garden and covered BBQ area glass house and dog kennel / enclosure.
On site parking for 4 cars
3 minutes to Carlton and Park beaches and local shops, school and childcare
12 minutes to Sorell where there is a major shopping centre, school and medical services
20 minutes to Hobart Airport
30 minutes to central Hobart.
Disclaimer:
Whilst every care has been taken to verify the accuracy of the details in this advertisement, For Sale By Owner (forsalebyowner.com.au Pty Ltd) cannot guarantee its correctness. Prospective buyers or tenants need to take such action as is necessary, to satisfy themselves of any pertinent matters.
Watching the wild life and the antics of the abundant bird population are time absorbing and rewarding.
The land slopes gently from the front to a significant level area of outside living space and easy to manage garden, including a glass house, vegetable and herb garden.
This secluded property home is set on one hectare of tranquil bush with superb views of the Derwent estuary and beyond.
Constructed 5 years ago, it offers a relaxing and contemporary feel throughout. Panoramic views of the sea and distant mountain ranges add to the sense of peace and quiet.
The home has a generous open plan living area with a Jetmaster open fire place and under floor heating.
The modern kitchen has a pantry and separate storage area, deep under bench drawers, gas cooktop and oven, dishwasher and extensive bench space.
There are two stylish double bedrooms with en-suites, a study or 3rd bedroom and laundry.
All floor coverings are grey; slate is featured in the living, kitchen and laundry areas while the bedrooms are carpeted.
The outside living areas consist of a large front covered deck from which to enjoy the extensive views and serenity of the bush setting while at the side of the home is a large picturesque garden and covered BBQ area glass house and dog kennel / enclosure.
On site parking for 4 cars
3 minutes to Carlton and Park beaches and local shops, school and childcare
12 minutes to Sorell where there is a major shopping centre, school and medical services
20 minutes to Hobart Airport
30 minutes to central Hobart.
Disclaimer:
Whilst every care has been taken to verify the accuracy of the details in this advertisement, For Sale By Owner (forsalebyowner.com.au Pty Ltd) cannot guarantee its correctness. Prospective buyers or tenants need to take such action as is necessary, to satisfy themselves of any pertinent matters.
Need a Home Loan?
Get pre-approved for a home loan within 48 hours. Click Here or more information.
- Last 24 Hours0
- Last 7 Days0
- Last 30 Days1
Views
Contact the Owner
Phone or Text: 0488 847 018
Enter Phone Code:
Enter Phone Code:
"*" indicates required fields