4 Driver Place, West Wodonga, VIC 3690
Sold Price: 455,000 (18 Dec 2015)
Anyone For Golf?
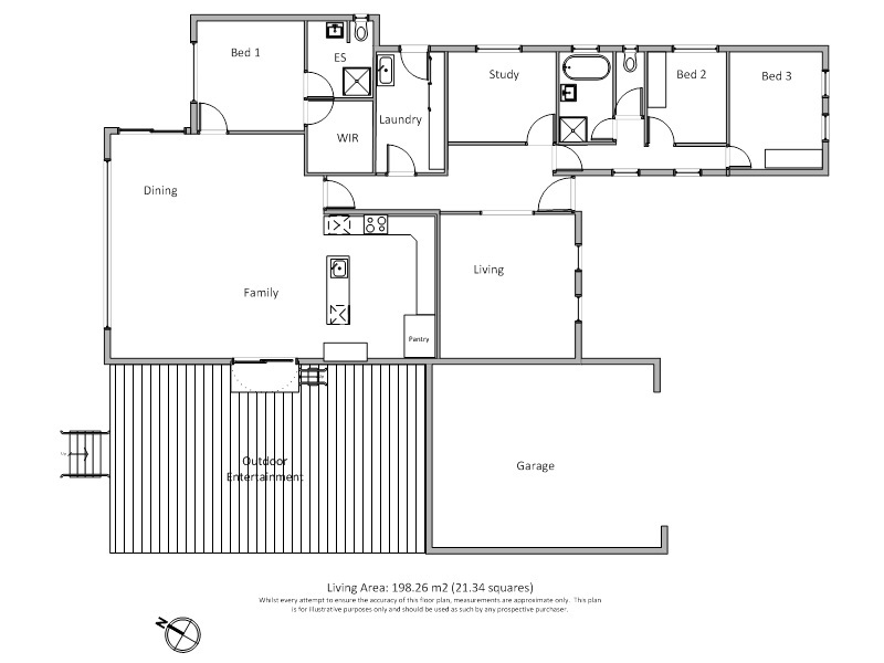
Welcome to your new lifestyle location. Backing onto the 15th fairway at Wodonga golf course, this home offers 3 good size bedrooms, a study, 2 living areas and a spacious outdoor entertaining area.
The open plan kitchen, dining and living areas afford panoramic views of the 15th fairway and surrounding hills through floor to ceiling glazing. The well considered floor plan defines zones for entertaining and relaxing.
2 bedrooms have built in robes whilst an ensuite and walk in robe complete the master bedroom. The study could be used as a fourth bedroom.
Ducted evaporative cooling and gas heating will keep the temperature comfortable all year round.
Disclaimer:
Whilst every care has been taken to verify the accuracy of the details in this advertisement, For Sale By Owner (forsalebyowner.com.au Pty Ltd) cannot guarantee its correctness. Prospective buyers or tenants need to take such action as is necessary, to satisfy themselves of any pertinent matters.
The open plan kitchen, dining and living areas afford panoramic views of the 15th fairway and surrounding hills through floor to ceiling glazing. The well considered floor plan defines zones for entertaining and relaxing.
2 bedrooms have built in robes whilst an ensuite and walk in robe complete the master bedroom. The study could be used as a fourth bedroom.
Ducted evaporative cooling and gas heating will keep the temperature comfortable all year round.
Disclaimer:
Whilst every care has been taken to verify the accuracy of the details in this advertisement, For Sale By Owner (forsalebyowner.com.au Pty Ltd) cannot guarantee its correctness. Prospective buyers or tenants need to take such action as is necessary, to satisfy themselves of any pertinent matters.
Due Diligence Checklist
Before you buy a home or vacant residential land, you should be aware of a range of issues that may affect that property and impose restrictions or obligations on you, if you buy it. Click Here to read more.
Need a Home Loan?
Get pre-approved for a home loan within 48 hours. Click Here or more information.
- Last 24 Hours0
- Last 7 Days1
- Last 30 Days2
Views
Contact the Owner
Phone or Text: 0488 847 018
Enter Phone Code:
Enter Phone Code:
"*" indicates required fields