43 Rowes Road, Maldon, VIC 3463
Sold Price Not Disclosed (09 May 2015)
LARGE FAMILY HOME WITH OUTDOOR LIFESTYLE ON OVER 3 ACRES
Offering 4+ Bedrooms on 3.5 Acres.
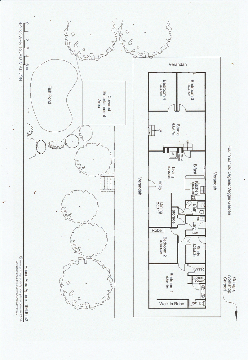
This is a sensational family home built in a low maintenance, well insulated, timber style. The home has wide paved verandas on all four sides draped in vines, and an alfresco dining and entertaining area adjacent to the large pond, with landscaped gardens on its surrounds.
Internally the home consists of an open plan living/dining/ with modern kitchen featuring a 'Falcon' stove and dishwasher, a spacious separate family room, office/study, four bedrooms; the main being a spacious suite upgraded to the highest modern standard with twin walk-in robes stunningly equipped ensuite with twin shower and separate toilet. Other features include timber cathedral ceilings, wood heater, reverse cycle AC in the living areas and main bedroom, instant gas hot water and second bathroom. The large family room currently serves as an artist’s studio.
Set on the edge of town and close to bushland the spacious 3.5 acres has mature gardens with abundant bird life and native gums, 3 dams, double carport, workshop and open storage, small fenced paddocks, town water plus 5,000 gallon rain water storage, and a prize winning organic vegetable garden..
This home has great potential for an alternative lifestyle; or just a lovely well built home in the historic village of Maldon..
The property could support several horses or other animals. There’s an ideal area for chooks, right next to the well established organic vegetable garden which has been steadily enriched for over four years. The swimming pool has been transformed into an edible fish pond, yet could be easily converted back to a pool.
Maldon is a very friendly and active small community with just about every service and amenity you’d need. Wonderful hospital, 2 doctors in the town, public swimming pool, amazing library for such a small town! … great pre-school and primary school, a Neighborhood Centre with many courses on offer; and the town hosts a number of special events throughout the year. This is a town where you can get immersed in volunteer activities or just take advantage of the great cafes and specialty shopping.
Disclaimer:
Whilst every care has been taken to verify the accuracy of the details in this advertisement, For Sale By Owner (forsalebyowner.com.au Pty Ltd) cannot guarantee its correctness. Prospective buyers or tenants need to take such action as is necessary, to satisfy themselves of any pertinent matters.
This is a sensational family home built in a low maintenance, well insulated, timber style. The home has wide paved verandas on all four sides draped in vines, and an alfresco dining and entertaining area adjacent to the large pond, with landscaped gardens on its surrounds.
Internally the home consists of an open plan living/dining/ with modern kitchen featuring a 'Falcon' stove and dishwasher, a spacious separate family room, office/study, four bedrooms; the main being a spacious suite upgraded to the highest modern standard with twin walk-in robes stunningly equipped ensuite with twin shower and separate toilet. Other features include timber cathedral ceilings, wood heater, reverse cycle AC in the living areas and main bedroom, instant gas hot water and second bathroom. The large family room currently serves as an artist’s studio.
Set on the edge of town and close to bushland the spacious 3.5 acres has mature gardens with abundant bird life and native gums, 3 dams, double carport, workshop and open storage, small fenced paddocks, town water plus 5,000 gallon rain water storage, and a prize winning organic vegetable garden..
This home has great potential for an alternative lifestyle; or just a lovely well built home in the historic village of Maldon..
The property could support several horses or other animals. There’s an ideal area for chooks, right next to the well established organic vegetable garden which has been steadily enriched for over four years. The swimming pool has been transformed into an edible fish pond, yet could be easily converted back to a pool.
Maldon is a very friendly and active small community with just about every service and amenity you’d need. Wonderful hospital, 2 doctors in the town, public swimming pool, amazing library for such a small town! … great pre-school and primary school, a Neighborhood Centre with many courses on offer; and the town hosts a number of special events throughout the year. This is a town where you can get immersed in volunteer activities or just take advantage of the great cafes and specialty shopping.
Disclaimer:
Whilst every care has been taken to verify the accuracy of the details in this advertisement, For Sale By Owner (forsalebyowner.com.au Pty Ltd) cannot guarantee its correctness. Prospective buyers or tenants need to take such action as is necessary, to satisfy themselves of any pertinent matters.
Features
Air Conditioning, Built-ins, Dishwasher, Fireplace(s), Heating, Modern Bathroom, Modern Kitchen, Renovated Kitchen, Study, Entertainment Area, Garden, Workshop, Close to Schools, Close to Shops, Quiet Location
Due Diligence Checklist
Before you buy a home or vacant residential land, you should be aware of a range of issues that may affect that property and impose restrictions or obligations on you, if you buy it. Click Here to read more.
Need a Home Loan?
Get pre-approved for a home loan within 48 hours. Click Here or more information.
- Last 24 Hours0
- Last 7 Days0
- Last 30 Days0
Views
Contact the Owner
Phone or Text: 0488 847 018
Enter Phone Code when prompted.
Enter Phone Code when prompted.
"*" indicates required fields