34 Margaret Street, Warragul, VIC 3820
Sold Price: 410,000 (15 Jan 2015)
Priced to sell. Delightful award-winning house.
A great opportunity to move into a fantastic family home. This immaculate property adjoins Kiah Park, is close to all amenities, and is only a short walk to Warragul North Primary School.
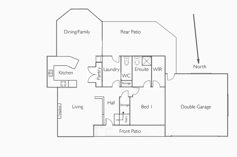
The house features three generously sized bedrooms and a smaller 4th bedroom (currently used as a study), lounge, kitchen, dining/family area, laundry (with separate toilet adjacent), 2 bathrooms & double garage. The standard of finish is excellent throughout, & the property has central heating, split level a/c and a fully-functioning open fireplace, hand-built in rustic stone. It also features a recently installed 1.8KW solar power system which greatly reduces those electricity bills.
Entry is through a leadlight-panelled front door, inset on a small front patio area. Lounge, kitchen & dining/family areas are open plan, each leading into the other. Kitchen is light & airy with a vaulted cathedral ceiling, & clerestory window for lots of winter light. Kitchen also features a breakfast bar and a roomy, double-door recessed pantry.
The master bedroom with ensuite & walk-in robe is located on the ground floor. The other bedrooms are upstairs, all with BIRs (including the study) as well as a family bathroom (shower & bath) & separate toilet.
The house also boasts plenty of built-in storage: apart from the large pantry area, there are two large cupboard spaces on the ground floor (one under the stairs), as well as a walk-in storage area upstairs.
Outside there is a covered patio area which gives access to the double garage and leads to the delightful rear garden which has two water features as well as a fenced-off utility area & herb garden. Both the rear & front gardens are well established & give great privacy to the house.
Built by a local builder & architect designed (details on request), this award-winning home is ready to move straight into.
Property is open for inspection by appointment.
Disclaimer:
Whilst every care has been taken to verify the accuracy of the details in this advertisement, For Sale By Owner (forsalebyowner.com.au Pty Ltd) cannot guarantee its correctness. Prospective buyers or tenants need to take such action as is necessary, to satisfy themselves of any pertinent matters.
The house features three generously sized bedrooms and a smaller 4th bedroom (currently used as a study), lounge, kitchen, dining/family area, laundry (with separate toilet adjacent), 2 bathrooms & double garage. The standard of finish is excellent throughout, & the property has central heating, split level a/c and a fully-functioning open fireplace, hand-built in rustic stone. It also features a recently installed 1.8KW solar power system which greatly reduces those electricity bills.
Entry is through a leadlight-panelled front door, inset on a small front patio area. Lounge, kitchen & dining/family areas are open plan, each leading into the other. Kitchen is light & airy with a vaulted cathedral ceiling, & clerestory window for lots of winter light. Kitchen also features a breakfast bar and a roomy, double-door recessed pantry.
The master bedroom with ensuite & walk-in robe is located on the ground floor. The other bedrooms are upstairs, all with BIRs (including the study) as well as a family bathroom (shower & bath) & separate toilet.
The house also boasts plenty of built-in storage: apart from the large pantry area, there are two large cupboard spaces on the ground floor (one under the stairs), as well as a walk-in storage area upstairs.
Outside there is a covered patio area which gives access to the double garage and leads to the delightful rear garden which has two water features as well as a fenced-off utility area & herb garden. Both the rear & front gardens are well established & give great privacy to the house.
Built by a local builder & architect designed (details on request), this award-winning home is ready to move straight into.
Property is open for inspection by appointment.
Disclaimer:
Whilst every care has been taken to verify the accuracy of the details in this advertisement, For Sale By Owner (forsalebyowner.com.au Pty Ltd) cannot guarantee its correctness. Prospective buyers or tenants need to take such action as is necessary, to satisfy themselves of any pertinent matters.
Features
Air Conditioning, Balcony/Patio/Terrace, Bath, Broadband, Built-ins, Dishwasher, Fireplace(s), Gas Enabled, Heating, Entertainment Area, Garden, Level Lawn, Pet Friendly, Close to Parklands, Close to Schools, Close to Transport, Quiet Location
Due Diligence Checklist
Before you buy a home or vacant residential land, you should be aware of a range of issues that may affect that property and impose restrictions or obligations on you, if you buy it. Click Here to read more.
Need a Home Loan?
Get pre-approved for a home loan within 48 hours. Click Here or more information.
- Last 24 Hours0
- Last 7 Days0
- Last 30 Days2
Views
Contact the Owner
Phone or Text: 0488 847 018
Enter Phone Code:
Enter Phone Code:
"*" indicates required fields