327 National Park Road, Loch Sport, VIC 3851

House 2 1 3
Price: $355,000
    Open Times
  • There are no current opens scheduled.
RETRO RETREAT WITH PANORAMIC VIEW. EXCELLENT CONDITION
The Phone Code for this property is: 61708. Please quote this number when phoning or texting.

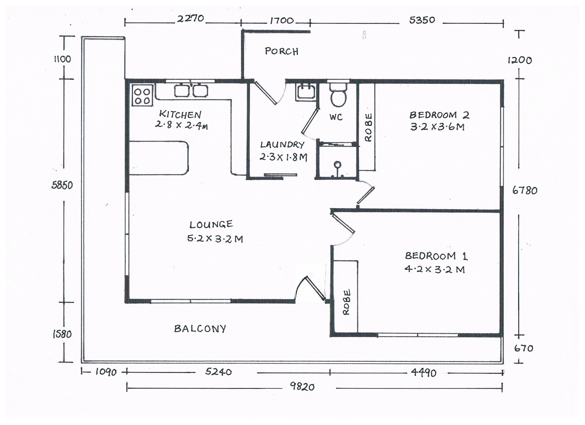
Step back in time into this well maintained and cared for home, with panoramic views over Lake Reeve.

Comfortable open living/lounge area with great views.
- 5.2m x 3.2m
- Wool Berber carpet (Good condition)
Lounge leads onto a fully restored Eco Deck Balcony.

Original Retro kitchen: -
- 2.8m x 2.4m
- Glass cabinets
- Breakfast bar
- Gas oven/stove
- Rangehood
- Twin sinks
- Plenty of bench, draw and cupboard space.
- Gas/electric fridge-freezer.
- Vinyl Floor

Fujitsu-Split system air-conditioning.
Instantaneous Gas Hot water system

Two (2) generous sized bedrooms, with built in robes.
Bedroom 1
- 4.2m x 3.2m
- Wool Berber carpet (Good condition)
Bedroom 2
- 3.2m x 3.6m
- New carpet recently installed.

Original combined toilet and shower room.
Laundry with sink and storage cupboards.
- 2.3m x 1.8m
- Vinyl Floor

All in excellent condition.
***Original floorboards underneath all floor coverings***

Porch leading into back yard with covered sitting/dining and BBQ area, surrounded by neat lawns and gardens.

3 car spaces:
- Two (2) carports.
- One (1) lock up garage. (5m x4m)
- Lockable storage shed (4.5m x 1.8m)
- Large lockable under house storage area. (9.8m x1.2m)

664sqm Block is fully fenced with gate.

Davey Water Pump
2 x 4500Ltr House water tanks (Poly)
1 x 2550Ltr Yard water tank. (Poly)
1 x 2500Ltr Yard water tank. (Galvanized)

Dual gas bottles
Hills hoist clothesline.

Established and beautifully maintained gardens with well-constructed retaining walls and pathways.
With fantastic views over Lake Reeve.

Enjoy the visits from the local birds and wildlife, in this relaxing and peaceful haven.
#*#* OPEN FOR INSPECTION BY APPOINTMENT *#*#

Disclaimer:

Whilst every care has been taken to verify the accuracy of the details in this advertisement, For Sale By Owner Pty Ltd (forsalebyowner.com.au) cannot guarantee its correctness. Prospective buyers or tenants need to take such action as is necessary, to satisfy themselves of any pertinent matters.
Features

Balcony/Patio/Terrace, Heating, Renovated, BBQ, Entertainment Area, Garden, Garden Shed, Level Lawn, Pet Friendly, Rainwater Tank, Shower Facilities, Storage Area, Unlevel Lawn, Security Lights, Close to Parklands, Close to Schools, Close to Shops, Close to Transport, Near Waterfront, Quiet Location, Views, Beach/Coastal Property, Nature Property, Air Conditioning, Built-ins, Gas Enabled, Internal Laundry, Balcony, Courtyard, Workshop, Secure Parking, Living Area, Fully Fenced, Furnished, Grey Water System

Due Diligence Checklist

Before you buy a home or vacant residential land, you should be aware of a range of issues that may affect that property and impose restrictions or obligations on you, if you buy it. Click Here to read more.

Statement of information
Download
    Need a Home Loan?

    Get pre-approved for a home loan within 48 hours. Click Here or more information.

    Views
  • Last 24 Hours4
  • Last 7 Days27
  • Last 30 Days144
Contact the Owner
Phone or Text: 0488 847 018
Enter Phone Code: 61708

"*" indicates required fields