60 Walsh Street, West Melbourne, VIC 3003
Price: Private Sale by Negotiation
- There are no current opens scheduled.
Open Times
West Melbourne Showpiece: Luxury finish across 4 floors with Lift access and Rear-Lane Garage
The Phone Code for this property is: 19827. Please quote this number when phoning or texting.
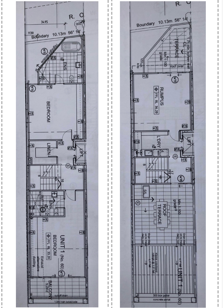
Set across four impressive levels, this solidly built West Melbourne residence is offered on a separate title with no owners corporation fees, delivering a rare combination of space, privacy and low-maintenance inner-city living. Throughout, the home showcases a strong emphasis on finish, comfort and practicality: porcelain tiled flooring, high-quality carpet, extensive stone-topped wet areas, and genuinely generous storage built into the design.
Interior living zones:
The layout provides multiple, clearly defined living areas-ideal for households who want separation between entertaining, relaxing, working from home and family living.
• A separate lounge room creates an inviting formal living space or a quieter retreat away from the main hub of the home.
• A spacious top-floor family room offers outstanding flexibility: an everyday living zone, media room, home office/study space, or teenage retreat-enhanced by elevated outlooks across Melbourne.
• The home's multi-level design naturally supports privacy for bedrooms while keeping social spaces open and functional.
Kitchen & dining (the heart of the home):
Designed for daily ease and entertaining, the kitchen and dining zone is generous in scale and finished with quality stonework.
• Granite bench-tops provide a durable, premium work surface.
• A walk-in pantry adds practical, concealed storage for appliances and supplies, keeping the main kitchen zone uncluttered.
• The kitchen combines with a dining open space, creating a comfortable setting for family meals and gatherings without feeling cramped.
Bedrooms:
All bedrooms are genuinely substantial, with storage already taken care of.
• Three large bedrooms, each featuring floor-to-ceiling built-in robes (BIR's) - maximizing storage and creating a streamlined, finished look.
• The scale of the rooms supports a range of furniture configurations, making the home suitable for families, professionals or guests.
Bathrooms & powder room:
A defining feature is the strong bathroom provision and the level of finish throughout.
• Three en suite bathrooms, all fully tiled for a clean, modern and easy-care result.
• Each en suite includes marble-topped vanities, adding a crisp, high-end feel.
• A guest powder room (a fourth WC) also features a marble vanity top, ensuring visitors have a dedicated facility separate from the en suites.
Laundry & linen storage:
The "working" spaces are not an afterthought and are finished to match the rest of the home.
• Spacious laundry with a granite bench-top, providing proper folding space and improved day-to-day functionality.
• A good-sized walk-in linen press supports household storage without relying on makeshift solutions.
• Plenty of storage space throughout the home for general items, seasonal storage and household essentials.
Comfort, heating and cooling:
The home is designed for Melbourne conditions and for comfort across all levels.
• Air conditioning to every room
• Hydronic heating to every room (an excellent option for consistent warmth)
• Ceiling fans to complement heating/cooling and improve airflow.
Flooring & finishes
Finishes are practical, durable and premium in feel.
• Porcelain tiled floors (ideal for high-traffic areas and easy maintenance)
• High-quality carpet throughout in carpeted areas for comfort and acoustic softness
Lift access (interior convenience across 4 levels)
A rare advantage for a four-level residence, particularly for everyday living and long-term accessibility
• Shared commercial-grade quality lift with marble floor, servicing all four floors, improving convenience for groceries, luggage, prams and general mobility.
• Good size car garage accessible through a rear lane and another adjacent room which can be used as a study / office space.
Please note: This could be the ultimate opportunity for the multi-generational family / lifestyle dream, imagining the possibilities of two neighbouring boutique homes set next to each other. Perfect for extended families, side-by-side investments, or a home+business setup. Enjoy the proximity of family while maintaining your own privacy. 58 Walsh street will be available for sale if you wish to buy both properties.
Location benefits:
Walking distance to the iconic Victoria Market, Flagstaff Gardens, major sporting events and live performances at Marvel Stadium, and close by to leading schools like Haileybury, this residence is of rare calibre that offers sanctuary and modern living in equal measure.
For further information or to arrange an inspection please call us. Inspection by appointment only and personal ID will be required on the day.
Disclaimer:
Whilst every care has been taken to verify the accuracy of the details in this advertisement, For Sale By Owner Pty Ltd (forsalebyowner.com.au) cannot guarantee its correctness. Prospective buyers or tenants need to take such action as is necessary, to satisfy themselves of any pertinent matters.
Set across four impressive levels, this solidly built West Melbourne residence is offered on a separate title with no owners corporation fees, delivering a rare combination of space, privacy and low-maintenance inner-city living. Throughout, the home showcases a strong emphasis on finish, comfort and practicality: porcelain tiled flooring, high-quality carpet, extensive stone-topped wet areas, and genuinely generous storage built into the design.
Interior living zones:
The layout provides multiple, clearly defined living areas-ideal for households who want separation between entertaining, relaxing, working from home and family living.
• A separate lounge room creates an inviting formal living space or a quieter retreat away from the main hub of the home.
• A spacious top-floor family room offers outstanding flexibility: an everyday living zone, media room, home office/study space, or teenage retreat-enhanced by elevated outlooks across Melbourne.
• The home's multi-level design naturally supports privacy for bedrooms while keeping social spaces open and functional.
Kitchen & dining (the heart of the home):
Designed for daily ease and entertaining, the kitchen and dining zone is generous in scale and finished with quality stonework.
• Granite bench-tops provide a durable, premium work surface.
• A walk-in pantry adds practical, concealed storage for appliances and supplies, keeping the main kitchen zone uncluttered.
• The kitchen combines with a dining open space, creating a comfortable setting for family meals and gatherings without feeling cramped.
Bedrooms:
All bedrooms are genuinely substantial, with storage already taken care of.
• Three large bedrooms, each featuring floor-to-ceiling built-in robes (BIR's) - maximizing storage and creating a streamlined, finished look.
• The scale of the rooms supports a range of furniture configurations, making the home suitable for families, professionals or guests.
Bathrooms & powder room:
A defining feature is the strong bathroom provision and the level of finish throughout.
• Three en suite bathrooms, all fully tiled for a clean, modern and easy-care result.
• Each en suite includes marble-topped vanities, adding a crisp, high-end feel.
• A guest powder room (a fourth WC) also features a marble vanity top, ensuring visitors have a dedicated facility separate from the en suites.
Laundry & linen storage:
The "working" spaces are not an afterthought and are finished to match the rest of the home.
• Spacious laundry with a granite bench-top, providing proper folding space and improved day-to-day functionality.
• A good-sized walk-in linen press supports household storage without relying on makeshift solutions.
• Plenty of storage space throughout the home for general items, seasonal storage and household essentials.
Comfort, heating and cooling:
The home is designed for Melbourne conditions and for comfort across all levels.
• Air conditioning to every room
• Hydronic heating to every room (an excellent option for consistent warmth)
• Ceiling fans to complement heating/cooling and improve airflow.
Flooring & finishes
Finishes are practical, durable and premium in feel.
• Porcelain tiled floors (ideal for high-traffic areas and easy maintenance)
• High-quality carpet throughout in carpeted areas for comfort and acoustic softness
Lift access (interior convenience across 4 levels)
A rare advantage for a four-level residence, particularly for everyday living and long-term accessibility
• Shared commercial-grade quality lift with marble floor, servicing all four floors, improving convenience for groceries, luggage, prams and general mobility.
• Good size car garage accessible through a rear lane and another adjacent room which can be used as a study / office space.
Please note: This could be the ultimate opportunity for the multi-generational family / lifestyle dream, imagining the possibilities of two neighbouring boutique homes set next to each other. Perfect for extended families, side-by-side investments, or a home+business setup. Enjoy the proximity of family while maintaining your own privacy. 58 Walsh street will be available for sale if you wish to buy both properties.
Location benefits:
Walking distance to the iconic Victoria Market, Flagstaff Gardens, major sporting events and live performances at Marvel Stadium, and close by to leading schools like Haileybury, this residence is of rare calibre that offers sanctuary and modern living in equal measure.
For further information or to arrange an inspection please call us. Inspection by appointment only and personal ID will be required on the day.
Disclaimer:
Whilst every care has been taken to verify the accuracy of the details in this advertisement, For Sale By Owner Pty Ltd (forsalebyowner.com.au) cannot guarantee its correctness. Prospective buyers or tenants need to take such action as is necessary, to satisfy themselves of any pertinent matters.
Features
Balcony/Patio/Terrace, Formal Lounge, Lift, Close to Parklands, Close to Schools, Close to Shops, Close to Transport, Air Conditioning, Built-ins, Ensuite, Study, Dishwasher, Balcony, Secure Parking, Rumpus Room
Due Diligence Checklist
Before you buy a home or vacant residential land, you should be aware of a range of issues that may affect that property and impose restrictions or obligations on you, if you buy it. Click Here to read more.
Statement of information
Need a Home Loan?
Get pre-approved for a home loan within 48 hours. Click Here or more information.
- Last 24 Hours5
- Last 7 Days14
- Last 30 Days44
Views
Contact the Owner
Phone or Text: 0488 847 018
Enter Phone Code: 19827
Enter Phone Code: 19827
"*" indicates required fields