5/18 Gertrude Street, St Albans, VIC 3021
Price: $740,000 - $770,000
- Thursday 14 May 202610:30 am - 12:00 pm
- Saturday 16 May 20269:30 am - 12:00 pm
Open Times
Flexible Family Living in Prime St Albans Location
The Phone Code for this property is: 58698. Please quote this number when phoning or texting.
Positioned in a convenient and well-connected pocket of St Albans, this thoughtfully designed townhouse offers a lifestyle that feels both effortless and comfortable from the moment you arrive.
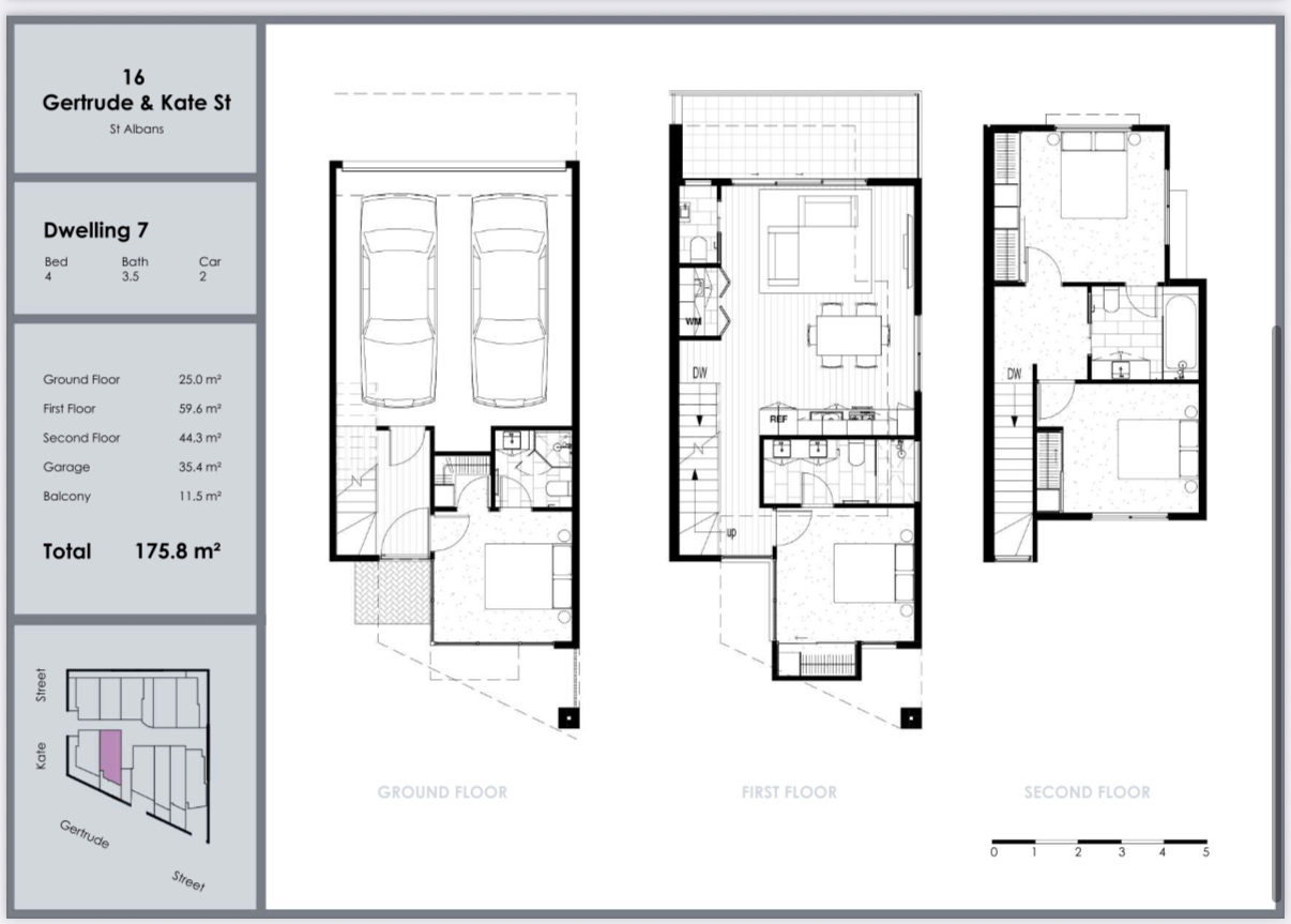
Featuring 4 generously sized bedrooms and 3 bathrooms, the home is designed to adapt to your lifestyle - ideal for growing families or multi-generational living.
A key highlight is the presence of two bedrooms with private ensuites, offering a level of comfort and privacy that is rarely found - perfect for parents, guests, or shared living arrangements.
The home is enhanced by high ceilings and an abundance of natural light, creating a bright and open atmosphere throughout. In the main living area, natural light gently fills the space during the day, giving it a warm and relaxed feel - somewhere you can easily imagine starting your morning with a coffee or unwinding in the evening.
The open-plan living and dining area flows seamlessly into a modern kitchen fitted with quality appliances and ample storage, designed for both everyday ease and effortless entertaining.
Step outside to your private outdoor area, where you can enjoy the sunlight in comfort. With installed shade screens, the space can be easily adjusted for privacy and temperature - making it enjoyable across all seasons.
A secure double garage adds everyday convenience and peace of mind.
Ideally positioned close to local shops, cafes, and the vibrant St Albans shopping precinct, the home is also zoned for St Albans Primary School and St Albans Secondary College. With convenient access to St Albans Station for direct CBD travel, this is a location that truly supports easy everyday living.
Homes offering this level of flexibility, comfort, and practicality are rarely available in the area - and once you step inside, it becomes easy to see how naturally this home fits into everyday life.
For further information or to arrange an inspection, please contact us. Inspections available by appointment only.
Disclaimer:
Whilst every care has been taken to verify the accuracy of the details in this advertisement, For Sale By Owner Pty Ltd (forsalebyowner.com.au) cannot guarantee its correctness. Prospective buyers or tenants need to take such action as is necessary, to satisfy themselves of any pertinent matters.
Positioned in a convenient and well-connected pocket of St Albans, this thoughtfully designed townhouse offers a lifestyle that feels both effortless and comfortable from the moment you arrive.
Featuring 4 generously sized bedrooms and 3 bathrooms, the home is designed to adapt to your lifestyle - ideal for growing families or multi-generational living.
A key highlight is the presence of two bedrooms with private ensuites, offering a level of comfort and privacy that is rarely found - perfect for parents, guests, or shared living arrangements.
The home is enhanced by high ceilings and an abundance of natural light, creating a bright and open atmosphere throughout. In the main living area, natural light gently fills the space during the day, giving it a warm and relaxed feel - somewhere you can easily imagine starting your morning with a coffee or unwinding in the evening.
The open-plan living and dining area flows seamlessly into a modern kitchen fitted with quality appliances and ample storage, designed for both everyday ease and effortless entertaining.
Step outside to your private outdoor area, where you can enjoy the sunlight in comfort. With installed shade screens, the space can be easily adjusted for privacy and temperature - making it enjoyable across all seasons.
A secure double garage adds everyday convenience and peace of mind.
Ideally positioned close to local shops, cafes, and the vibrant St Albans shopping precinct, the home is also zoned for St Albans Primary School and St Albans Secondary College. With convenient access to St Albans Station for direct CBD travel, this is a location that truly supports easy everyday living.
Homes offering this level of flexibility, comfort, and practicality are rarely available in the area - and once you step inside, it becomes easy to see how naturally this home fits into everyday life.
For further information or to arrange an inspection, please contact us. Inspections available by appointment only.
Disclaimer:
Whilst every care has been taken to verify the accuracy of the details in this advertisement, For Sale By Owner Pty Ltd (forsalebyowner.com.au) cannot guarantee its correctness. Prospective buyers or tenants need to take such action as is necessary, to satisfy themselves of any pertinent matters.
Due Diligence Checklist
Before you buy a home or vacant residential land, you should be aware of a range of issues that may affect that property and impose restrictions or obligations on you, if you buy it. Click Here to read more.
Statement of information
Need a Home Loan?
Get pre-approved for a home loan within 48 hours. Click Here or more information.
- Last 24 Hours1
- Last 7 Days5
- Last 30 Days43
Views
Contact the Owner
Phone or Text: 0488 847 018
Enter Phone Code: 58698
Enter Phone Code: 58698
"*" indicates required fields