71 Chapel Street, St Kilda, VIC 3182

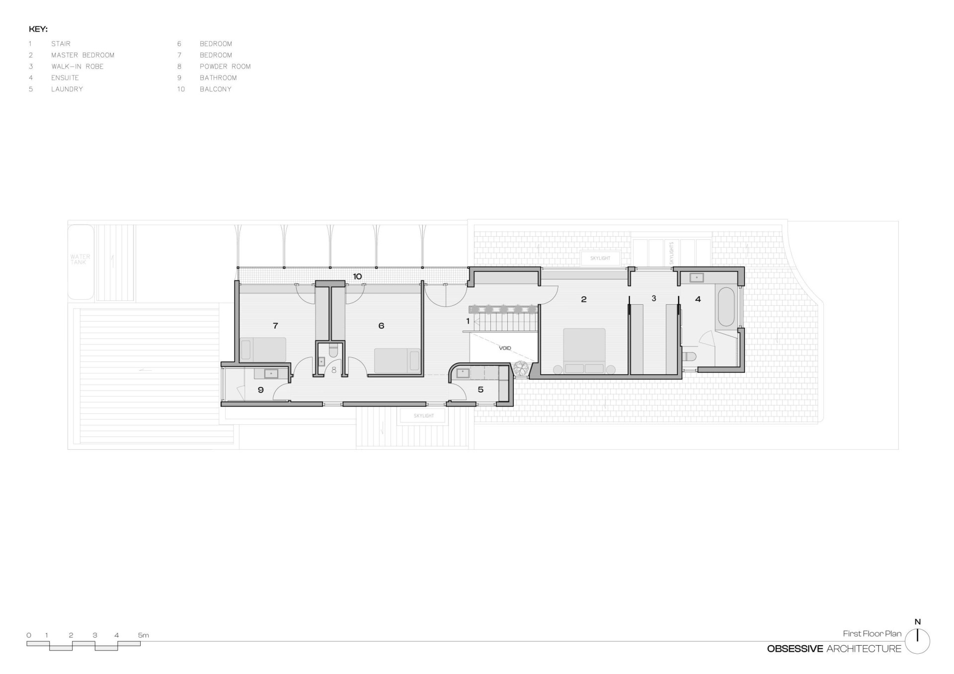
House 5 3 2
Price: $5,450,000
Virtual Tour
    Open Times
  • Sunday 3 May 202611:00 am - 12:00 pm
Materia: An idea given form
The Phone Code for this property is: 90756. Please quote this number when phoning or texting.

SHORTLISTED FOR THE PRESTIGIOUS
2026 VICTORIAN ARCHITECTURE AWARDS


MATERIA: AN IDEA GIVEN FORM

Materia is a ground-up, architect-designed residence in the heart of St Kilda. Conceived as an uncompromising exploration of how architecture can shape the way we feel, every surface, threshold, and moment of light has been resolved through a relentless process of design and refinement - a tactile richness that reveals itself over time.

SOLD DIRECTLY BY THE ARCHITECT WHO DESIGNED AND BUILT IT

Materia is offered for sale without agents, by its architect. Every material decision, every system, every detail is known intimately. Buyers receive a level of transparency that no agency sale can offer. All inspections are conducted privately to allow for a detailed walkthrough with the architect to explain the design, philosophy, and engineering behind the project.

To book a guided walkthrough of the project please visit: materiahouse.com.au/purchase/

THE LIVING SPACES

The living spaces are defined by sculptural concrete, raw timber, and light, treated as a material in its own right. At the centre of the home, an in-situ concrete staircase rises through a full-height void - flowing and seemingly weightless, it sets the ambition of everything around it. The kitchen is anchored by a recycled timber island, opening onto a sunken lounge.

Throughout, hundreds of custom hand-cast elements - concrete door handles, planters, shelves, and monolithic vanities - give the home a material consistency that few residences achieve.

The master suite incorporates a walk-in shower, a custom in-built bath, and a walk-in robe. Three further bedrooms are resolved with the same architectural attention - in the children's rooms, built-in seating wraps the window profiles, framing light and creating spaces that feel considered rather than simply furnished.

THE STUDIO & OFFICE WING

Adjacent to the main quarters, an 80m² two-room studio and office wing operates as a professional workspace with independent external entry. With its own skylight, bespoke steel and timber joinery, and dedicated powder room, it functions equally as a guest suite, a fifth bedroom, or a private retreat at a scale that most homes simply don't offer.

Outside, a private courtyard is enclosed by five off-form concrete buttresses - raw, monumental, and surprisingly intimate. Light moves across them through the day, shifting the character of the space from morning to evening. A retractable cover and lawn sit alongside the paved entertaining zone. Rear-lane access leads to a double garage and mud room.

A MACHINE FOR LIVING

As one of the few Certified Passive House Plus residences in Victoria, Materia maintains constant thermal comfort, high indoor air quality, and acoustic separation year-round.

• A continuous insulation envelope with triple-glazed thermally broken windows and airtight construction decouples the interior from the outside climate entirely.
• A heat recovery ventilation system delivers filtered fresh air continuously.
• A 10.45kW solar array paired with a Tesla Powerwall 3 battery system reduces utility costs by over 80%.

This is not a stylistic claim. It is a certified, independently verified standard.

Learn more about the systems and performance:
materiahouse.com.au/performance

ON THE ASKING PRICE

There are no comparable sales for this property. No equivalent Passive House Plus certified, architect-designed and highly detailed new build has sold in St Kilda - the standard methodology agents use to justify a price does not apply here.

The asking price of $5,450,000 reflects what it would cost to replicate this home today - which, at current Melbourne construction rates, exceeds $5.6m at its conservative estimate. The full Replacement Cost Analysis is available at the link below.

Materia cannot be replicated at the asking price. It can only be purchased.

Inspections are conducted strictly by private appointment. View the full Replacement Cost Analysis, interactive building performance data, and arrange a private viewing directly with the architect at:
materiahouse.com.au/purchase

Disclaimer:

Whilst every care has been taken to verify the accuracy of the details in this advertisement, For Sale By Owner Pty Ltd (forsalebyowner.com.au) cannot guarantee its correctness. Prospective buyers or tenants need to take such action as is necessary, to satisfy themselves of any pertinent matters.
Features

Balcony/Patio/Terrace, Bath, Heating, Modern Bathroom, Modern Kitchen, Separate Dining Room, Entertainment Area, Garden, Garden Shed, Level Lawn, Rainwater Tank, Storage Area, Intercom, Security Windows, Swipe Card, Close to Parklands, Close to Schools, Close to Shops, Close to Transport, Near Waterfront, Quiet Location, Beach/Coastal Property, Prestige Property, Air Conditioning, Built-ins, Ensuite, Internal Laundry, Polished Timber Floors, Newly Built Property, Remote Garage, Study, Broadband, Dishwasher, Balcony, Courtyard, Secure Parking, Solar Panels, Living Area, Fully Fenced

Due Diligence Checklist

Before you buy a home or vacant residential land, you should be aware of a range of issues that may affect that property and impose restrictions or obligations on you, if you buy it. Click Here to read more.

Statement of information
Download
    Need a Home Loan?

    Get pre-approved for a home loan within 48 hours. Click Here or more information.

    Views
  • Last 24 Hours1
  • Last 7 Days8
  • Last 30 Days40
Contact the Owner
Phone or Text: 0488 847 018
Enter Phone Code: 90756

"*" indicates required fields