2 Plover Crescent, New Norfolk, TAS 7140
Sold Price Not Disclosed (12 Apr 2026)
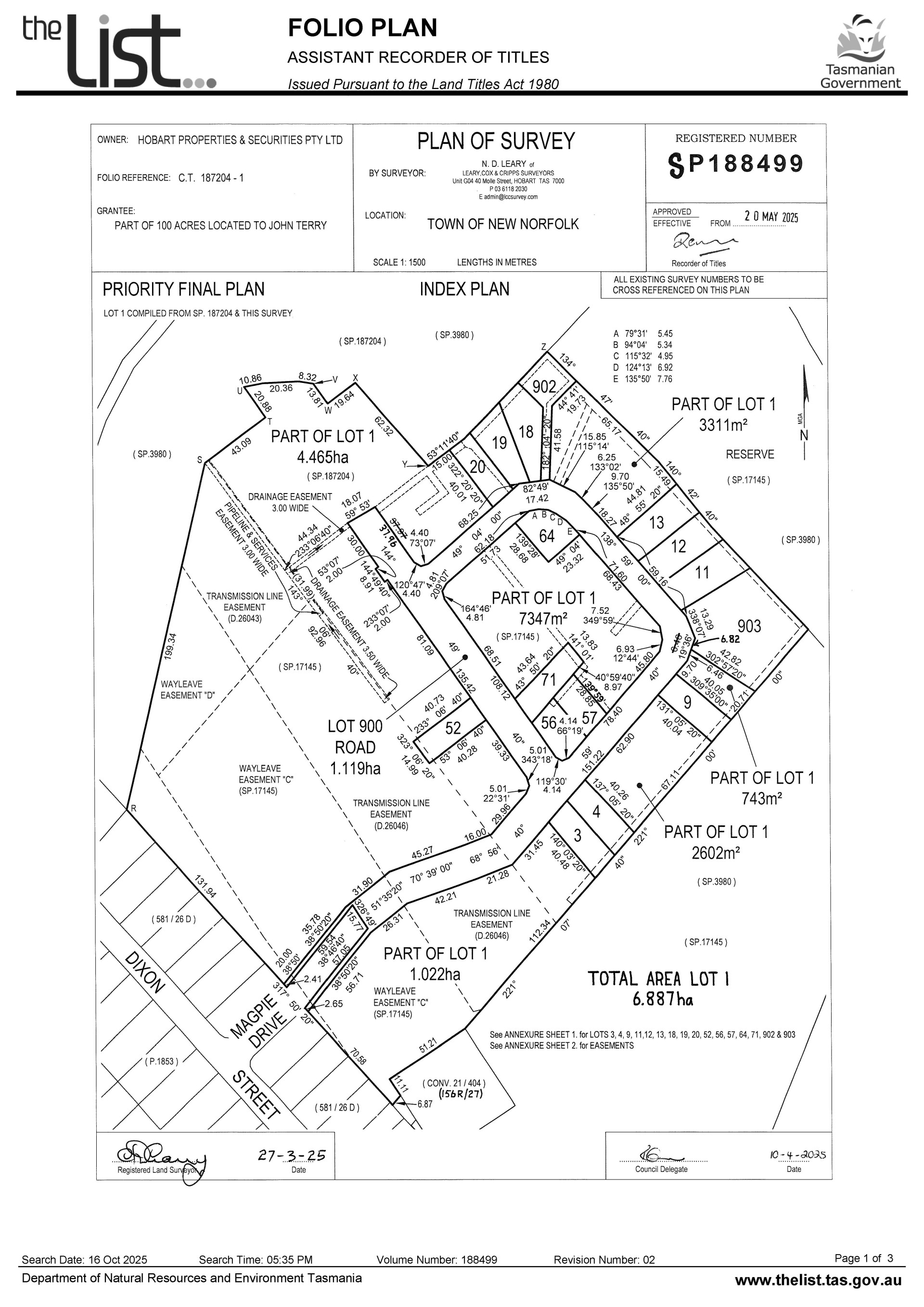
Flat Block - 651m2 - Premium New Norfolk Subdivision
Lot 4 - 651m2
Norfolk Park, New Norfolk
Nestled within a picturesque setting, this property offers the perfect canvas for your dream home. Situated in a brand-new subdivision of Norfolk Park, this level land block boasts stunning natural aspects towards the charming town of New Norfolk and the rolling hills that envelop it.
Only moments away from the Tynwald Park recreational area and a short drive to all of the amenities of New Norfolk, this block shall suit all buyers.
This new neighbourhood will also benefit from dedicated public open space to enjoy the serenity of the bush setting with family and friends, all whilst linking into the Tynwald Park recreational walking track which takes you to the ovals and boat ramp.
Imagine waking up to the gentle warmth of the sun every morning as this northwest-facing block bathes your future home in natural light throughout the day. The even terrain provides the opportunity for a smooth building process, allowing you to design and construct your ideal residence with ease.
With a focus on both convenience and serenity, this property provides an opportunity to create a lifestyle that seamlessly blends modern living with the beauty of nature. Take advantage of this blank canvas and turn your vision into reality in this sought-after location.
The Phone Code for this property is: 67078. Please quote this number when phoning or texting.
Disclaimer:
Whilst every care has been taken to verify the accuracy of the details in this advertisement, For Sale By Owner (forsalebyowner.com.au Pty Ltd) cannot guarantee its correctness. Prospective buyers or tenants need to take such action as is necessary, to satisfy themselves of any pertinent matters.
Norfolk Park, New Norfolk
Nestled within a picturesque setting, this property offers the perfect canvas for your dream home. Situated in a brand-new subdivision of Norfolk Park, this level land block boasts stunning natural aspects towards the charming town of New Norfolk and the rolling hills that envelop it.
Only moments away from the Tynwald Park recreational area and a short drive to all of the amenities of New Norfolk, this block shall suit all buyers.
This new neighbourhood will also benefit from dedicated public open space to enjoy the serenity of the bush setting with family and friends, all whilst linking into the Tynwald Park recreational walking track which takes you to the ovals and boat ramp.
Imagine waking up to the gentle warmth of the sun every morning as this northwest-facing block bathes your future home in natural light throughout the day. The even terrain provides the opportunity for a smooth building process, allowing you to design and construct your ideal residence with ease.
With a focus on both convenience and serenity, this property provides an opportunity to create a lifestyle that seamlessly blends modern living with the beauty of nature. Take advantage of this blank canvas and turn your vision into reality in this sought-after location.
The Phone Code for this property is: 67078. Please quote this number when phoning or texting.
Disclaimer:
Whilst every care has been taken to verify the accuracy of the details in this advertisement, For Sale By Owner (forsalebyowner.com.au Pty Ltd) cannot guarantee its correctness. Prospective buyers or tenants need to take such action as is necessary, to satisfy themselves of any pertinent matters.
Need a Home Loan?
Get pre-approved for a home loan within 48 hours. Click Here or more information.
- Last 24 Hours0
- Last 7 Days1
- Last 30 Days9
Views
Contact the Owner
Phone or Text: 0488 847 018
Enter Phone Code: 67078
Enter Phone Code: 67078
"*" indicates required fields