60 Johnstons Road, Hillwood, TAS 7252
Sold Price: 960,000 (17 Nov 2025)
Charming Country Living on 8.33 Acres
The Phone Code for this property is: 54957. Please quote this number when phoning or texting.
Charming Country Living on 8.33 Acres - We couldn't have dreamed of a better place to raise our family.
Enjoy the peace and quiet of rural living in this classic colonial-style home, set on over 8 acres of pasture in scenic Hillwood. Designed thoughtfully for spacious family living and boasting charming features which truly turn this house into a home. Enjoy this incredibly relaxed lifestyle surrounded by orchids, vineyards and the well known Hillwood berry farm, all just a short drive from the city.
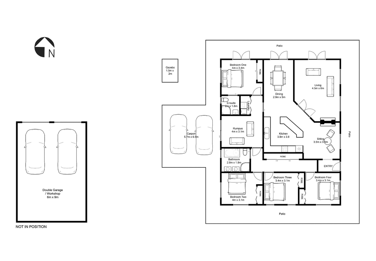
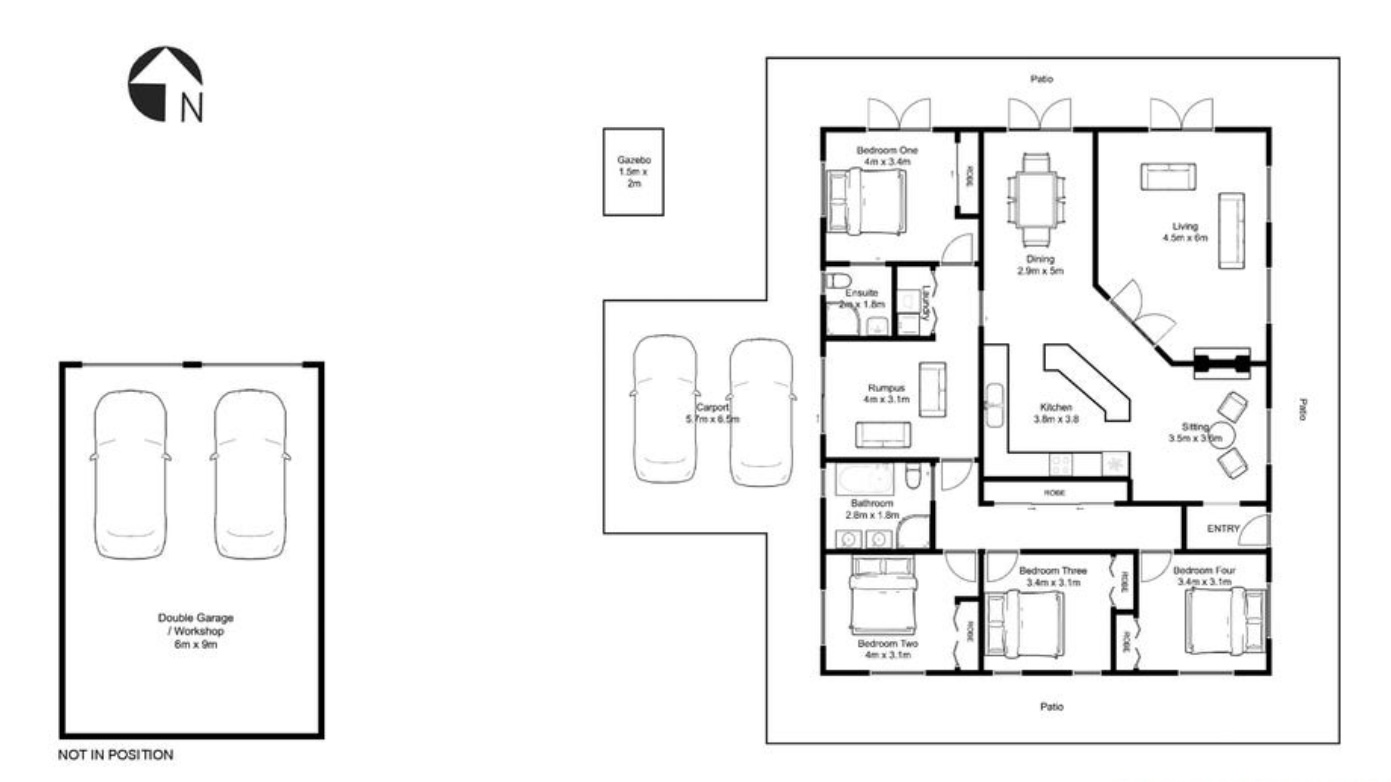
Inside, you'll find four double bedrooms (all with built-ins), including a master with ensuite. Light-filled living areas are centred around a well-equipped kitchen with integrated appliances and Falcon electric stove. The heart of the house flows into the dining, lounge, and sitting spaces warmed by a stunning Cheminee Philippe double-sided wood fireplace making this the perfect home for entertaining family and friends.
Outside, there's a double carport and a 7x9m shed. The land is divided into two paddocks-ideal for hobby farming or horse lovers-with subdivision potential (STCA)
Inspection of this stunning lifestyle property will not disappoint. As you take in the beautiful surrounds from the elevated position of this beautiful home, you will experience rural living at its best.
Disclaimer:
Whilst every care has been taken to verify the accuracy of the details in this advertisement, For Sale By Owner (forsalebyowner.com.au Pty Ltd) cannot guarantee its correctness. Prospective buyers or tenants need to take such action as is necessary, to satisfy themselves of any pertinent matters.
Charming Country Living on 8.33 Acres - We couldn't have dreamed of a better place to raise our family.
Enjoy the peace and quiet of rural living in this classic colonial-style home, set on over 8 acres of pasture in scenic Hillwood. Designed thoughtfully for spacious family living and boasting charming features which truly turn this house into a home. Enjoy this incredibly relaxed lifestyle surrounded by orchids, vineyards and the well known Hillwood berry farm, all just a short drive from the city.
Inside, you'll find four double bedrooms (all with built-ins), including a master with ensuite. Light-filled living areas are centred around a well-equipped kitchen with integrated appliances and Falcon electric stove. The heart of the house flows into the dining, lounge, and sitting spaces warmed by a stunning Cheminee Philippe double-sided wood fireplace making this the perfect home for entertaining family and friends.
Outside, there's a double carport and a 7x9m shed. The land is divided into two paddocks-ideal for hobby farming or horse lovers-with subdivision potential (STCA)
Inspection of this stunning lifestyle property will not disappoint. As you take in the beautiful surrounds from the elevated position of this beautiful home, you will experience rural living at its best.
Disclaimer:
Whilst every care has been taken to verify the accuracy of the details in this advertisement, For Sale By Owner (forsalebyowner.com.au Pty Ltd) cannot guarantee its correctness. Prospective buyers or tenants need to take such action as is necessary, to satisfy themselves of any pertinent matters.
Features
Balcony/Patio/Terrace, Basement, Bath, Fireplace(s), Heating, Close to Schools, Close to Shops, Close to Transport, Quiet Location, Views, Air Conditioning, Built-ins, Ensuite, Broadband, Dishwasher, Fully Fenced
Need a Home Loan?
Get pre-approved for a home loan within 48 hours. Click Here or more information.
- Last 24 Hours0
- Last 7 Days1
- Last 30 Days1
Views
Contact the Owner
Phone or Text: 0488 847 018
Enter Phone Code: 54957
Enter Phone Code: 54957
"*" indicates required fields