2 Spring Court, Strathbogie, VIC 3666
Price: $520,000
- There are no current opens scheduled.
Open Times
2 Spring Court, Strathbogie, Vic 3666
The Phone Code for this property is: 24076. Please quote this number when phoning or texting.
Great house in a nice and quiet area.
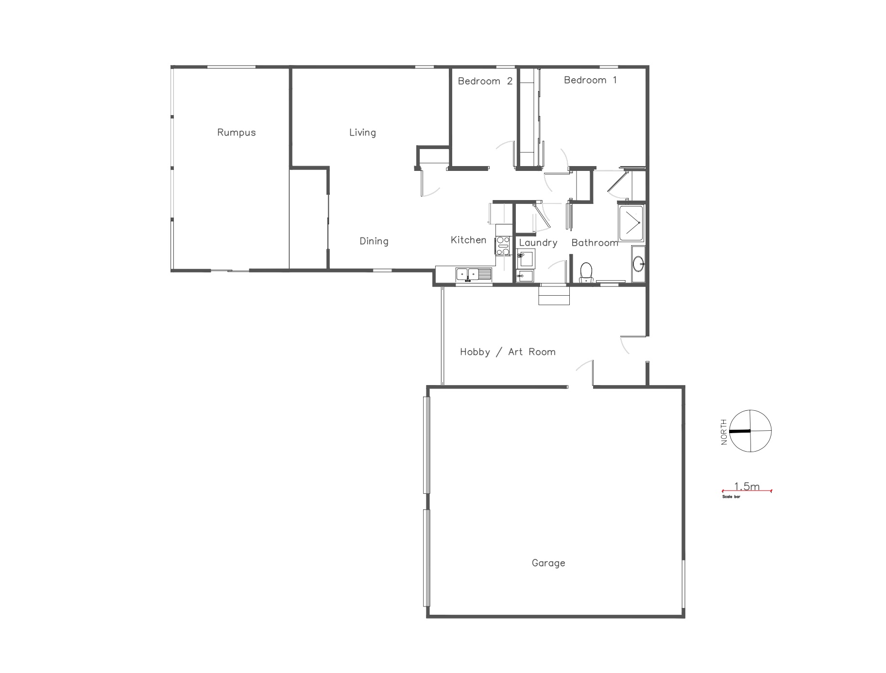
A well presented & well built Neatline Homes produced, fully insulated house on a 1600 square meter lot. All facilities for comfortable living included. The house has 2 water tanks, split system aircon, mains power, solar & backup generator. An entrance on either side of the property.
Welcome for weekend inspections on appointment, please feel free to contact through this website.
Near offers welcome.
House features:
Fully insulated.
2 bedroom.
2 Rumpus Rooms.
Lounge.
Dining.
Kitchen with electric stove.
All electric house running off 3.5 KW solar on roof and also connected to mains electricity.
Bathroom.
Shower.
Double garage that can fit 4 cars.
Large garden.
2 x 10,000 water tanks with filtration and water pump.
Easy Walking Distance to Strathbogie Store.
Bitumen road frontage.
Quiet Court Location.
2 Hours to Melbourne approximately.
Disclaimer:
Whilst every care has been taken to verify the accuracy of the details in this advertisement, For Sale By Owner (forsalebyowner.com.au Pty Ltd) cannot guarantee its correctness. Prospective buyers or tenants need to take such action as is necessary, to satisfy themselves of any pertinent matters.
Great house in a nice and quiet area.
A well presented & well built Neatline Homes produced, fully insulated house on a 1600 square meter lot. All facilities for comfortable living included. The house has 2 water tanks, split system aircon, mains power, solar & backup generator. An entrance on either side of the property.
Welcome for weekend inspections on appointment, please feel free to contact through this website.
Near offers welcome.
House features:
Fully insulated.
2 bedroom.
2 Rumpus Rooms.
Lounge.
Dining.
Kitchen with electric stove.
All electric house running off 3.5 KW solar on roof and also connected to mains electricity.
Bathroom.
Shower.
Double garage that can fit 4 cars.
Large garden.
2 x 10,000 water tanks with filtration and water pump.
Easy Walking Distance to Strathbogie Store.
Bitumen road frontage.
Quiet Court Location.
2 Hours to Melbourne approximately.
Disclaimer:
Whilst every care has been taken to verify the accuracy of the details in this advertisement, For Sale By Owner (forsalebyowner.com.au Pty Ltd) cannot guarantee its correctness. Prospective buyers or tenants need to take such action as is necessary, to satisfy themselves of any pertinent matters.
Due Diligence Checklist
Before you buy a home or vacant residential land, you should be aware of a range of issues that may affect that property and impose restrictions or obligations on you, if you buy it. Click Here to read more.
Statement of information
Need a Home Loan?
Get pre-approved for a home loan within 48 hours. Click Here or more information.
- Last 24 Hours1
- Last 7 Days5
- Last 30 Days16
Views
Contact the Owner
Phone or Text: 0488 847 018
Enter Phone Code: 24076
Enter Phone Code: 24076
"*" indicates required fields