1599 Castra Road, Sprent, TAS 7315
Price: $980,000
- There are no current opens scheduled.
Open Times
Lifestyle, Modern, Country- Rural living close to town.
The Phone Code for this property is: 73786. Please quote this number when phoning or texting.
Welcome to Shel-Den, a truly unique 10-acre lifestyle property where the rustic charm of the countryside seamlessly blends with modern luxury. This remarkable estate offers endless opportunities to create your dream lifestyle.
Property Features:
10 Acres of Red Dirt Soil: Perfect for gardening, farming, or simply enjoying the natural beauty.
Large Shared Dam: Ideal for irrigation or leisurely activities.
Established Fruit Trees: Enjoy the bounty of your own orchard.
Access to Forestry Tracks: Endless opportunities for motorbike and horse riding enthusiasts.
The Residence:
The magnificent home combines a rustic country feel with modern elegance. Highlights include:
Newly Renovated Kitchen:
Featuring engineered stone benchtops, modern appliances, a gas cooktop, and glass splashbacks.
Modern Amenities: The house has been rewired and includes both a heat pump and wood heating for cozy winter nights.
Spacious Living Areas:
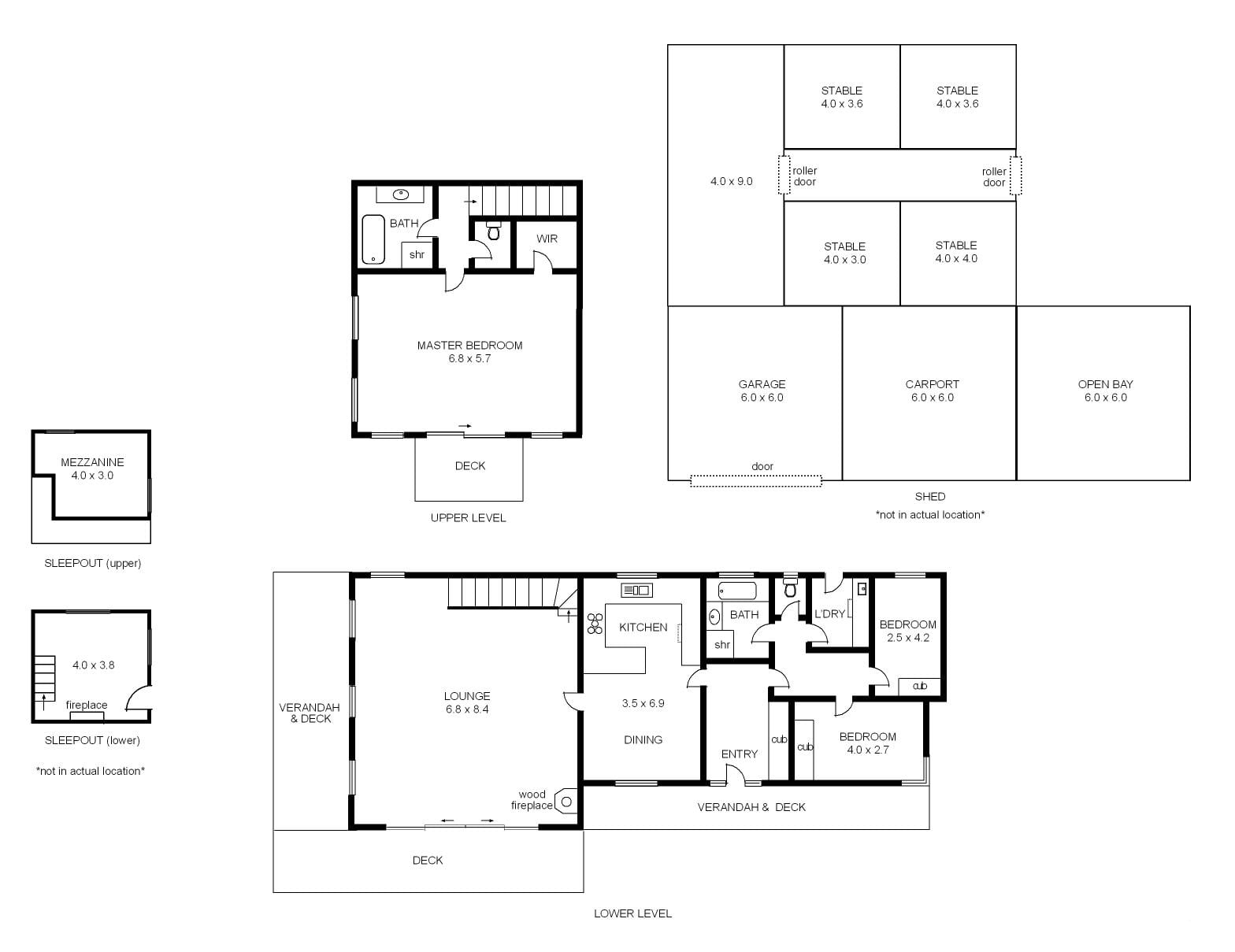
Three Bedrooms: Including a generous upstairs bedroom with 18-foot high exposed beam cathedral ceilings.
Two Renovated Bathrooms: One featuring a stunning clawfoot bathtub with hillside views.
Large 8m x 8m Lounge Room: Perfect for family gatherings and entertaining.
Modern Laundry and Entryway: Adding to the contemporary feel.
Outdoor Living:
Wrap-Around Verandah with timber deck:
Ideal for fireside barbecues and hosting guests.
Additional Features:
2 titles
Glasshouse
6-Bay Shed
5 Stables
Bird Aviary and Chicken Sheds
Loading Ramps
3 Water Tanks: Ample water storage for large families.
Double-Story Sleep Out: Perfect for a teenager's retreat or a fourth bedroom.
This property truly has it all. Schedule a viewing today and discover the unparalleled appeal of this country paradise.
Disclaimer:
Whilst every care has been taken to verify the accuracy of the details in this advertisement, For Sale By Owner (forsalebyowner.com.au Pty Ltd) cannot guarantee its correctness. Prospective buyers or tenants need to take such action as is necessary, to satisfy themselves of any pertinent matters.
Welcome to Shel-Den, a truly unique 10-acre lifestyle property where the rustic charm of the countryside seamlessly blends with modern luxury. This remarkable estate offers endless opportunities to create your dream lifestyle.
Property Features:
10 Acres of Red Dirt Soil: Perfect for gardening, farming, or simply enjoying the natural beauty.
Large Shared Dam: Ideal for irrigation or leisurely activities.
Established Fruit Trees: Enjoy the bounty of your own orchard.
Access to Forestry Tracks: Endless opportunities for motorbike and horse riding enthusiasts.
The Residence:
The magnificent home combines a rustic country feel with modern elegance. Highlights include:
Newly Renovated Kitchen:
Featuring engineered stone benchtops, modern appliances, a gas cooktop, and glass splashbacks.
Modern Amenities: The house has been rewired and includes both a heat pump and wood heating for cozy winter nights.
Spacious Living Areas:
Three Bedrooms: Including a generous upstairs bedroom with 18-foot high exposed beam cathedral ceilings.
Two Renovated Bathrooms: One featuring a stunning clawfoot bathtub with hillside views.
Large 8m x 8m Lounge Room: Perfect for family gatherings and entertaining.
Modern Laundry and Entryway: Adding to the contemporary feel.
Outdoor Living:
Wrap-Around Verandah with timber deck:
Ideal for fireside barbecues and hosting guests.
Additional Features:
2 titles
Glasshouse
6-Bay Shed
5 Stables
Bird Aviary and Chicken Sheds
Loading Ramps
3 Water Tanks: Ample water storage for large families.
Double-Story Sleep Out: Perfect for a teenager's retreat or a fourth bedroom.
This property truly has it all. Schedule a viewing today and discover the unparalleled appeal of this country paradise.
Disclaimer:
Whilst every care has been taken to verify the accuracy of the details in this advertisement, For Sale By Owner (forsalebyowner.com.au Pty Ltd) cannot guarantee its correctness. Prospective buyers or tenants need to take such action as is necessary, to satisfy themselves of any pertinent matters.
Need a Home Loan?
Get pre-approved for a home loan within 48 hours. Click Here or more information.
- Last 24 Hours4
- Last 7 Days12
- Last 30 Days48
Views
Contact the Owner
Phone or Text: 0488 847 018
Enter Phone Code: 73786
Enter Phone Code: 73786
"*" indicates required fields