2/11 Rosstown Road, Carnegie, VIC 3163
Sold Price Not Disclosed (08 Jul 2024)
Charming, Comfortable with Pet Friendly courtyard
The Phone Code for this property is: 24503. Please quote this number when phoning or texting.
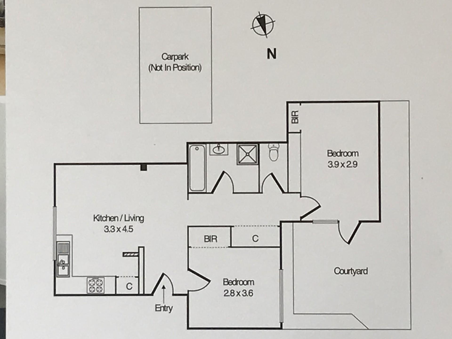
Walk in and enjoy this neat well planned 2 bedroom unit with courtyard, laundry and seperate WC.
Enjoy the fresh air and alfresco dining in the private courtyard, offering a tranquil retreat from the hustle and bustle of everyday life.
Offering both comfort and convenience. Located in the heart of Carnegie, this property presents an exceptional opportunity for both investors and homeowners alike.
Brilliantly positioned for daily ease and convenience to Carnegie station, shops, and eateries all within a stroll. Chadstone shopping centre and Monash University (Caulfield campus) are just minutes away.
Perfect for First Home Buyers or Investors.
Disclaimer:
Whilst every care has been taken to verify the accuracy of the details in this advertisement, For Sale By Owner (forsalebyowner.com.au Pty Ltd) cannot guarantee its correctness. Prospective buyers or tenants need to take such action as is necessary, to satisfy themselves of any pertinent matters.
Walk in and enjoy this neat well planned 2 bedroom unit with courtyard, laundry and seperate WC.
Enjoy the fresh air and alfresco dining in the private courtyard, offering a tranquil retreat from the hustle and bustle of everyday life.
Offering both comfort and convenience. Located in the heart of Carnegie, this property presents an exceptional opportunity for both investors and homeowners alike.
Brilliantly positioned for daily ease and convenience to Carnegie station, shops, and eateries all within a stroll. Chadstone shopping centre and Monash University (Caulfield campus) are just minutes away.
Perfect for First Home Buyers or Investors.
Disclaimer:
Whilst every care has been taken to verify the accuracy of the details in this advertisement, For Sale By Owner (forsalebyowner.com.au Pty Ltd) cannot guarantee its correctness. Prospective buyers or tenants need to take such action as is necessary, to satisfy themselves of any pertinent matters.
Features
Bath, Close to Schools, Close to Shops, Close to Transport, Air Conditioning, Built-ins, Courtyard, Secure Parking
Due Diligence Checklist
Before you buy a home or vacant residential land, you should be aware of a range of issues that may affect that property and impose restrictions or obligations on you, if you buy it. Click Here to read more.
Statement of information
Need a Home Loan?
Get pre-approved for a home loan within 48 hours. Click Here or more information.
- Last 24 Hours0
- Last 7 Days0
- Last 30 Days1
Views
Contact the Owner
Phone or Text: 0488 847 018
Enter Phone Code: 24503
Enter Phone Code: 24503
"*" indicates required fields