6154 Tasman Hwy, Buckland, TAS 7190
Sold Price Not Disclosed (05 Sep 2024)
REASONABLE offers will be considered. Arrange an inspection only if you are genuinely interested and ready to make a move!"
The Phone Code for this property is: 37993. Please quote this number when phoning or texting.
Before requesting an inspection, kindly take note of the following aspects:
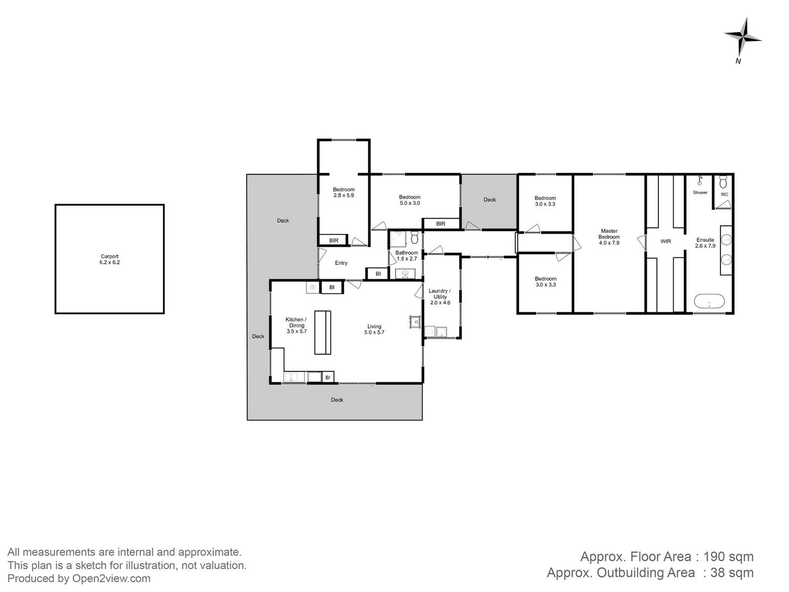
1. The property has a land size of 1.351 hectares and a building size of 190m2. If you're unsure about your CAPABILITY to maintain a large property, we recommend refraining from requesting an inspection.
2. This home is situated in BUCKLAND. It's essential to calculate your commute time and carefully review the map to ensure the location aligns with your needs.
3. Offers at or near the listed price are anticipated. If the price EXCEEDS your BUDGET, we strongly advise against requesting an inspection.
4. This property boasts 5 bedrooms. If you do not REQUIRE a property with multiple bedrooms, please reconsider your request for an inspection.
Please consider these points assertively before requesting an inspection to VALUE both of our TIMES.
Any REASONABLE OFFER, Considered!!!
Please note, REASONABLE OFFER!!!
Embrace the countryside with expansive valley views in this quality 'as new' 5 bedroom home set on a 1.351ha allotment. Enjoy energy-efficient, eco-friendly living on a manageable scale, in a lovely peaceful setting.
The inside of this property is a 'must see' with a relaxing flow-through layout. The contemporary design of the home ensures pleasant views from the expansive open-plan living, dining and kitchen area, with the modern kitchen featuring Euro appliances. A choice of wood heating and heat pump/air conditioning, as well as wall, ceiling and underfloor insulation, result in a pleasant year-round temperature. There is a spacious master bedroom/retreat with 'his' and 'her' walk-in robes and an en-suite with a freestanding bath plus shower. The kids can close the door on their wing for more peace and privacy.
Outside there is a large wrap-around deck, entertaining area, under-house storage and a huge double carport with plenty of additional parking. There are 5.5kw of solar panels producing abundant electricity, thriving fruit trees, daffodils and tulips in spring plus plenty more.
Located approximately 12 minutes from lovely East Coast beaches, around 30 minutes to Sorell with all its shops and services or 60 minutes to Hobart CBD.
A complete lifestyle property where you can live almost self-sufficiently, just move in and enjoy!
Disclaimer:
Whilst every care has been taken to verify the accuracy of the details in this advertisement, For Sale By Owner (forsalebyowner.com.au Pty Ltd) cannot guarantee its correctness. Prospective buyers or tenants need to take such action as is necessary, to satisfy themselves of any pertinent matters.
Before requesting an inspection, kindly take note of the following aspects:
1. The property has a land size of 1.351 hectares and a building size of 190m2. If you're unsure about your CAPABILITY to maintain a large property, we recommend refraining from requesting an inspection.
2. This home is situated in BUCKLAND. It's essential to calculate your commute time and carefully review the map to ensure the location aligns with your needs.
3. Offers at or near the listed price are anticipated. If the price EXCEEDS your BUDGET, we strongly advise against requesting an inspection.
4. This property boasts 5 bedrooms. If you do not REQUIRE a property with multiple bedrooms, please reconsider your request for an inspection.
Please consider these points assertively before requesting an inspection to VALUE both of our TIMES.
Any REASONABLE OFFER, Considered!!!
Please note, REASONABLE OFFER!!!
Embrace the countryside with expansive valley views in this quality 'as new' 5 bedroom home set on a 1.351ha allotment. Enjoy energy-efficient, eco-friendly living on a manageable scale, in a lovely peaceful setting.
The inside of this property is a 'must see' with a relaxing flow-through layout. The contemporary design of the home ensures pleasant views from the expansive open-plan living, dining and kitchen area, with the modern kitchen featuring Euro appliances. A choice of wood heating and heat pump/air conditioning, as well as wall, ceiling and underfloor insulation, result in a pleasant year-round temperature. There is a spacious master bedroom/retreat with 'his' and 'her' walk-in robes and an en-suite with a freestanding bath plus shower. The kids can close the door on their wing for more peace and privacy.
Outside there is a large wrap-around deck, entertaining area, under-house storage and a huge double carport with plenty of additional parking. There are 5.5kw of solar panels producing abundant electricity, thriving fruit trees, daffodils and tulips in spring plus plenty more.
Located approximately 12 minutes from lovely East Coast beaches, around 30 minutes to Sorell with all its shops and services or 60 minutes to Hobart CBD.
A complete lifestyle property where you can live almost self-sufficiently, just move in and enjoy!
Disclaimer:
Whilst every care has been taken to verify the accuracy of the details in this advertisement, For Sale By Owner (forsalebyowner.com.au Pty Ltd) cannot guarantee its correctness. Prospective buyers or tenants need to take such action as is necessary, to satisfy themselves of any pertinent matters.
Features
Balcony/Patio/Terrace, Bath, Fireplace(s), Heating, Modern Bathroom, Modern Kitchen, Rainwater Tank, Quiet Location, Views, Air Conditioning, Built-ins, Ensuite, Polished Timber Floors, Solar Panels, Living Area, Deck, Fully Fenced
Need a Home Loan?
Get pre-approved for a home loan within 48 hours. Click Here or more information.
- Last 24 Hours0
- Last 7 Days1
- Last 30 Days1
Views
Contact the Owner
Phone or Text: 0488 847 018
Enter Phone Code: 37993
Enter Phone Code: 37993
"*" indicates required fields