46 Giles Street, East Side, NT 0870
Sold Price Not Disclosed (02 Nov 2023)
Gorgeous Home in Old Eastside - Pool, Granny Flat & Views of the Range!
Beautiful, light-filled, fully renovated home in Old Eastside. This home is in a lovely, quiet area with delightful neighbours and close proximity to great schools (Ross Park, CSC, St Philips), sports ovals, shops (IGA) and town. Cross the road and you're on the Telegraph Station trails! It's perfect for walking your dog, climbing Spencer Hill for sunset and riding/running the trails.
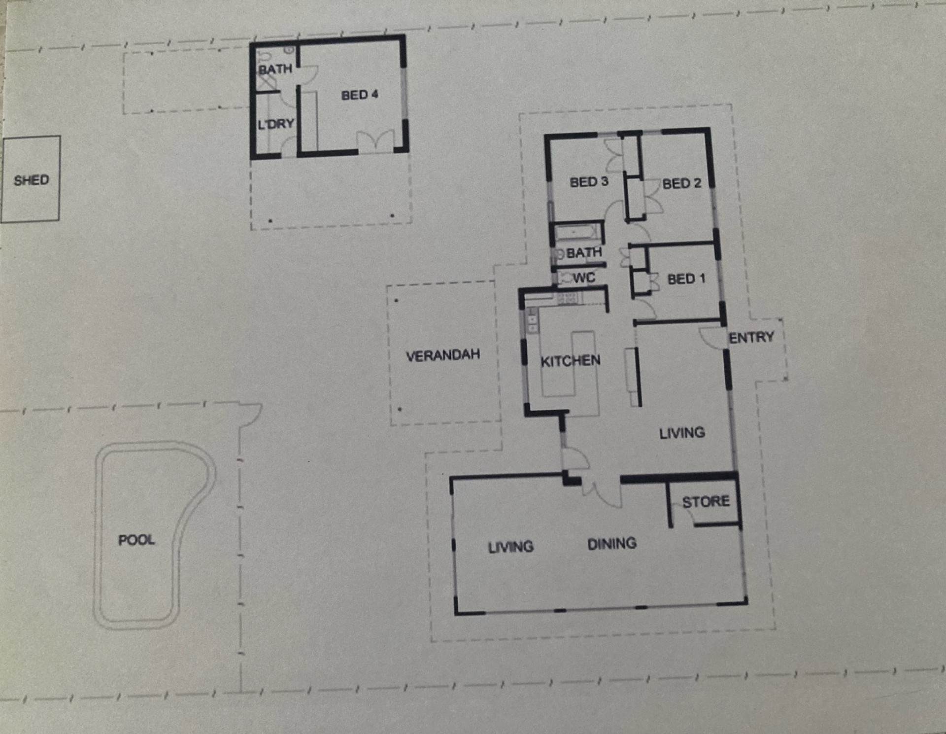
- Enjoy a huge kitchen with large windows and views to the MacDonnell Ranges! Watch the hot air balloons while you sip tea :) Miele appliances, two ovens and room for everyone to connect over mealtimes.
- Enjoy the versatility of the 'Long Room', one of two indoor living areas. It's spacious and light-filled, enjoying huge windows that overlook the gardens. Its current set-up has a 'chill out' TV area here, a dining table and another lounge area to relax in (or for the kids to build cubbies!). This room is a wonderful, cool, versatile indoor space to spread out in this climate.
- Enjoy a second spacious living room in the front of this home and sit by the fireplace in winter, again looking out of huge windows to the established low-maintenance garden. It's a great space to relax and connect.
- Enjoy two large, covered outdoor entertainment areas overlooking the garden, lawn, pool and MacDonnell Ranges. This offers shaded and beautiful spots for sundowners and shared meals. With fans overhead, it's a great space in warmer weather.
- This home offers 4 bedrooms and 2 bathrooms with the 'parent retreat' separate to the main house. There's flexibility to rent this space out separately if desired (as a studio with bathroom/kitchenette), or host visiting family (granny flat), providing great versatility.
- Large and beautiful pool for friends and family to cool off in.
- Established, low-maintenance native garden and lawn, and lots of shade for the summer months.
- Large veggie patch and fruit tree grove (mandarin, orange, lemon, olive, mulberry), chicken run, firepit and outdoor pizza oven.
- Indoor store room for camping gear etc
- Splits for cooling, although the house is largely brick and fans are often enough.
- Shed and carport/workspace with rear property access.
- Solar panels (6KW)
- There's a large area behind this home that can't be built on and creates a wonderful feeling of space from the back windows and outdoor entertainment area. It's a great place to kick the ball or 'lazy walk' the dog. It also enables views of the range. It's a very quiet space with very little foot traffic, other than the odd dog-walker.
Come and see this beautiful and unique home. It's awaiting new owners!
The Phone Code for this property is: 84981. Please quote this number when phoning or texting.
Disclaimer:
Whilst every care has been taken to verify the accuracy of the details in this advertisement, For Sale By Owner (forsalebyowner.com.au Pty Ltd) cannot guarantee its correctness. Prospective buyers or tenants need to take such action as is necessary, to satisfy themselves of any pertinent matters.
- Enjoy a huge kitchen with large windows and views to the MacDonnell Ranges! Watch the hot air balloons while you sip tea :) Miele appliances, two ovens and room for everyone to connect over mealtimes.
- Enjoy the versatility of the 'Long Room', one of two indoor living areas. It's spacious and light-filled, enjoying huge windows that overlook the gardens. Its current set-up has a 'chill out' TV area here, a dining table and another lounge area to relax in (or for the kids to build cubbies!). This room is a wonderful, cool, versatile indoor space to spread out in this climate.
- Enjoy a second spacious living room in the front of this home and sit by the fireplace in winter, again looking out of huge windows to the established low-maintenance garden. It's a great space to relax and connect.
- Enjoy two large, covered outdoor entertainment areas overlooking the garden, lawn, pool and MacDonnell Ranges. This offers shaded and beautiful spots for sundowners and shared meals. With fans overhead, it's a great space in warmer weather.
- This home offers 4 bedrooms and 2 bathrooms with the 'parent retreat' separate to the main house. There's flexibility to rent this space out separately if desired (as a studio with bathroom/kitchenette), or host visiting family (granny flat), providing great versatility.
- Large and beautiful pool for friends and family to cool off in.
- Established, low-maintenance native garden and lawn, and lots of shade for the summer months.
- Large veggie patch and fruit tree grove (mandarin, orange, lemon, olive, mulberry), chicken run, firepit and outdoor pizza oven.
- Indoor store room for camping gear etc
- Splits for cooling, although the house is largely brick and fans are often enough.
- Shed and carport/workspace with rear property access.
- Solar panels (6KW)
- There's a large area behind this home that can't be built on and creates a wonderful feeling of space from the back windows and outdoor entertainment area. It's a great place to kick the ball or 'lazy walk' the dog. It also enables views of the range. It's a very quiet space with very little foot traffic, other than the odd dog-walker.
Come and see this beautiful and unique home. It's awaiting new owners!
The Phone Code for this property is: 84981. Please quote this number when phoning or texting.
Disclaimer:
Whilst every care has been taken to verify the accuracy of the details in this advertisement, For Sale By Owner (forsalebyowner.com.au Pty Ltd) cannot guarantee its correctness. Prospective buyers or tenants need to take such action as is necessary, to satisfy themselves of any pertinent matters.
Need a Home Loan?
Get pre-approved for a home loan within 48 hours. Click Here or more information.
- Last 24 Hours0
- Last 7 Days0
- Last 30 Days2
Views
Contact the Owner
Phone or Text: 0488 847 018
Enter Phone Code: 84981
Enter Phone Code: 84981
"*" indicates required fields