311 Simpson St, Buninyong, VIC 3357
Sold Price Not Disclosed (03 May 2023)
Firm Foundations In Beautiful Buninyong, Only Blocks From The Town Centre And Primary School.
The Phone Code for this property is: 65387. Please quote this number when phoning or texting.
Simpson Street is just three blocks from town with only a casual walk for coffee to any of the local cafes. Close to Buninyong Crown Hotel, the renowned Shared Table restaurant, multiple parks, Buninyong Primary School, and the Buninyong Botanical Gardens, number 311 presents a golden opportunity to buy your first home, make a statement renovation or add to your investment portfolio. Visionaries may even be excited by the potential to take advantage of the 1020 sqm (approx.) block with a large shed and established garden.
The weatherboard construction with solid brick foundations and terra cotta tiled roof signals its mid-century origins; the sheltered entrance with porch is perfect for potted plants and chairs to enjoy its sun-drenched orientation.
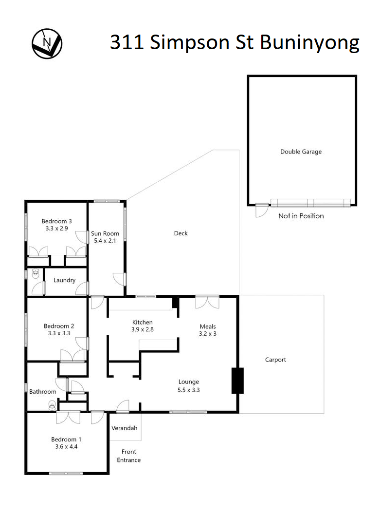
Inside, the spacious light-filled living area, complete with polished floorboards, takes you through to a recently renovated kitchen with stone benchtop. The expansive open-plan dining and lounge look through French-style double deco-etched doors to a huge, covered deck area. All seasons are made comfortable indoors with a sealed fireplace, gas heating and split system air-conditioning. The modern kitchen offers heaps of storage, Smeg electric oven, new dishwasher, and ample preparation space with a central bench perfect for hosting.
Along the hallway, you have three large bedrooms with built-in robes. The main bedroom has a lovely, sheltered view to the front garden. A landing leads to the third bedroom and a glorious light-filled sunroom with new drapes, with a generous view out to the deck and vast backyard. You will also find a second toilet through the laundry. For an astute renovator, the rear of the home could be sealed off as a private unit with a separate entrance.
The private backyard, protected by mature cypress, provides a large lawn area for kids and pets with plenty of scope to extend the current outdoor entertaining area. A wide side driveway and double carport lead to a lock-up 8x7m shed with power and concrete floor, wood heater, and space for two additional cars.
Immediately liveable and presenting viable options as a rental investment property, owing to the property being so proximal to the bus stop direct to Ballarat and Buninyong Primary School. The home is sturdy, with no immediate need for renovation. And it comes with a solar power system that generates roughly the average home's daily electricity requirement.
Being just over an hour from Melbourne's western suburbs and airport or even Geelong, 311 Simpson Street offers access to excellent services, wonderful eateries, and community-style living. It is no wonder that homes in Buninyong continue to attract such interest. Take note of quality builds in this street, signalling both an excellent neighbourhood and a fantastic address for you to invest in.
Disclaimer:
Whilst every care has been taken to verify the accuracy of the details in this advertisement, For Sale By Owner (forsalebyowner.com.au Pty Ltd) cannot guarantee its correctness. Prospective buyers or tenants need to take such action as is necessary, to satisfy themselves of any pertinent matters.
Simpson Street is just three blocks from town with only a casual walk for coffee to any of the local cafes. Close to Buninyong Crown Hotel, the renowned Shared Table restaurant, multiple parks, Buninyong Primary School, and the Buninyong Botanical Gardens, number 311 presents a golden opportunity to buy your first home, make a statement renovation or add to your investment portfolio. Visionaries may even be excited by the potential to take advantage of the 1020 sqm (approx.) block with a large shed and established garden.
The weatherboard construction with solid brick foundations and terra cotta tiled roof signals its mid-century origins; the sheltered entrance with porch is perfect for potted plants and chairs to enjoy its sun-drenched orientation.
Inside, the spacious light-filled living area, complete with polished floorboards, takes you through to a recently renovated kitchen with stone benchtop. The expansive open-plan dining and lounge look through French-style double deco-etched doors to a huge, covered deck area. All seasons are made comfortable indoors with a sealed fireplace, gas heating and split system air-conditioning. The modern kitchen offers heaps of storage, Smeg electric oven, new dishwasher, and ample preparation space with a central bench perfect for hosting.
Along the hallway, you have three large bedrooms with built-in robes. The main bedroom has a lovely, sheltered view to the front garden. A landing leads to the third bedroom and a glorious light-filled sunroom with new drapes, with a generous view out to the deck and vast backyard. You will also find a second toilet through the laundry. For an astute renovator, the rear of the home could be sealed off as a private unit with a separate entrance.
The private backyard, protected by mature cypress, provides a large lawn area for kids and pets with plenty of scope to extend the current outdoor entertaining area. A wide side driveway and double carport lead to a lock-up 8x7m shed with power and concrete floor, wood heater, and space for two additional cars.
Immediately liveable and presenting viable options as a rental investment property, owing to the property being so proximal to the bus stop direct to Ballarat and Buninyong Primary School. The home is sturdy, with no immediate need for renovation. And it comes with a solar power system that generates roughly the average home's daily electricity requirement.
Being just over an hour from Melbourne's western suburbs and airport or even Geelong, 311 Simpson Street offers access to excellent services, wonderful eateries, and community-style living. It is no wonder that homes in Buninyong continue to attract such interest. Take note of quality builds in this street, signalling both an excellent neighbourhood and a fantastic address for you to invest in.
Disclaimer:
Whilst every care has been taken to verify the accuracy of the details in this advertisement, For Sale By Owner (forsalebyowner.com.au Pty Ltd) cannot guarantee its correctness. Prospective buyers or tenants need to take such action as is necessary, to satisfy themselves of any pertinent matters.
Features
Balcony/Patio/Terrace, Bath, Fireplace(s), Modern Kitchen, Rainwater Tank, Close to Parklands, Close to Schools, Close to Shops, Close to Transport, Quiet Location, Air Conditioning, Built-ins, Gas Enabled, Internal Laundry, Dishwasher, Balcony, Workshop, Solar Panels, Living Area, Deck, Renovated Kitchen, Inside Spa
Due Diligence Checklist
Before you buy a home or vacant residential land, you should be aware of a range of issues that may affect that property and impose restrictions or obligations on you, if you buy it. Click Here to read more.
Statement of information
Need a Home Loan?
Get pre-approved for a home loan within 48 hours. Click Here or more information.
- Last 24 Hours0
- Last 7 Days0
- Last 30 Days1
Views
Contact the Owner
Phone or Text: 0488 847 018
Enter Phone Code: 65387
Enter Phone Code: 65387
"*" indicates required fields