10 Forest Ave, Hepburn Springs, VIC 3461

House 12 5 4
Sold Price Not Disclosed (02 Sep 2019)
Virtual Tour
Home & Income in Hepburn Springs - Spa Capital of Australia.
'Rosemount House' presents an ideal opportunity to acquire a rural residential living residence with established tourist accommodation and income. It is located directly opposite the 'Hepburn Springs Mineral Reserve' and set in the middle of the largest concentration of mineral springs in Australia.

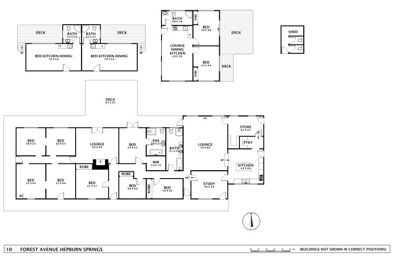
The main residence of 44sqs boasts 12' ceilings, 8 bedrooms, 2 large bathrooms and 3 expansive living areas. The master bedroom has an ensuite with 6' claw foot bath and a walk-in robe. Two north facing family rooms and the main bedroom open onto an Alfresco entertainment area. The extensive wraparound verandah takes advantage of the peaceful and picturesque country views, overlooking the well maintained gardens and a surprising variety of established trees.

In addition to the main residence there are also 2 x 1 Bedroom Spa Suites and 1 x 2 Bedroom Spa Cottage. These are beautifully presented, with forest views, private balconies, offered fully furnished, and are successfully operating as tourist accommodation - WIWO.

Offering the ultimate mix of business and pleasure in one of the most popular and idyllic tourist destinations - Hepburn Springs and Daylesford. Centrally situated within an hour of Melbourne, Ballarat, Bendigo and Geelong.

The property is exceptional value at $446 per m2 and presents strong capital growth to comparable properties in the Hepburn Springs and Daylesford region.

Connected to town water, sewerage, natural gas, electricity and NBN.
LAND SIZE 2664m2 - BUILDING AREA 60sqs

Call now for an inspection.

Disclaimer:

Whilst every care has been taken to verify the accuracy of the details in this advertisement, For Sale By Owner (forsalebyowner.com.au Pty Ltd) cannot guarantee its correctness. Prospective buyers or tenants need to take such action as is necessary, to satisfy themselves of any pertinent matters.
Features

Air Conditioning, Balcony/Patio/Terrace, Bath, Built-ins, Dishwasher, Formal Lounge, Furnished, Gas Enabled, Heating, Inside Spa, Internal Laundry, Pay TV Enabled, Polished Timber Floors, Study, Balcony, Courtyard, Entertainment Area, Garden, Level Lawn, Rainwater Tank, Shower Facilities, Spa Bath/Jacuzzi, Storage Area, Close to Parklands, Quiet Location, Views, Nature Property, Living Area, Close to Schools, Deck, Ensuite

Due Diligence Checklist

Before you buy a home or vacant residential land, you should be aware of a range of issues that may affect that property and impose restrictions or obligations on you, if you buy it. Click Here to read more.

    Need a Home Loan?

    Get pre-approved for a home loan within 48 hours. Click Here or more information.

    Views
  • Last 24 Hours0
  • Last 7 Days0
  • Last 30 Days2
Contact the Owner
Phone or Text: 0488 847 018
Enter Phone Code:

"*" indicates required fields