4/67 Aralia Street, Nightcliff, NT 0810
Sold Price Not Disclosed (20 Oct 2022)
Breezy Seaside Lifestyle
The Phone Code for this property is: 67138. Please quote this number when phoning or texting.
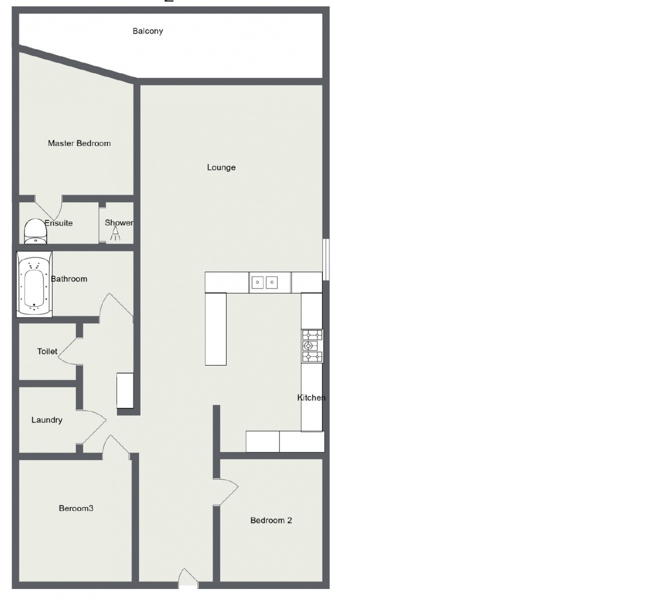
Brilliantly located and well maintained, this three bedroom, two bathroom apartment is seconds from the beautiful Nightcliff foreshore, tennis courts, schools, shops and public transport.
With spacious bedrooms, an excellent open plan Kitchen/Living/Balcony and plenty of windows the apartment is light and airy and naturally cooled by the ocean breeze but also fully air-conditioned when needed.
Features:
- Built-in-robes in all bedrooms
- Large master bedroom with ensuite
- Generous second and third bedrooms
- Spacious open-plan living/dining and large balcony area
- Efficient kitchen with ample storage space, pyrolytic oven and
dishwasher
- Air conditioning throughout
- Bathtub in main bathroom with separate toilet
- Internal laundry
- Large lockable storeroom
- 2 secure, off street car parks
This is the perfect opportunity for the first home buyer, the astute investor or those who dream of a relaxed lifestyle with ocean view living in a blue chip suburb!
Disclaimer:
Whilst every care has been taken to verify the accuracy of the details in this advertisement, For Sale By Owner (forsalebyowner.com.au Pty Ltd) cannot guarantee its correctness. Prospective buyers or tenants need to take such action as is necessary, to satisfy themselves of any pertinent matters.
Brilliantly located and well maintained, this three bedroom, two bathroom apartment is seconds from the beautiful Nightcliff foreshore, tennis courts, schools, shops and public transport.
With spacious bedrooms, an excellent open plan Kitchen/Living/Balcony and plenty of windows the apartment is light and airy and naturally cooled by the ocean breeze but also fully air-conditioned when needed.
Features:
- Built-in-robes in all bedrooms
- Large master bedroom with ensuite
- Generous second and third bedrooms
- Spacious open-plan living/dining and large balcony area
- Efficient kitchen with ample storage space, pyrolytic oven and
dishwasher
- Air conditioning throughout
- Bathtub in main bathroom with separate toilet
- Internal laundry
- Large lockable storeroom
- 2 secure, off street car parks
This is the perfect opportunity for the first home buyer, the astute investor or those who dream of a relaxed lifestyle with ocean view living in a blue chip suburb!
Disclaimer:
Whilst every care has been taken to verify the accuracy of the details in this advertisement, For Sale By Owner (forsalebyowner.com.au Pty Ltd) cannot guarantee its correctness. Prospective buyers or tenants need to take such action as is necessary, to satisfy themselves of any pertinent matters.
Features
Air Conditioning, Balcony/Patio/Terrace, Bath, Broadband, Built-ins, Dishwasher, Ensuite, Close to Schools, Close to Shops, Near Waterfront, Quiet Location, Views, Storage Area, Beach/Coastal Property, Balcony
Need a Home Loan?
Get pre-approved for a home loan within 48 hours. Click Here or more information.
- Last 24 Hours0
- Last 7 Days1
- Last 30 Days1
Views
Contact the Owner
Phone or Text: 0488 847 018
Enter Phone Code: 67138
Enter Phone Code: 67138
"*" indicates required fields