11/31 Mannikan Court, Bakewell, NT 0832
Sold Price Not Disclosed (08 Sep 2022)
Walk Right in, Sit Right down!
The Phone Code for this property is: 54265. Please quote this number when phoning or texting.
This top-floor apartment not only has breathtaking views, but has been fully renovated with a designer's flair to be an entertainer's paradise.
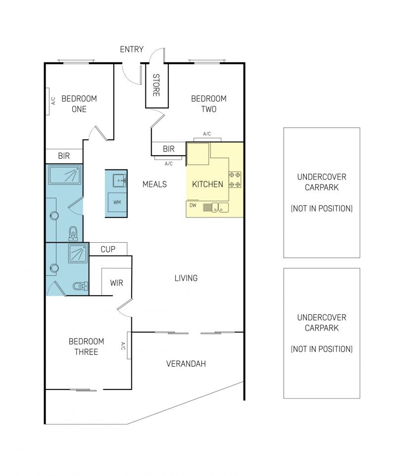
Located in a very quiet cul de sac in a secure gated complex with local traffic only, this unit has three generous bedrooms - the main with an ensuite and large walk-in robe, while the second and third bedrooms feature ample storage and robes with mirrored doors.
Enjoy breakfast or entertain guests on a front balcony overlooking stunning parklands.
An enormous open-plan living and dining area is filled with natural light and modern overhead fans, while the refurbished kitchen features almost-new appliances and a stylish charcoal square sink and power points with USB chargers.
The in-demand unit also has full airconditioning, an internal laundry as well as external clothes line and three bay storage linen cupboards. There is also a storage room on the same floor as the apartment.
The fully-tiled property comes with two undercover car parks, security screens on all external doors, elevator access to the top level and a healthy sinking fund in the Body Corporate.
Public transport, schools and shopping are all nearby, with approximate rental $450pw.
Please contact us for an inspection - quote code number 54265.
Body Corporate: Ace Body Corporate
Body Corporate Fees $1700/ qtr
Council Fees $435/qtr
Conveyancer : Voeuk Conveyacing
Settlement: 45 days or earlier
Vacant possession
Disclaimer:
Whilst every care has been taken to verify the accuracy of the details in this advertisement, For Sale By Owner (forsalebyowner.com.au Pty Ltd) cannot guarantee its correctness. Prospective buyers or tenants need to take such action as is necessary, to satisfy themselves of any pertinent matters.
This top-floor apartment not only has breathtaking views, but has been fully renovated with a designer's flair to be an entertainer's paradise.
Located in a very quiet cul de sac in a secure gated complex with local traffic only, this unit has three generous bedrooms - the main with an ensuite and large walk-in robe, while the second and third bedrooms feature ample storage and robes with mirrored doors.
Enjoy breakfast or entertain guests on a front balcony overlooking stunning parklands.
An enormous open-plan living and dining area is filled with natural light and modern overhead fans, while the refurbished kitchen features almost-new appliances and a stylish charcoal square sink and power points with USB chargers.
The in-demand unit also has full airconditioning, an internal laundry as well as external clothes line and three bay storage linen cupboards. There is also a storage room on the same floor as the apartment.
The fully-tiled property comes with two undercover car parks, security screens on all external doors, elevator access to the top level and a healthy sinking fund in the Body Corporate.
Public transport, schools and shopping are all nearby, with approximate rental $450pw.
Please contact us for an inspection - quote code number 54265.
Body Corporate: Ace Body Corporate
Body Corporate Fees $1700/ qtr
Council Fees $435/qtr
Conveyancer : Voeuk Conveyacing
Settlement: 45 days or earlier
Vacant possession
Disclaimer:
Whilst every care has been taken to verify the accuracy of the details in this advertisement, For Sale By Owner (forsalebyowner.com.au Pty Ltd) cannot guarantee its correctness. Prospective buyers or tenants need to take such action as is necessary, to satisfy themselves of any pertinent matters.
Features
Air Conditioning, Balcony/Patio/Terrace, Built-ins, Dishwasher, Ensuite, Internal Laundry, Secure Parking, Intercom, Close to Parklands, Close to Schools, Close to Shops, Close to Transport, Views
Need a Home Loan?
Get pre-approved for a home loan within 48 hours. Click Here or more information.
- Last 24 Hours0
- Last 7 Days0
- Last 30 Days1
Views
Contact the Owner
Phone or Text: 0488 847 018
Enter Phone Code: 54265
Enter Phone Code: 54265
"*" indicates required fields