8 Earl Place, Millner, NT 0810
Sold Price Not Disclosed (20 Aug 2021)
YOU'RE HOME
The Phone Code for this property is: 96821. Please quote this number when phoning or texting.
Earl Place Millner is a quiet Cul De Sac, with all elevated tropical homes, and all owned by house proud people. An ideal environment for family living.
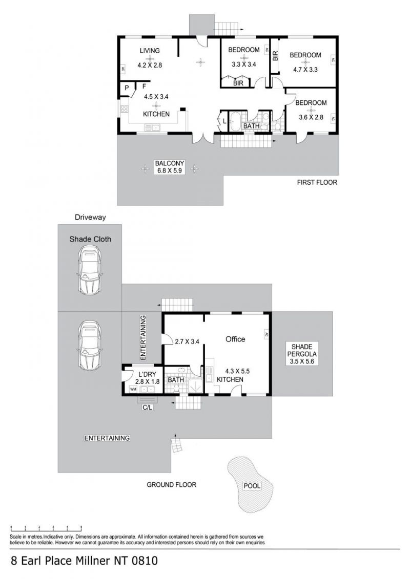
Number 8 itself, looks like home. Nestled in an established garden sits this very tidy 3 bedroom elevated home. Parking and workshop area under, plus a laundry room and storage area. Downstairs too is a large multi use area with amenities. An ideal office?
Go up the front staircase to this delightful, beautifully presented 3 bedroom elevated home. Enter into the open dining/living space. You'll love the polished timber floors, throughout the home. Here too is the beautiful and brand new kitchen, just waiting for your creative spirit. Out through the double French doors, and the living area opens out onto an amazing verandah which goes right across the back of the home, and where you'll just want to relax and enjoy your new life.
All 3 bedrooms are airconditioned. The bathroom was recently upgraded and there is a second separate toilet.
From the verandah you overlook the lovely established gardens below, and including a swimming pool.
This home offers you and your family a seriously good life style in one of the best pockets of this very popular suburb.
Building Inspection: available upon request
Pest Inspection: available upon request
Area: 884 Square metres
Easements:Nil
Council Rates: Approx $1775 per annum
Vendors Conveyancer: Tschirpig Conveyancing
Deposit: 10%. $10,000 on fall of hammer, balance within 2 days
Settlement: 18 August 2021
Earl Place Millner is a quiet Cul De Sac, with all elevated tropical homes, and all owned by house proud people. An ideal environment for family living.
Number 8 itself, looks like home. Nestled in an established garden sits this very tidy 3 bedroom elevated home. Parking and workshop area under, plus a laundry room and storage area. Downstairs too is a large multi use area with amenities. An ideal office?
Go up the front staircase to this delightful, beautifully presented 3 bedroom elevated home. Enter into the open dining/living space. You'll love the polished timber floors, throughout the home. Here too is the beautiful and brand new kitchen, just waiting for your creative spirit. Out through the double French doors, and the living area opens out onto an amazing verandah which goes right across the back of the home, and where you'll just want to relax and enjoy your new life.
All 3 bedrooms are airconditioned. The bathroom was recently upgraded and there is a second separate toilet.
From the verandah you overlook the lovely established gardens below, and including a swimming pool.
This home offers you and your family a seriously good life style in one of the best pockets of this very popular suburb.
Building Inspection: available upon request
Pest Inspection: available upon request
Area: 884 Square metres
Easements:Nil
Council Rates: Approx $1775 per annum
Vendors Conveyancer: Tschirpig Conveyancing
Deposit: 10%. $10,000 on fall of hammer, balance within 2 days
Settlement: 18 August 2021
Need a Home Loan?
Get pre-approved for a home loan within 48 hours. Click Here or more information.
- Last 24 Hours0
- Last 7 Days1
- Last 30 Days4
Views
Contact the Owner
Phone or Text: 0488 847 018
Enter Phone Code: 96821
Enter Phone Code: 96821
"*" indicates required fields