4B, 174 Forrest Parade, Rosebery, NT 0832
Sold Price Not Disclosed (23 Feb 2022)
Modern Ground Floor Apartment, Best location in town!!
The Phone Code for this property is: 93307. Please quote this number when phoning or texting.
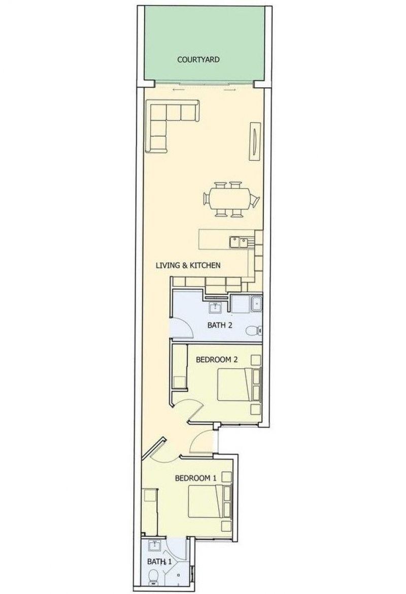
Located in the Sunset Dreams Village, this beautifully presented two bedroom, two bathroom apartment in a resort style community, well-kept apartment which has been recently painted, is suitable for the occupier or investor alike.
The apartment is located on the ground floor and has a private courtyard, including bench tops and dishwasher in the kitchen, easy to maintain tiles throughout the property and quality fixtures and fittings. Both bedrooms are air-conditioned, as is the open plan living and dining area which can be extended by opening the double sliding doors onto the courtyard.
Currently rented on private lease, the residents of this property can enjoy all this stunning complex has to offer. The owner has recently upgraded the tiling of the bedroom from carpets, replaced all the fans in the living room and has built new wardrobes with lots of shelves.
This low maintenance apartment is right next door to an early learning centre, and in close proximity to local schools and shops. Sunset Dreams offers residents executive living complete with a live-in caretaker, swimming pool, secure basement parking for two vehicles, with a storeroom, several BBQ's with shelters, kids' playground, gardens and lawns, as well as under cover parking for your guests.
Property Information
• Secure underground parking for 2 vehicles
• Private store room behind car-park
• Main bedroom with ensuite bathroom
• Kids playground and pool
• Fully tiled and air-conditioned throughout
• Internal laundry
• Heaps of storage
Additional Information:
* Year Built: 2013
* Current lease : 360$ per week
* Current lease expiry : 20/01/2022
* Body Corporate: Elite Strata Management
* Body Corporate Levies: $ 1,189.95 P/Q
* Property Open for Inspection by appointments.
Disclaimer:
Whilst every care has been taken to verify the accuracy of the details in this advertisement, For Sale By Owner (forsalebyowner.com.au Pty Ltd) cannot guarantee its correctness. Prospective buyers or tenants need to take such action as is necessary, to satisfy themselves of any pertinent matters.
Located in the Sunset Dreams Village, this beautifully presented two bedroom, two bathroom apartment in a resort style community, well-kept apartment which has been recently painted, is suitable for the occupier or investor alike.
The apartment is located on the ground floor and has a private courtyard, including bench tops and dishwasher in the kitchen, easy to maintain tiles throughout the property and quality fixtures and fittings. Both bedrooms are air-conditioned, as is the open plan living and dining area which can be extended by opening the double sliding doors onto the courtyard.
Currently rented on private lease, the residents of this property can enjoy all this stunning complex has to offer. The owner has recently upgraded the tiling of the bedroom from carpets, replaced all the fans in the living room and has built new wardrobes with lots of shelves.
This low maintenance apartment is right next door to an early learning centre, and in close proximity to local schools and shops. Sunset Dreams offers residents executive living complete with a live-in caretaker, swimming pool, secure basement parking for two vehicles, with a storeroom, several BBQ's with shelters, kids' playground, gardens and lawns, as well as under cover parking for your guests.
Property Information
• Secure underground parking for 2 vehicles
• Private store room behind car-park
• Main bedroom with ensuite bathroom
• Kids playground and pool
• Fully tiled and air-conditioned throughout
• Internal laundry
• Heaps of storage
Additional Information:
* Year Built: 2013
* Current lease : 360$ per week
* Current lease expiry : 20/01/2022
* Body Corporate: Elite Strata Management
* Body Corporate Levies: $ 1,189.95 P/Q
* Property Open for Inspection by appointments.
Disclaimer:
Whilst every care has been taken to verify the accuracy of the details in this advertisement, For Sale By Owner (forsalebyowner.com.au Pty Ltd) cannot guarantee its correctness. Prospective buyers or tenants need to take such action as is necessary, to satisfy themselves of any pertinent matters.
Need a Home Loan?
Get pre-approved for a home loan within 48 hours. Click Here or more information.
- Last 24 Hours0
- Last 7 Days0
- Last 30 Days4
Views
Contact the Owner
Phone or Text: 0488 847 018
Enter Phone Code: 93307
Enter Phone Code: 93307
"*" indicates required fields