2/121 Flynn Cct, Bellamack, NT 0832
Sold Price Not Disclosed (05 May 2021)
Cheaper than renting or a smart investment
The Phone Code for this property is: 83922. Please quote this number when phoning or texting.
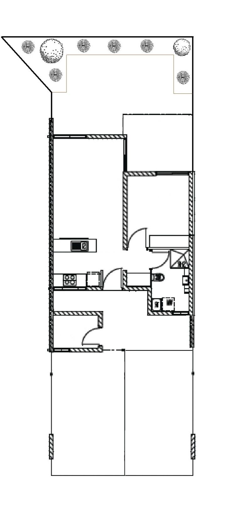
1 bedroom unit for sale in the popular suburb of Bellamack.
Generously sized, this unit features a large bedroom with built in robes, and a combined bathroom laundry.
The open plan living and dining opens up to an undercover patio with a garden oasis capturing the afternoon breezes.
With two car parks and a store room, there is enough space for a couple or small family.
Located across the road from the Bell Bar & Bisto and Fresh Point Co, entertainment and great food is close by but far enough to not be heard.
A short walk away are parks and nature tracks, with shops and schools not much further. A bus stop is just past the complex.
The unit is in the Bellamack Gardens complex of 28 ground level units, and has a central park and BBQ area. The complex is pet and family friendly.
This property is freshly painted, has a 6 star energy rating, solar hot water, split system air conditioning, and Invisigard security screens throughout.
Body corporate fees are a reasonable $723 per quarter (including sinking fund) and rates $1,717 per annum.
Currently rented at $280 per week, units in this area are in high demand for their good location.
At this price this property won't last long. Contact to arrange an inspection today.
Disclaimer:
Whilst every care has been taken to verify the accuracy of the details in this advertisement, For Sale By Owner (forsalebyowner.com.au Pty Ltd) cannot guarantee its correctness. Prospective buyers or tenants need to take such action as is necessary, to satisfy themselves of any pertinent matters.
1 bedroom unit for sale in the popular suburb of Bellamack.
Generously sized, this unit features a large bedroom with built in robes, and a combined bathroom laundry.
The open plan living and dining opens up to an undercover patio with a garden oasis capturing the afternoon breezes.
With two car parks and a store room, there is enough space for a couple or small family.
Located across the road from the Bell Bar & Bisto and Fresh Point Co, entertainment and great food is close by but far enough to not be heard.
A short walk away are parks and nature tracks, with shops and schools not much further. A bus stop is just past the complex.
The unit is in the Bellamack Gardens complex of 28 ground level units, and has a central park and BBQ area. The complex is pet and family friendly.
This property is freshly painted, has a 6 star energy rating, solar hot water, split system air conditioning, and Invisigard security screens throughout.
Body corporate fees are a reasonable $723 per quarter (including sinking fund) and rates $1,717 per annum.
Currently rented at $280 per week, units in this area are in high demand for their good location.
At this price this property won't last long. Contact to arrange an inspection today.
Disclaimer:
Whilst every care has been taken to verify the accuracy of the details in this advertisement, For Sale By Owner (forsalebyowner.com.au Pty Ltd) cannot guarantee its correctness. Prospective buyers or tenants need to take such action as is necessary, to satisfy themselves of any pertinent matters.
Features
Air Conditioning, Balcony/Patio/Terrace, Built-ins, Courtyard, Pet Friendly, Solar Hot Water, Storage Area, Security Windows, Close to Parklands, Close to Schools, Close to Shops, Close to Transport, Quiet Location
Need a Home Loan?
Get pre-approved for a home loan within 48 hours. Click Here or more information.
- Last 24 Hours0
- Last 7 Days0
- Last 30 Days0
Views
Contact the Owner
Phone or Text: 0488 847 018
Enter Phone Code: 83922
Enter Phone Code: 83922
"*" indicates required fields