21 Curlew Circuit, Wulagi, NT 0812
Sold Price: 530,000 (13 Jan 2021)
Stylish/Tranquil Living in Wulagi
The Phone Code for this property is: 12511. Please quote this number when phoning or texting.
On the market now due to Covid free Victoria!!
This family friendly home is located in the popular suburb of Wulagi.
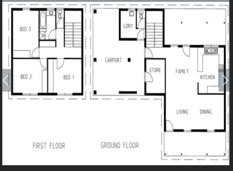
The design is a split level PDC4, which is desired for its layout and solid reinforced concrete.
It is also popular for adding extensions or creating other spaces underneath and /or beside the existing house.
The kitchen, living and dining areas are located on the lower level and the 3 bedrooms, bathroom and WC are on the top level.
The 3 bedrooms have full length mirrored robes with plenty of shelving and hanging space.
All windows are louvred.
The louvres allow the breezes to flow nicely through the rooms.
There are also beautiful tree top views from the bedrooms as well as the garden and inground pool.
The kitchen is large and spacious.
It overlooks the open plan dining area and the outdoor entertaining space.
The kitchen looks directly out over the pool which is great for supervision.
A view of the garden can be seen from all rooms of the house.
There is a separate TV and lounge area which adjoins the dining room.
A staircase, with a small landing and timber rails, connects the downstairs area with the upstairs bedrooms, bathroom and WC.
A storeroom, laundry and 2nd WC are also located on the lower level.
The storeroom has been designed as a cyclone shelter.
There Is plenty of room to build a large shed on the grassed area, with access by the side of the house.
Features include:
Airconditioned, spacious rooms.
New fans with mood changing, LED, remote control lights.
Freshly painted in most areas.
Louvres throughout.
Louvered security windows downstairs.
Open plan, spacious living areas.
Bedrooms with sliding, mirrored robes.
Mirrored, large double linen cupboard in hallway upstairs.
Breezy with treetop views upstairs.
Separate storeroom on ground level.
Laundry and second WC on ground level.
Storage area under stairwell.
Large, low maintenance, fibreglass,
exercise pool.
New pool pump.
Covered verandah.
NAC garden shed on slab.
Large, paved entertainment area.
Low maintenance, established garden with Frangipanis and Jasmine.
Concrete driveway.
Grassed area for trampoline/ pets.
New Colourbond roof. ( Nov 19 )
TV outlets in all bedrooms and downstairs.
NBN connected.
Great mobile connectivity with Optus.
Fully fenced yard with 6' high fencing.
Level block of land.
Close to schools, Hibiscus Shopping Centre and Casuarina.
Only a 5-minute drive to Casuarina Beach or Lee Point and Buffulo Creek.
Verandah, pool and garden shed are all to code with certification.
Rates - $1600 p.a.
Area - 780m2
Year built - 1985
Please contact Roz for enquiries and/or a viewing.
Disclaimer:
Whilst every care has been taken to verify the accuracy of the details in this advertisement, For Sale By Owner (forsalebyowner.com.au Pty Ltd) cannot guarantee its correctness. Prospective buyers or tenants need to take such action as is necessary, to satisfy themselves of any pertinent matters.
On the market now due to Covid free Victoria!!
This family friendly home is located in the popular suburb of Wulagi.
The design is a split level PDC4, which is desired for its layout and solid reinforced concrete.
It is also popular for adding extensions or creating other spaces underneath and /or beside the existing house.
The kitchen, living and dining areas are located on the lower level and the 3 bedrooms, bathroom and WC are on the top level.
The 3 bedrooms have full length mirrored robes with plenty of shelving and hanging space.
All windows are louvred.
The louvres allow the breezes to flow nicely through the rooms.
There are also beautiful tree top views from the bedrooms as well as the garden and inground pool.
The kitchen is large and spacious.
It overlooks the open plan dining area and the outdoor entertaining space.
The kitchen looks directly out over the pool which is great for supervision.
A view of the garden can be seen from all rooms of the house.
There is a separate TV and lounge area which adjoins the dining room.
A staircase, with a small landing and timber rails, connects the downstairs area with the upstairs bedrooms, bathroom and WC.
A storeroom, laundry and 2nd WC are also located on the lower level.
The storeroom has been designed as a cyclone shelter.
There Is plenty of room to build a large shed on the grassed area, with access by the side of the house.
Features include:
Airconditioned, spacious rooms.
New fans with mood changing, LED, remote control lights.
Freshly painted in most areas.
Louvres throughout.
Louvered security windows downstairs.
Open plan, spacious living areas.
Bedrooms with sliding, mirrored robes.
Mirrored, large double linen cupboard in hallway upstairs.
Breezy with treetop views upstairs.
Separate storeroom on ground level.
Laundry and second WC on ground level.
Storage area under stairwell.
Large, low maintenance, fibreglass,
exercise pool.
New pool pump.
Covered verandah.
NAC garden shed on slab.
Large, paved entertainment area.
Low maintenance, established garden with Frangipanis and Jasmine.
Concrete driveway.
Grassed area for trampoline/ pets.
New Colourbond roof. ( Nov 19 )
TV outlets in all bedrooms and downstairs.
NBN connected.
Great mobile connectivity with Optus.
Fully fenced yard with 6' high fencing.
Level block of land.
Close to schools, Hibiscus Shopping Centre and Casuarina.
Only a 5-minute drive to Casuarina Beach or Lee Point and Buffulo Creek.
Verandah, pool and garden shed are all to code with certification.
Rates - $1600 p.a.
Area - 780m2
Year built - 1985
Please contact Roz for enquiries and/or a viewing.
Disclaimer:
Whilst every care has been taken to verify the accuracy of the details in this advertisement, For Sale By Owner (forsalebyowner.com.au Pty Ltd) cannot guarantee its correctness. Prospective buyers or tenants need to take such action as is necessary, to satisfy themselves of any pertinent matters.
Features
Air Conditioning, Bath, Built-ins, Entertainment Area, Garden Shed, Security Windows, Close to Parklands, Close to Schools
Need a Home Loan?
Get pre-approved for a home loan within 48 hours. Click Here or more information.
- Last 24 Hours0
- Last 7 Days2
- Last 30 Days5
Views
Contact the Owner
Phone or Text: 0488 847 018
Enter Phone Code: 12511
Enter Phone Code: 12511
"*" indicates required fields